Bildegalleri

Fleksibelt solid bygg i betong som tilpasses leietaker.
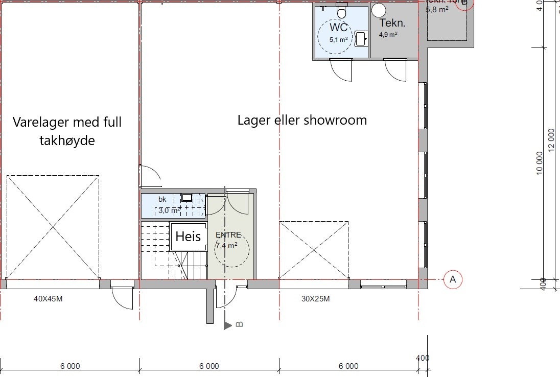
Moderne lagerseksjoner i Sørlandsparken for leie
Nøkkelinfo
- Areal
- 72 - 3 000 m²
- Kontorplasser
- 100
Type lokale
Fasiliteter
Om eiendommen
MODERNE LAGERSEKSJONER OG KOMBINASJONSLOKALER I SØRLANDSPARKEN – FOR SALG OG LEIE
Trenger du eller ønsker du deg ditt eget lager, verksted, kontor eller hobbyrom? Nå kan du sikre deg det – i Sørlandsparken.
- Vi bygger nå et nytt næringsbygg i Sørlandsparken Øst – i solide betongelementer, med høy kvalitet, god isolasjon og fleksibel størrelse på din seksjon fra 72 til 3 000 m² (BTA).
- Skreddersydd for privatpersoner, gründere og små og mellomstore bedrifter. Lokalene egner seg til alt fra lager, verksted og produksjon til kontor, showroom eller hobbybruk – med egen port, enkel adkomst, og opplegg for vann, avløp og fiber. Tilvalg som varmepumpe, WC-rom og mesanin og oljeutskiller er fullt mulig.
- Du kan leie eller eie, og velge om du vil kjøpe seksjonen som aksjeselskap (AS) eller som en standard eiendomsseksjon – alt etter hva som passer deg best. Velger du AS-modellen, slipper du dokumentavgift og kan trekke fra kostnader – en løsning vi har laget spesielt med gründere og småbedriftseiere i tankene - vi kaller det en liten gründerbox!
Vår visjon er å gjøre det mulig for flere å eie sitt eget næringslokale – tilpasset ditt behov, uten høy risiko. Dette er ikke bare praktisk – det er en smart investering som skaper langsiktige verdier og gir god bruksnytte.
INTERESSERT I Å LEIE EN SEKSJON?
Vi er i gang. Ta kontakt i dag for å diskutere muligheten, vi gjennomfører en visning eller sender over prospekt og tegninger for å skape det lokalet du trenger:
- Sjur - 994 96 881
- Johannes - 415 49 009
Beliggenhet
Seksjonene oppføres i Sydinga 68, sentralt plassert rett bak Sørlandshallen og Travparken, med enkel adkomst fra E18. Området er i vekst og tomten ligger i en rolig blindvei med kort vei til:
- Travparken / Sørlandshallen (1 minutt)
- Dyreparken (2 minutter)
- Coop Obs Bygg / IKEA / Max Burger (3 minutter)
- Sørlandssenteret (4 minutter)
- Kjevik Lufthavn (12 minutter)
- Kristiansand sentrum (12 minutter)
- Lillesand sentrum (16 minutter)
Området er i rask vekst med økende næringsaktivitet, og tomten ligger i en rolig blindvei som er enkel å komme til for både ansatte, kunder og leverandører.
Adkomst
Adkomst fra E18 skjer enten:
- via Sørlandshallen/Travparken, med første avkjørsel til venstre etter Epona Ridesenter,
- via IKEA/Coop Obs Bygg, forbi avfallstasjonen og til høyre i bunnen av næringsområdet på Sydinga.
Standard
Bygget vil være godt isolert og oppføres i solid betongkonstruksjon med høy kvalitet og varig standard. Seksjonene leveres med følgende standard:
40 cm yttervegger i isolerte betongelementer
Takkonstruksjon i stål
Maskinbehandlet betonggulv
Isolerte gulv, vegger og tak
Innervegger i isolerte sandwichpaneler
Port i hver seksjon, 4 x 4,5 meter, med vindusfelt, motor og fjernkontroll
Ytterdør med sylinderlås og 2 nøkler
LED-belysning i tak og over inngangsdør utvendig
Sikringsskap i hver seksjon med strømmåler i hovedtavle
Brannalarm med sensor i hver seksjon
Trekkerrør for fiber
Klargjort for vann og avløp med innlagt stikk og vannkran
Uteområdet asfalteres
I tillegg tilbyr vi en rekke tilvalg og tilpasninger som kan skreddersys etter dine / din virksomhets behov – enten for økt komfort, spesifikke bruksområder eller tekniske krav. Eksempler:
- Varmepumpe tilpasset seksjonens størrelse
- Oljeutskiller med rustfritt sluk
- Deaktiveringsknapp for brannalarm (ved røykende arbeid)
- Ekstra LED-lysarmatur med høy lysmengde
- Ytterligere vannuttak enn standardoppsett
- Komplett WC-rom med dusjkabinett, varmtvannsbereder og innredning
Andre løsninger som mesanin etc kan leveres etter avtale - vi hjelper deg gjerne med å tilpasse løsningen til dine ønsker.
Innhold
Her er eksempler hva du kan bruke en lagerseksjon til:
- Kombinasjonslokale
Lager og kontorlokale i ett for bedrifter som har behov for lager. Mulighet for å tilpasse kontorlokale med vinduer til å bli moderne og lyse enten i form av cellekontor eller åpent landskap - Showroom
Tilpass ditt eget showroom perfekt for handel eller kundemottak - Bedriftslager
Perfekt for håndverksbedrifter og småbedrifter som trenger plass til utstyr, varer eller materialer - Produksjonslokale
Her kan du ha produksjonslokale tilrettelagt for både små og store produksjonsbedrifter. - Hobbyverksted
Romslig og godt tilrettelagt for verktøy, prosjekter og hobbyaktiviteter. - Ekstra lagerplass for private eiendeler
Om du trenger mer plass hjemme, fordi leiligheten er boligen er for liten, så er dette en ideell plass for tingene dine - Lagring av kjøretøy
Ideelt for oppbevaring av bil, båt, bobil eller campingvogn – trygt og tilgjengelig året rundt.
Matrikkelinformasjon
Visning
OVEA AS
Sjur M. Ringøen
Johannes Bøe
Nærområdet
Annonseinformasjon
| FINN-kode | 402003087 |
|---|---|
| Sist endret | 25. feb. 2026 07:10 |
| Referanse | Sydinga 68 |
Annonsene kan være mangelfulle i forhold til lovpålagt opplysningsplikt. Før bindende avtale inngås oppfordres interessenter til å innhente komplett informasjon fra meglerforetaket, selger eller utleier.






