Bildegalleri

K46 Coworking ligger i toppetasjen
K46 - nytt kontorfellesskap
Nøkkelinfo
- Areal
- 10 - 500 m²
- Bruksareal
- 500 m²
- Tomteareal
- 2 700 m²
- Etasje
- 4.
- Kontorplasser
- 30
- P-plasser
- 50
- Renovert år
- 2024
- Overtakelse
- 15.04.25
Type lokale
Fasiliteter
Om eiendommen
I K46 leier du "all inclusive" i et meget spennende og pent kontormiljø.
Bedriftene som allerede er på plass jobber innenfor eiendom, bemanning, energi, sikkerhet, IT, gjenbruk, reklame/design/foto, med flere.
Nytt og moderne kontormiljø på Kokstad
Kokstadvegen 46 er et helt nytt bygg hvor toppetasjen er innredet som et kontorfellesskap for ulike bedrifter. K46 Coworking.
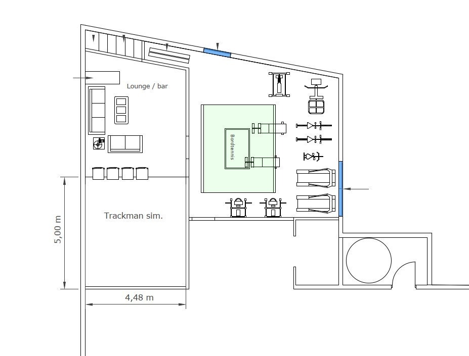
Her kan man leie små og større kontorer, som alle er låsbare og fullt innredet med grunnleggende møbelpakke fra Kinnarps. I tillegg har man tilgang på moderne møterom, kantine, fullt utstyrt treningsrom, Trackman golfsimulator, sykkelparkering innendørs, garderober med dusj, kaffelounger, mv..
Beliggenhet
Adkomst
Standard
Innhold
- 35 innredete kontorer (tilpasset for 1-4 personer).
- 2 romslige møterom tilpasset for videokonferanse.
- Kantine- og konferansrom.
- Print- og kopisone.
- Innendørs sykkelparkering.
- 2 store garderober med dusj.
- Låsbare skap.
- Kaffebar.
- Flere lounger for uformell prat og møter.
- Treningsrom med styrke- og kondisjonsapparater.
- Trackman golfsimulator.
- Personheis.
- Vareheis.
- Lagerrom i ulike størrelser.
Matrikkelinformasjon
Visning
Ta kontakt for å avtale visning.
Joa Gruppen AS
Nærområdet
Annonsene kan være mangelfulle i forhold til lovpålagt opplysningsplikt. Før bindende avtale inngås oppfordres interessenter til å innhente komplett informasjon fra meglerforetaket, selger eller utleier.






























