Bildegalleri

Kontorbygg-Bjørumsvegen 5.jpg
Kontorbygg og lager til leie - Blakstadheia, Froland
Nøkkelinfo
- Tomt
- Eiet
Type lokale
Kort om eiendommen
Fleksible løsninger kan leies samlet eller hver for seg
På Blakstadheia næringsområde i Froland tilbys et moderne kontorbygg og lager for fremleie. Lokalene kan leies samlet, eller hver for seg hele eller deler av kontorbygget. Eiendommen har god beliggenhet i et etablert næringsområde med enkel adkomst og gode parkeringsforhold.
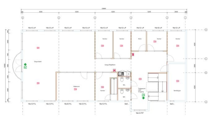
Kontorbygg inntil 500 m² fordelt over 2 etasjer
Totalt ca. 500 m² med fleksibel inndeling og mulighet for å leie én eller begge etasjer. Lokalene holder god standard og egner seg for ulike typer kontorvirksomhet.
Første etasje (ca. 250 m²)
-8 cellekontorer
-Møterom
-Moderne kantine/personalrom
-Toaletter og teknisk rom
Andre etasje (ca. 250 m²)
-Flere cellekontorer
-Møterom
-Åpent område egnet for landskapskontor
-God takhøyde og godt lysinnslipp
Det er gode lysforhold og utsyn fra bygget. Uteområdet er asfaltert og det er rikelig med parkering.
Gruslagt uteareal er tilgjengelig for leie (se egen annonse).
Lager ca. 220 m²
I tilknytning til kontorbygget ligger et praktisk lagerbygg med kjøreport og enkel adkomst. Egner seg godt som lager for materiell, varer eller utstyr.
Fleksibel utleie
-Hele eller halve kontorbygget
-Lager og kontor kan leies samlet eller separat
-Kort- og langtidsleie mulig
-Tilpasning etter behov kan vurderes
Ta kontakt for mer informasjon, visning eller dialog om leiebetingelser.
Beliggenhet
Beliggenhet Blakstadheia, Froland
Eiendommen ligger innerst på Blakstadheia næringsområde, ca. 7 km fra Stoa og E18. God logistikktilgang og nærhet til Arendal gjør dette til en attraktiv plassering for bedrifter med behov for kombinert kontor og lager.
Utleiers krav til sikkerhet
Det må påregnes og stille bankgaranti eller depositum som sikkerhet for leieforholdet. Normalt utgjør garantisummen et beløp som tilsvarer ett års forpliktelser iht. leiekontrakt.
Matrikkelinformasjon
Visning
Ta kontakt for å avtale visning.Nyttige lenker
Nærområdet
Annonseinformasjon
| FINN-kode | 400099715 |
|---|---|
| Sist endret | 28. mars 2025 15:01 |
| Referanse | 1-0166/24 |
Annonsene kan være mangelfulle i forhold til lovpålagt opplysningsplikt. Før bindende avtale inngås oppfordres interessenter til å innhente komplett informasjon fra meglerforetaket, selger eller utleier.













