Bildegalleri

014_.jpg
Flotte kontorer sentralt på Stoa!
Nøkkelinfo
- Areal
- 213 m²
- Bruttoareal
- 213 m²
- Tomt
- Eiet
Type lokale
Kort om eiendommen
Industritoppen 6C byr på et moderne kontorlokale med lekre cellekontorer og møterom.
Innhold
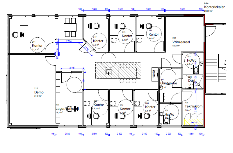
Kontorlokalet fremstår moderne og presentable og er innflytningsklare for nye leietakere nå.
Lokalene består av 8 cellekontororer av forskjellig størrelse, et spesialtilpasset møterom/demontrasjonsrom for lyd og et romslig vrimleareal i midten. Her kan man etablere gode sosiale soner, samtidig som det er enkelt å trekke seg tilbake til kontoret.
Det er to tilhørende toaletter, samt dusj og garderobe.
Kontoret byr også på parkering utenfor, mulighet for eksponering av firma på fasaden og et rom som tidligere er blitt brukt til demonstrasjon av lydanlegg, som kan passe til alt fra samtalerom til lager.
Her får man nærhet til alt, moderne lokale og et kontor som er svært presentabelt!
Utleiers krav til sikkerhet
Det må påregnes og stille bankgaranti eller depositum som sikkerhet for leieforholdet. Normalt utgjør garantisummen et beløp som tilsvarer ett års forpliktelser iht. leiekontrakt.
Matrikkelinformasjon
Visning
Ta kontakt for å avtale visning.Nyttige lenker
Næringsmegleren
Nærområdet
Annonseinformasjon
| FINN-kode | 400036868 |
|---|---|
| Sist endret | 31. mars 2025 05:59 |
| Referanse | 1-0037/25 |
Annonsene kan være mangelfulle i forhold til lovpålagt opplysningsplikt. Før bindende avtale inngås oppfordres interessenter til å innhente komplett informasjon fra meglerforetaket, selger eller utleier.














