Bildegalleri

Pilestredet Park 7
Helse, behandling og kontorlokaler i ærverdig eiendom - Pilestredet Park 7
Nøkkelinfo
- Areal
- 108 - 268 m ²
- Overtakelse
- Etter avtale
Type lokale
Kontor
Undervisning/Arrangement
Fasiliteter
Aircondition
Alarm
Bredbåndstilknytning
Garasje/P-plass
Heis
Kantine
Om eiendommen
Bare et steinkast unna regjeringskvartalet ligger gamle kvinneklinikken, et perfekt sted for bedriften som ønsker å leie i et fellesskap som representerer mangfoldet i norsk helsetjeneste. Gamle kvinneklinikken ble omdøpt til Domus & Medicus som følge av en strategi om å samlokalisere foretak som driver pasientrettet virksomhet. Dette har medført synergier som er tids- og ressursbesparende for både pasient, behandler og samfunnet. Leietakerne er i hovedsak offentlige institusjoner eller virksomheter med avtaler med det offentlige helsevesen.
Edvard Munch skolen er også lokalisert i eiendommen i dag. Med fellesfunksjoner som auditorium, møterom, kafé, treningslokaler, etc., møtes menneskene i bygget - og det blir et dynamisk, hyggelig og tverrfaglig miljø.
Eiendommen ble oppført i 1914 og ble offisielt tilgjengelig for allmennheten 31. august 2006. Byggets interiør har blitt rehabilitert sammen med statsbygg, riksantikvar og byantikvar for å møte moderne krav til gode arbeidshorhold. Som følge av et samarbeid om utsmykking mellom Domus & Medicus og Det Norske Medicinske selskab vant bygget Fortidsminneforeningens Kulturvernpris i 2006.
NB! Bygningen er planregulert til offentlige- og allmennyttige formål og lokalene er godt egnet for helserelatert virksomhet.
Ta kontakt for å høre mer om de spennende mulighetene i denne eiendommen.
Edvard Munch skolen er også lokalisert i eiendommen i dag. Med fellesfunksjoner som auditorium, møterom, kafé, treningslokaler, etc., møtes menneskene i bygget - og det blir et dynamisk, hyggelig og tverrfaglig miljø.
Eiendommen ble oppført i 1914 og ble offisielt tilgjengelig for allmennheten 31. august 2006. Byggets interiør har blitt rehabilitert sammen med statsbygg, riksantikvar og byantikvar for å møte moderne krav til gode arbeidshorhold. Som følge av et samarbeid om utsmykking mellom Domus & Medicus og Det Norske Medicinske selskab vant bygget Fortidsminneforeningens Kulturvernpris i 2006.
NB! Bygningen er planregulert til offentlige- og allmennyttige formål og lokalene er godt egnet for helserelatert virksomhet.
Ta kontakt for å høre mer om de spennende mulighetene i denne eiendommen.
Fellesfasiliteter
Garderober, treningsrom, kantine, felles møterom, auditoriet, parkering for besøkende
Adkomst
Offentlig kommunikasjon er i umiddelbar nærhet til eiendommen.
- Buss - 2 min til Stensberggata
- Trikk - 5 min til Frydenlund
- Tog og T-bane - 14 minutter til Nationaltheateret
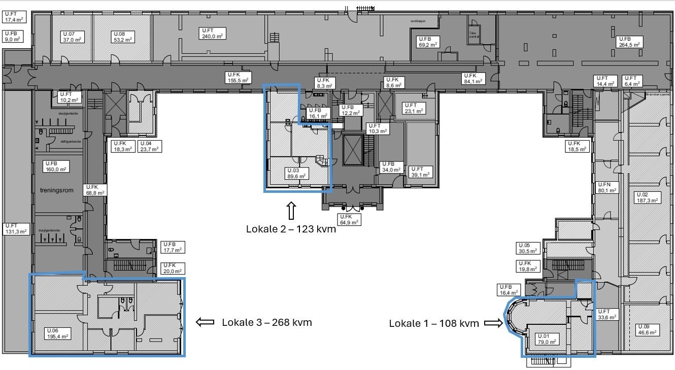
Innhold
- Lokale 1: 108 kvm BTA. Lokalene har eget inngangsparti fra gateplan og består av flere behandlingsrom/kontorer samt kjøkken og toaletter og har tilgang til fellesfasiliteter.
- Lokale 2: 123 kvm BTA. Lokalet har adkomst via hovedinngang og består i dag av 4 behandlingsrom/kontorer samt ventesone og tilgang til minikjøkken, toalett og fellesfasiliteter.
- Lokale 3: 268 kvm BTA. Lokalet har inngang fra gateplan og består i dag av et stort åpent rom/landskap samt kjøkken. Tilgang til toaletter og fellesfasiliteter.
Lokalene kan tilpasses etter behov. Se bilder av de aktuelle lokalene, og ta kontakt for plantegning eller andre spørsmål.
Matrikkelinformasjon
Kommunenr: 301
Gårdsnr: 208
Bruksnr: 949
NB: Knappen for å vise hele beskrivelsen har kun en visuell effekt.
NB: Knappen for å vise hele beskrivelsen har kun en visuell effekt.
Visning
Ta kontakt for å avtale visning.
PROPCAP MANAGEMENT AS
Nærområdet
Annonseinformasjon
| FINN-kode | 399893667 |
|---|---|
| Sist endret | 23. jan. 2026 10:07 |
| Referanse | Domus Medicus |
Annonsene kan være mangelfulle i forhold til lovpålagt opplysningsplikt. Før bindende avtale inngås oppfordres interessenter til å innhente komplett informasjon fra meglerforetaket, selger eller utleier.


















