Bildegalleri

2 etg 4
Kontorlokaler i næringseiendom ledig for leie.
Nøkkelinfo
- Areal
- 140 - 170 m²
- Bruksareal
- 500 m²
- Tomteareal
- 9 500 m²
- Etasje
- 2.
- Kontorplasser
- 20
- Byggeår
- 2007
- Renovert år
- 2018
- Energimerking
- D - Oransje
- Overtakelse
- 01.04.2024
Type lokale
Fasiliteter
Om eiendommen
Næringsbygg i 3 etasjer med mange muligheter i ledige lokaler på Stangnesterminalen 18 i Harstad. Fin beliggenhet med gode parkeringsmuligheter. Muligheter for flere kombinasjoner av leieobjektene etter behov fra leietager. Fleksible kontorarealer kan deles opp etter behov.
Hovedbygning fra 2007.
Leiepris etter avtale.
Del 4 i 2 etg. på ca. 170 kvm. Bestående av uinnredet åpent landskap som kan tilpasses leietakers behov. Dette området egner seg til kontorlokaler og møterom.
Del 6 i 2 etg. på ca. 165 kvm. Bestående av gang, spiserom/møterom og 4/5 kontorer.
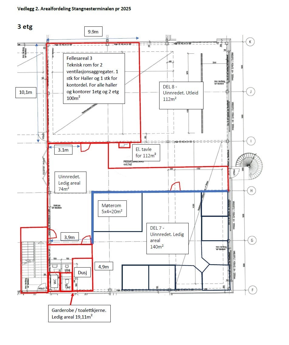
Del 7 i 3 etg. på ca. 140 kvm. Bestående av uinnredet åpent landskap som kan tilpasses leietakers behov. Dette området egner seg til kontorlokaler og møterom.
Alle arealene har tilgang til wc'er/dusj og garderobe.
Gode parkeringsmuligheter rett utenfor døren.
Beliggenhet
Stangnesterminalen 18, 9409 Harstad
Matrikkelinformasjon
Visning
Nyttige lenker
SULLAND EIENDOM AS
Nærområdet
Annonseinformasjon
| FINN-kode | 397685687 |
|---|---|
| Sist endret | 20. mars 2025 14:30 |
| Referanse | Pnr 527-TFM100 |
Annonsene kan være mangelfulle i forhold til lovpålagt opplysningsplikt. Før bindende avtale inngås oppfordres interessenter til å innhente komplett informasjon fra meglerforetaket, selger eller utleier.
















