Bildegalleri

Industriveien 1
Næringslokale til salg/leie - Industriveien 1, Brønnøysund
Nøkkelinfo
- Areal
- 2 200 m²
- Tomteareal
- 6 474 m²
- Etasje
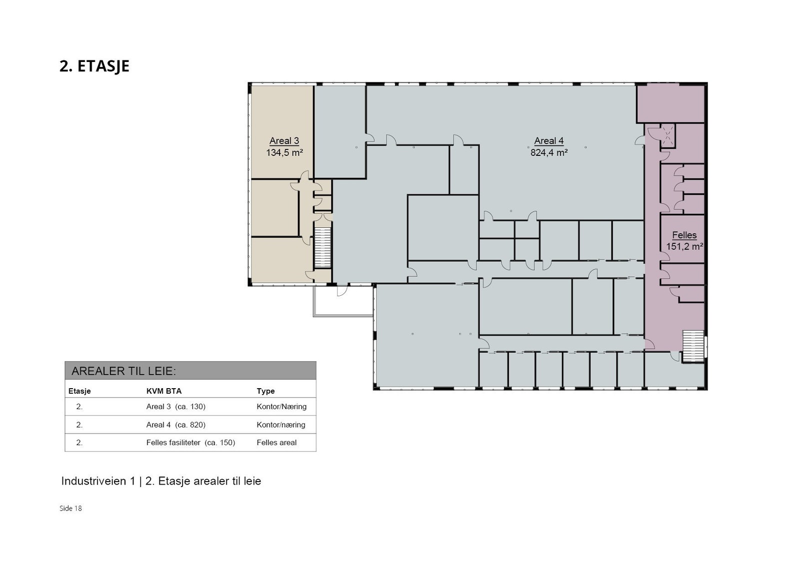
- 2.
- Kontorplasser
- 150
- P-plasser
- 90
- Byggeår
- 1984
- Renovert år
- 2011
- Overtakelse
- 01012022
Type lokale
Fasiliteter
Om eiendommen
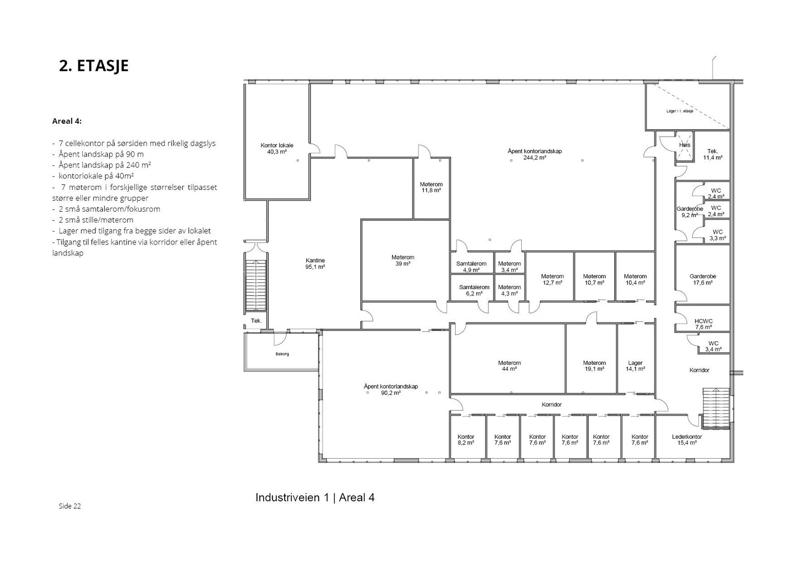
- Området er i dag regulert til forretning, kontor og industribygg. Bygningen er på ca. 2200 m2 og har 2. etasjer med næringslokaler som har vært brukt til offentlig kontorvirksomhet. Tilhørende næringslokaler er eksisterende mekanisk verksted som i dag er i drift og ikke del av utleielokaler. I dag er bygget benyttet til kontorvirksomhet med kontorplasser for totalt 150 ansatte. Leiekontrakt utgår 31.12.2021, og vil være tilgjengelig for nye utleiere i primo 2022. Bygget ble oppført I 1984, men i 2010 ble store deler av bygget totalrenovert og fremstår i god stand. Ombygging ble tilpasset krav opp mot offentlig kontorlokaler og fremstår med god bygningsmessig standard. Med tanke på innemiljø er det god standard med akustisk himling og teppeflis på gulv i store deler av bygget. Trafikkareal har gulvbelegg. Bygget har heis mellom 1. og 2. etasje. Krav til universell utforming var henhold til gjeldende regelverk ved renovering (TEK10). Bygget har et mindre lager som kan benyttes til varemottak på baksiden.
POTENSIELLE LEIETAKERE
Industriveien 1 er et bygg med stort potensiale som kan passe for mange ulike leietakere, bransjer og bedrifter. Det er totalt 2200 m2 med næringslokaler for ca. 150 arbeidsplasser. Byggets utforming og konstruksjon gir stor fleksibilitet til å samlokalisere flere virksomheter og i tillegg kunne seksjonere lokaler til forskjellige leietakere. Potensielle leietakere/virksomheter:
* En nyoppstartet bedrift som mangler kontorlokale, eller ønsker å jobbe i et kontorlandskap og felles miljø med andre aktører.
* Helsestasjon, lege, tannlege og fysioterapaut
* Selvstendig næringsdrivende
* Mulighet for etablere lagerfasiliteter
* Detaljvarehandel
* Offentlig/privat virksomhet
* Mindre bedrifter
* Lokale for IT utdannelser eller lignende
* Industri
* Treningssenter
* Bemanningsbyrå
* Enkeltpersonforetak med ønske om eget kontor
* Utleie for møteromsvirksomhet
* Innovative miljø/inkubator lokaler
* Stille fokuslokaler/kontor for studenter som alternativ til bibliotek
* Galleri eller fotografstudio
Opsjon for aktuelle leietakere: Profilering av fasade/endring i samråd med leietaker er aktuelt for leietakere med langsiktig leieperspektiv. Det kan ordnes med visualisering av logo, designvalg på fasade og i bygget for egen bedrift, og bistand til planløsning ved behov.
Salg kan vurderes om det skulle være mer aktuelt.
Beliggenhet
Adkomst
2 innganger på sørsiden av bygget, og en sideinngang på nordsiden mot hovedveien.
Det er i tillegg port- adkomst til varelmottak/lager på baksiden.
Parkering :
Det er rikelig med parkering på bakkeplan utenfor bygningen som tilhører leietakere for bygget. Parkeringsplassen kan etableres med ladepunkt EL-bil ved behov. Det er mulig for oppstilling av sykkelparkering.
Det er også gode muligheter for utvidelse av parkeringsareal.
Standard
- El-tavler er integrert i bygget i etasjene, men teknisk rom for ventilasjon og varmepumpe er plassert på baksiden (nordsiden) i et eget rom med utvendig adkomst. Oppvarming for bygningen er elektrisk oppvarming (panelovn) og varmepumpe tilknyttet ventilasjon. (Luft til vann varmepumpe). Bygget har aggregat/nødstrømsforsyning, og egen dieseltank i lite tilbygg på baksiden.
Innhold
FELLES FASILITETER:
I begge etasjer er garderobefasiliteter og toalett plassert I enden av lokalene mot øst. I 1. etasje er det et pauserom og i 2. etasje er det en større felles kantine som kan benyttes av flere leietakere. Kantine er utstyrt med kjøkken, nødvendige hvitevarer og industrioppvaskmaskin. Fra kantine er det tilgang til et lite uteoppholdsareal på balkong.
Matrikkelinformasjon
Visning
Ta kontakt for å avtale visning.Nyttige lenker
Nærområdet
Annonsene kan være mangelfulle i forhold til lovpålagt opplysningsplikt. Før bindende avtale inngås oppfordres interessenter til å innhente komplett informasjon fra meglerforetaket, selger eller utleier.


























