Bildegalleri

Bredmyra-4-1
Spennende kontorarealer med muligheter for lager/monteringsarealer mm til leie - Kampenes - Sarpsborg
Nøkkelinfo
- Areal
- 139 m²
- Bruttoareal
- 139 m²
- Tomteareal
- 9 500 m² (eiet)
- Byggeår
- 1988
Type lokale
Kort om eiendommen
En spennende eiendom med varierende innhold. Godt eksponert mot hovedveien mot Rakkestad/Sarpsborg. Meget godt med parkering og gode muligheter for både lager, showrom mm.
Beliggenhet
Eiendommen ligger fint til i et etablert næringsområde (Kampenes), ca 8 km fra Sarpsborg sentrum. Kort avstand til rekreasjonsområder, f.eks Skjeberg golfklubb med 18 hulls golfbane. Det har vært god utvikling av området de seneste årene, både innenfor næring og bolig.
Innhold
Det er flere ledige arealer, arealene kan muligens deles i mindre deler for rett leietaker.
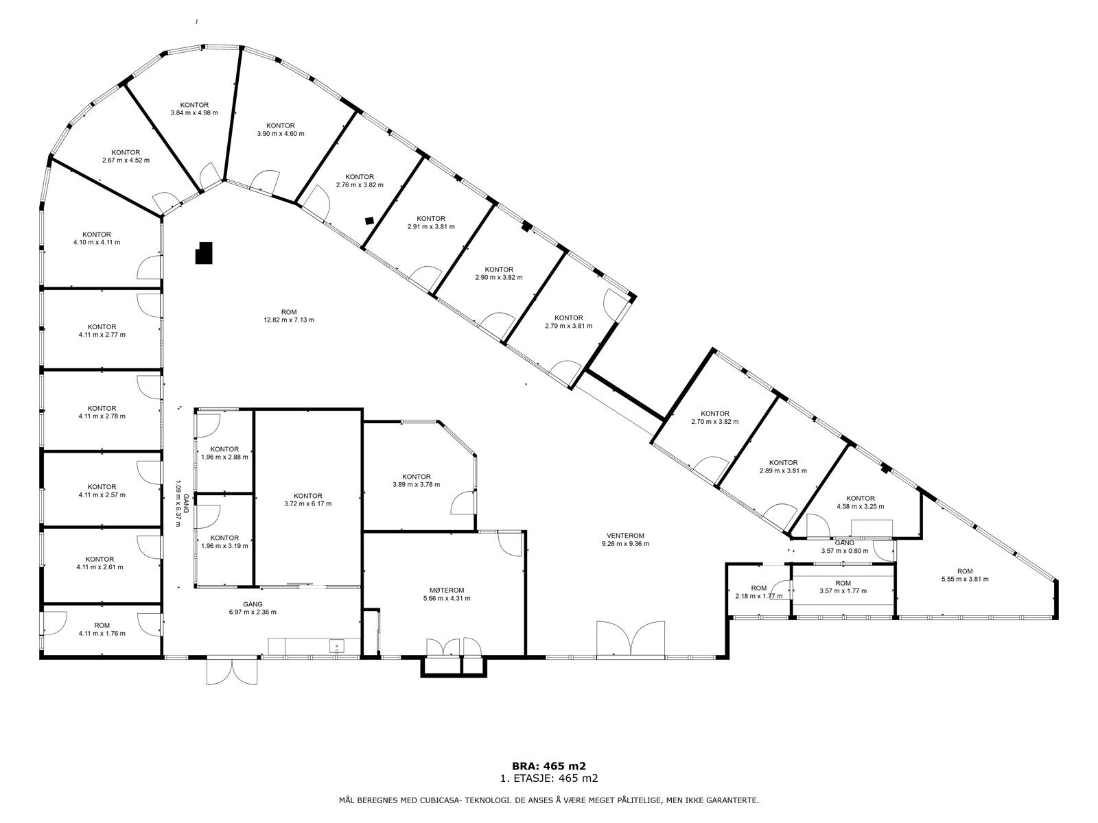
Areal A:
480 kvm: Pene og moderne kontorlokaler som kan leveres ferdig møblert om ønskelig. Lokalene består av 19 kontorer, 2 kjøkken, 2 romslige møterom. Videre har lokalene 2 utganger, arkvirom ol. Lokalene leveres med ventilasjon med kjøling. Det tilkommer fellesarealer som kan benyttes til showrom/ustilling mm ved nærmere avtale. Videre har man tilgang til garderober, dusj, toaletter ol.
Areal B:
139 kvm: Pene og moderne kontorlokaler med egen inngang (i tillegg til annen adkomst). Lokalene består av 6 kontoer, møterom, kjøkken mm. Fellesareal kommer i tillegg og inneholder åpent areal som kan benyttes til utstilling/showrom ved avtale. Videre er det tilgang til garderober, dusj, toaletter mm.
Begge arealene har tilgang til asfaltert p-plass med god kapasitet.
Areal C:
238 kvm. Lagerarealer med egen stor kjøreport. Lokalene har god takhøyde. Lagerarealet leies kun ut i sammenheng med kontorlokalene.
Standard
Lokalene holder i hovedsak en god og tiltalende standard.
Lokalene kan leveres ferdig møblert etter avtale.
Adkomst
Fra Sarpsborg:
Følg hovedveien ut av Sarpsborg (over Sarpebrua), følg veien (Fv 111) mot Rakkestad. Etter noen km er det skiltet til venstre til Kampenes næringsområde. Ta inn til området, deretter første til venstre og eiendommen er beliggende på høyre hånd etter ca. 150 meter.
Fra Oslo:
Ta av fra E6 rett etter Sandesundbrua (mot Fredriksta Øst/Sarpsborg S). Følg veien mot Sarpsborg/Rakkestad. Ta til høyre i rundkjøringen ved Hafslund Hovedgård og følg veien mot Rakkestad (Fv 111). Etter noen km er det skiltet til venstre til Kampenes næringsområde. Ta inn til området, deretter første til venstre og eiendommen er beliggende på høyre hånd etter ca. 150 meter.
Parkering
Meget godt med parkering på egen asfaltert plass rett ved bygget.
Lovanvendelse
Oppdraget reguleres i henhold til Lov om eiendomsmegling av 29.06.2007 nr. 73. Fravikeligheten som framgår av lovens § 1-3 og forskriftens § 1-2 er anvendt for dette oppdraget.
Dersom det avtales påkostninger/vedlikehold av leieobjektet som dekkes av utleier eller leietaker må partene selv avklare skattemessige konsekvenser, herunder avskrivningsregler og eventuelle justeringsregler for merverdiavgift med sine respektive revisorer eller advokater. Megler er uten ansvar for konsekvenser reglene påfører partene.
Leietaker er ansvarlig overfor alle offentlige myndigheter for at hans benyttelse av leieobjektet tilfredsstiller de til enhver tid gjeldende offentligrettslige krav i leieperioden.
Offentligrettslige krav knyttet til universell utforming skal besørges og bekostes av leietaker, når kravet i hovedsak kan tilbakeføres til leietakers særlige bruksformål eller den bransje leietaker driver i leieobjektet. Offentligrettslige krav knyttet til universell utforming, som ville blitt pålagt uavhengig av de alternative bruksformål som leieobjektet lovlig kan benyttes til, skal besørges og bekostes av utleier.
Utleie av eiendommen vil skje på alminnelige betingelser for leie av næringslokaler.
Ansvaret mellom partene foreslås regulert i tråd med etablert praksis i Meglerstandard utarbeidet av FFN.
Hvitvaskingsloven
Det følger av lov om tiltak mot hvitvasking og terrorfinansiering at meglerforetaket er forpliktet til å foreta kundetiltak av begge parter i handelen. For oppdragsgiver skjer dette i forbindelse med inngåelse av oppdraget, og for leietaker på tidspunkt for kontraktsinngåelse. Dersom slik kundekontroll ikke kan gjennomføres, er meglerforetaket pålagt å avstå fra gjennomføring av handelen. Partene er selv ansvarlig for eventuelle kostnader og ansvar dette kan medføre uten at det kan anføres et kontraktsrettslig ansvar overfor meglerforetaket.
Energimerking
Utleier skal legge frem energiattest for leietaker, før avtale om utleie av bygning blir inngått. Energiklassifiseringen har en scala fra A-G, men det foreligger ikke energisertifikat på denne eiendommen pr. avtaletidspunkt.
Utleier er oppfordret til å besørge eiendommen energiklassifisert. Leietaker er selv ansvarlig for eventuelt å innhente et energisertifikat på eiendommen. Så lenge energiattest ikke foreligger bør interessenter legge til grunn at eiendommen har laveste energiklasse.
Boligen er ikke energimerket, og kan risikere å få dårligste energiklasse som tilsvarer rød G. Interessenter gjøres oppmerksom på at de kan få laget energiattest innen ett år etter at kjøpsavtalen ble inngått, på selgers regning.
Matrikkelinformasjon
Nyttige lenker
Proaktiv Eiendomsmegling Sarpsborg
Nærområdet
Annonseinformasjon
| FINN-kode | 394052807 |
|---|---|
| Sist endret | 10. feb. 2026 08:33 |
| Referanse | 1710260127 |
Annonsene kan være mangelfulle i forhold til lovpålagt opplysningsplikt. Før bindende avtale inngås oppfordres interessenter til å innhente komplett informasjon fra meglerforetaket, selger eller utleier.































