Bildegalleri

Illustrasjon av oppgraderte lokaler. (1. et)
650 kvm i 1. etasje + 360 kvm i 3. etasje / Rett ved buss og tog / Sandvika /
Nøkkelinfo
- Areal
- 285 - 657 m²
- Overtakelse
- Nå
Type lokale
Om eiendommen
VED TOGSTASJONEN I SANDVIKA - finner du Leif Tronstads plass 6! Nå kan vi tilby åpne og lyse lokaler på ca 657 kvm BTA. Alt på en etasje!
Lokalene kan enten overtas as is, eller tilpasses / oppgraderes. Mulighet til å dele opp i ca hhv 372 (A) kvm og 285 kvm (B). For alt A, leier man i tillegg areal i kjeller med lager, dusj/garderobe på ca 286 kvm (gunstig leie!).
Lokalet har vinduer langes begge langsidene, noe som gir gode arbeidsplasser og fine løsninger. Meget god profilering mot Sandvika togstasjon og bussterminal.
I tillegge får vi ledig 360 kvm i 3. etasje fra 01.07.2026.
Sandvika er nå i en rivende utvikling, der sentrum av Sandvika vil fornyes i løpet av de kommende 2-10 årene. Dette vil gjøre området meget attraktivt for selskaper å etablere seg, da hele Sandvika by vil fornyes både med butikker, boliger, servicefunksjoner og kontorlokaler. Få steder vil kunne tilby så mye som Sandvika, med nærheten til sjøen, strandliv og annen natur. Store områder rundt sentrum vil også bli transformert til gode boligområder, noe som vil gjøre at Sandvika vil fremstå som kanskje det mest attraktive området i Bærum. Derfor forventer SSB at Bærum vil ha en befolkningsvekst på 8% fra 2021 til 2031.
OPPLEV SANDVIKA:
www.sandvikaby.no
Beliggenhet
Leif Tronstads plass 6 ligger kun 30 sekunders gange fra Sandvika togstasjon. Jernbanestasjonen er en av de største i distriktet. Her stopper både Flytoget og utvalgte Inter-city-tog på Askerbanen og lokaltog på Drammenbanen.
Ved jernbanestasjonen ligger også Sandvika bussterminal (en av de største i Oslo og Akershus-området) og taxiholdeplass.
Adkomst
Eiendommen ligger tett på Sandvika sentrum, og det er kun 2-3 minutters kjøring fra E18.
Stort p-anlegg rett inntil bygget, samt times-parkering ved siden av.
Innhold
Lokalet er i byggets 1. etasje.
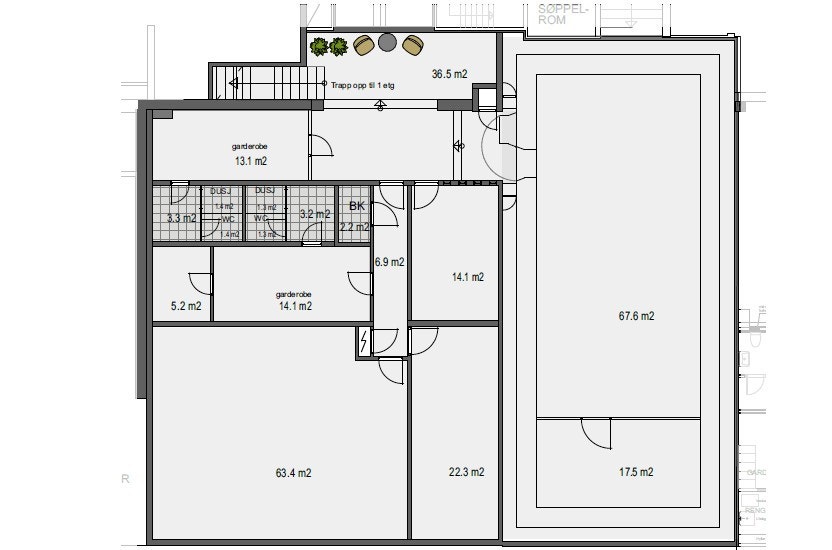
Samlet areal er 657 kvm (men kan deles opp til hhv 372 kvm og 285 kvm). I kjeller er det ca 286 kvm med dusj/garderobe, samt lager.
Lokalene kan overtas as is, men gårdeier ser også for seg mulighet for å oppgradere lokalene. Se utkast planskisser samt inspirasjonsbilder.
Det er wc i kjeller, samt felles på etasjen (dersom man deler opp lokalet).
+
I tillegg får vi 360 kvm i 3. etasje fra juli 2026.
VELKOMMEN TIL VISNING!
Visning
Ta kontakt for å avtale visning.Nyttige lenker
Cushman & Wakefield Realkapital
Nærområdet
Annonseinformasjon
| FINN-kode | 393797046 |
|---|---|
| Sist endret | 07. apr. 2026 06:38 |
| Referanse | 3-0066/23 |
Annonsene kan være mangelfulle i forhold til lovpålagt opplysningsplikt. Før bindende avtale inngås oppfordres interessenter til å innhente komplett informasjon fra meglerforetaket, selger eller utleier.





































