Bildegalleri

Grenlands mest sentrale næringslokale?
Nøkkelinfo
- Areal
- 250 - 730 m²
- Etasje
- 23.
- Kontorplasser
- 30
- Byggeår
- 2024
- Renovert år
- 2014
Type lokale
Fasiliteter
Om eiendommen
Leieobjektet ligger svært sentralt mellom Porsgrunn og Skien. Lokalet blir liggende i 3. etasje. Plasseringen må kunne sies å være i hjertet av Grenland. Bruhodet er et næringsbygg som i dag inneholder mange ulike virksomheter, og som i fremtiden er planlagt for enda flere virksomheter (Beskrivelse av eksisterende leietakere vedlagt).
Bruhodet ligger mellom Skien og Porsgrunn på østsiden av elva. Adkomst til vestsiden av elva via Menstadbrua, som ligger inntil og på sørsiden av eiendommen. Det passerer ca. 14.000 biler per. døgn forbi Bruhode over Menstadbrua, noe som gjør dette punkter til et av de mest trafikkerte i Grenland. Muligheter for profilering blir naturligvis deretter.
Beliggenheten i knutepunktet mellom Skien og Porsgrunn er også et perfekt utgangspunkt mot både Øvre Telemark og E-18.
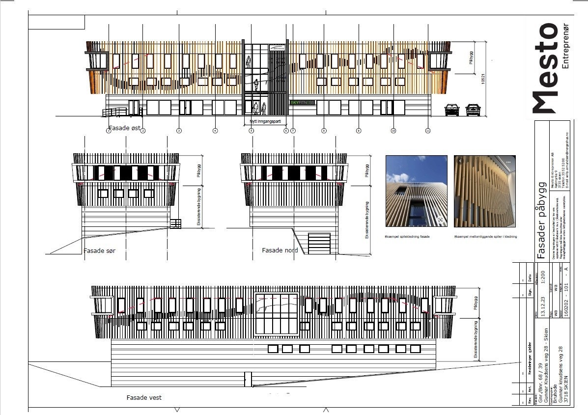
Vi har ledige lokaler for leie i eksisterende bygning 2. etasje. I tillegg planlegges en toppetasje. Den nye etasjen har et bruttoareal på 711 m2. Den vil kunne benyttes av en virksomhet som har behov for 25-30 kontorarbeidsplasser. Toppetasje består av 2 fløyer, så den kan også huse 2 ulike virksomheter i hver fløy som har behov for 12-15 kontorarbeidsplasser. Arealene har stor fleksibilitet. Det er tegnet inn cellekontorer med ulik plassering av møterom og andre funksjoner. Dette kan naturligvis endres på da toppetasjen er under utvikling og prosjektering.
Gode lokaler, sentral beliggenhet og fasiliter som vil være attraktiv for både for medarbeidere, kunder og samarbeidsparter ellers.
Tegningene og utleieprospekt ligger vedlagt i prospektet som egne lenke i annonsen.
Adkomst
Det er eget buss-stopp ca. 30 meter fra hovedinngangsdør. Det er gode bussforbindelser både til og fra Porsgrunn og Skien. Bussen passerer hvert 10 minutt.
Visning
Ta kontakt for å avtale visning.Nyttige lenker
BEKKEDAL AS
Nærområdet
Annonsene kan være mangelfulle i forhold til lovpålagt opplysningsplikt. Før bindende avtale inngås oppfordres interessenter til å innhente komplett informasjon fra meglerforetaket, selger eller utleier.








