Bildegalleri

Velkommen til Tungasletta 18 - Kontorlokaler rett ved av- og påkjøring E6 Tunga. God parkeringskapasitet.
Moderne næringsbygg på Tunga - rett ved E6!
Nøkkelinfo
- Areal
- 200 - 1 000 m²
- Byggeår
- 2006
- Overtakelse
- Høsten 2025
Type lokale
Fasiliteter
Om eiendommen
Tungasletta 18 – Moderne kontorlokaler med høy standard, strategisk beliggenhet og fantastisk eksponering mot E6. Rikelig med parkeringsplasser!
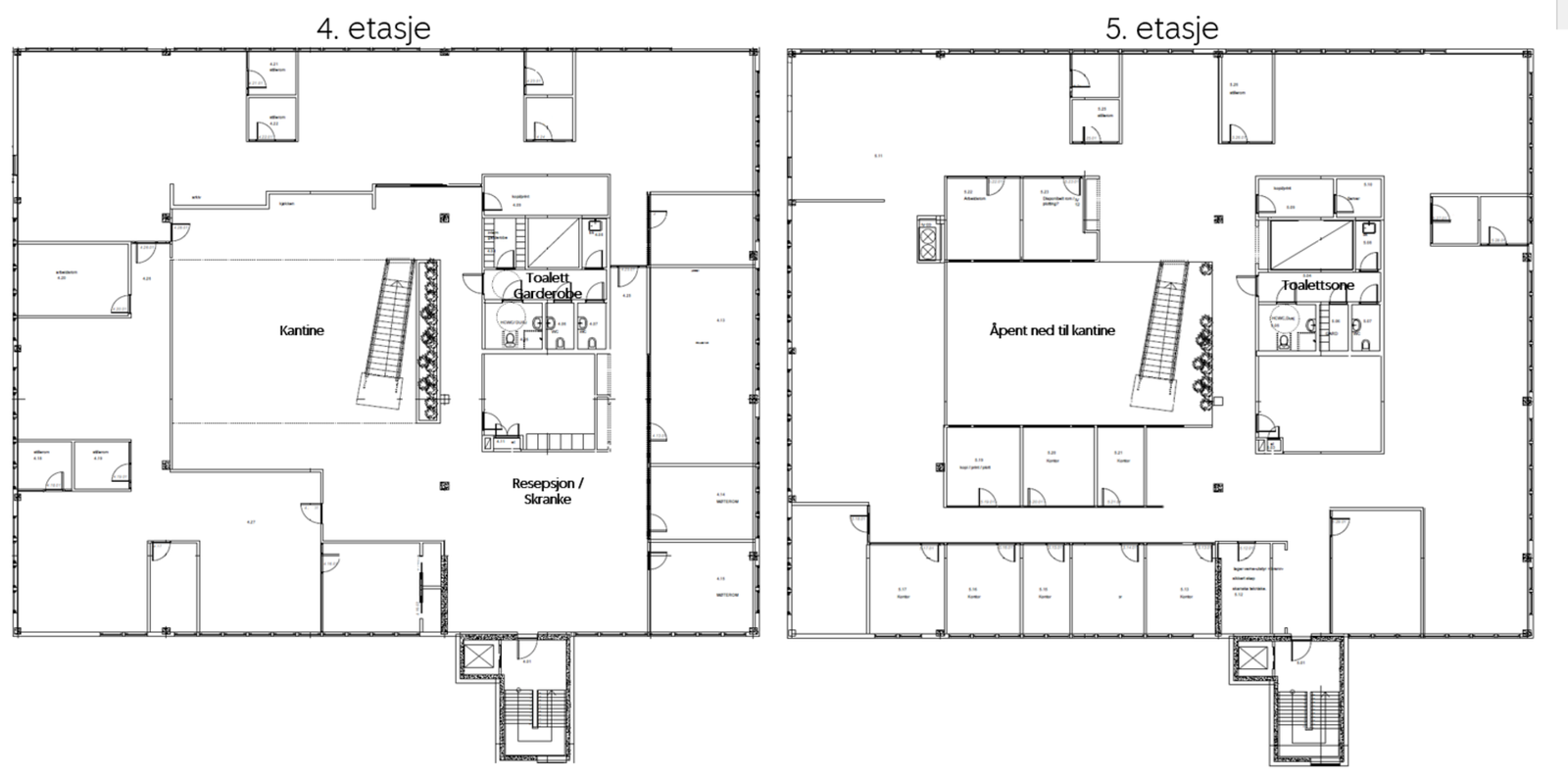
Bygget er et moderne og arealeffektivt næringsbygg med lyse og fleksible kontorlokaler. Den strategiske plasseringen rett ved E6 gir enkel adkomst for både ansatte og besøkende. I bygget finner du gode fellesfasiliteter som skaper et effektivt og trivelig arbeidsmiljø.
Kontorlokalene består av:
- Åpene landskap
- Enkeltkontorer
- Teamkontorer
- Møterom i ulike størrelser
Fasiliteter:
- Parkering – god dekning, inkludert plasser under tak og elbilladere
- Kantine/spisesone – hyggelig fellesområde for ansatte
- Lounge/resepsjonsområde – profesjonell velkomst for besøkende
- Garderober – tilrettelagt for syklister og aktive ansatte
Matrikkelinformasjon
Visning
Ta kontakt for å avtale visning.Nyttige lenker
Norion Næringsmegling
Nærområdet
Annonseinformasjon
| FINN-kode | 393626568 |
|---|---|
| Sist endret | 05. sep. 2025 07:28 |
| Referanse | 48250023 |
Annonsene kan være mangelfulle i forhold til lovpålagt opplysningsplikt. Før bindende avtale inngås oppfordres interessenter til å innhente komplett informasjon fra meglerforetaket, selger eller utleier.





















