Bildegalleri
Kjørbekkdalen 15b
Inaktiv
Butikklokaler ca 950 kvm i Skien travleste handlegate og på Rødmyr i Skien
Nøkkelinfo
- Areal
- 950 m²
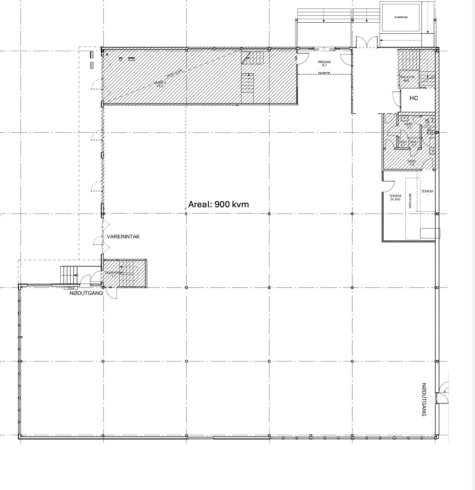
- Bruksareal
- 900 m²
- P-plasser
- 100
- Byggeår
- 1988
Type lokale
Butikk/Handel
Kombinasjonslokaler
Kontor
Lager/Logistikk
Om eiendommen
Forretning og lagerareal med tilhørende fasiliteter. Endelig romplan for fremtidig leietaker tilpasses i samråd med utleier.
Beliggenhet
Forretningslokaler og kontor på Kjørbekk samt lager og kontor på Rødmyr
Adkomst
Butikklokaler ca 950 kvm i Skien travleste handlegate.
Meget sentralt på Kjørbekk ligger Kjørbekkdalen 15B.
Arealene ligger på gateplan inntil
Forretning og lagerareal med tilhørende fasiliteter. Endelig romplan for fremtidig leietaker tilpasses i samråd med utleier.
Adresse: Kjørbekkdalen 15b.
3735 SKIEN.
Ta kontakt.
Kjørbekkdalen og med god eksponering mot veien, hvor det estimeres i underkant av 10.000 daglig forbipasserende.
Eiendommen ligger i et av de mest etterspurte handelsområdene i regionen.
Inngang fra gateplan på nordsiden. Rett over for Rema 1000. Mellom Høøks/Lampemagasinet/Lyreco og Megaflis
Takhøyde 3.6 m
Godt synlig med profilering i Kjørbekkdalen.
Egen kundeinngang og egen vareinngang /vareutlevering.
2.etasje(øverst). Møterom, kontorer, spiserom, WC, m.m.
Gulmarkert område er utleid til regnskapsfirma.
Trapp og heis mellom 1. og 2.etasje.
Hele eller deler av dette kan kombineres med leie av 1.etasje(900 kvm)
Alle lokalene tilpasses ny leietaker i samråd med utleier.
Kontor og lager - Rødmyrlia 18a.
Kontor og lager med mesanin ledig på Rødmyr. 108 m2 kontor med kjøkken, bad og tre separate kontorer. Lager med kjøreport på 108 m2 + ca.100 m2 mesanin over kontordelen. OBS: det kan ikke lastes veldig tunge saker her. Lokalene er oppvarmet med vannbåren jordvarme og varmepumpe. Fiber internett installert.
Meget sentralt på Kjørbekk ligger Kjørbekkdalen 15B.
Arealene ligger på gateplan inntil
Forretning og lagerareal med tilhørende fasiliteter. Endelig romplan for fremtidig leietaker tilpasses i samråd med utleier.
Adresse: Kjørbekkdalen 15b.
3735 SKIEN.
Ta kontakt.
Kjørbekkdalen og med god eksponering mot veien, hvor det estimeres i underkant av 10.000 daglig forbipasserende.
Eiendommen ligger i et av de mest etterspurte handelsområdene i regionen.
Inngang fra gateplan på nordsiden. Rett over for Rema 1000. Mellom Høøks/Lampemagasinet/Lyreco og Megaflis
Takhøyde 3.6 m
Godt synlig med profilering i Kjørbekkdalen.
Egen kundeinngang og egen vareinngang /vareutlevering.
2.etasje(øverst). Møterom, kontorer, spiserom, WC, m.m.
Gulmarkert område er utleid til regnskapsfirma.
Trapp og heis mellom 1. og 2.etasje.
Hele eller deler av dette kan kombineres med leie av 1.etasje(900 kvm)
Alle lokalene tilpasses ny leietaker i samråd med utleier.
Kontor og lager - Rødmyrlia 18a.
Kontor og lager med mesanin ledig på Rødmyr. 108 m2 kontor med kjøkken, bad og tre separate kontorer. Lager med kjøreport på 108 m2 + ca.100 m2 mesanin over kontordelen. OBS: det kan ikke lastes veldig tunge saker her. Lokalene er oppvarmet med vannbåren jordvarme og varmepumpe. Fiber internett installert.
Matrikkelinformasjon
Kommunenr: 806
Gårdsnr: 220
Bruksnr: 1169
NB: Knappen for å vise hele beskrivelsen har kun en visuell effekt.
NB: Knappen for å vise hele beskrivelsen har kun en visuell effekt.
Visning
Ta kontakt for å avtale visning.Nærområdet
Annonsene kan være mangelfulle i forhold til lovpålagt opplysningsplikt. Før bindende avtale inngås oppfordres interessenter til å innhente komplett informasjon fra meglerforetaket, selger eller utleier.





