Bildegalleri

Visualisering mulig forslag
Inaktiv
Her kan vi bygge for deg - Skreddersydde kontorlokaler fra 100 - 800 m2
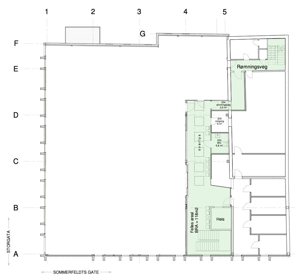
Nøkkelinfo
- Areal
- 50 - 800 m²
- Etasje
- 2.
- Kontorplasser
- 70
- Byggeår
- 1973
- Renovert år
- 2025
- Overtakelse
- Etter avtale
Type lokale
Kontor
Fasiliteter
Aircondition
Bredbåndstilknytning
Heis
Om eiendommen
Sentral eiendom i Storgata, Gjøvik
Vi kan tilby skreddersydde kontorløsninger tilpasset deres behov.
Eiendommen vil få et teknisk og visuellt løft, med nye klima løsninger, energivenlig oppvarming og god infrastruktur.
Arealene kan deles opp og tilpasses samhandling mellom flere aktører i et mer åpent miljø eller i 1-2 større eksklusive arealer.
Eiendommen byr på alle nødvendige fellesfasiliteter som toaletter. garderobe og treningsrom.
Vi er også behjelpelige med tilrettelegging for parkering i nærheten.
Ta kontakt med oss for en uforpliktende prat, så ser vi om vi kan hjelep dere å løse deres behov.
Vi tilbyr "all inklusive" leieavtaler uten overraskelser.
Vi kan tilby skreddersydde kontorløsninger tilpasset deres behov.
Eiendommen vil få et teknisk og visuellt løft, med nye klima løsninger, energivenlig oppvarming og god infrastruktur.
Arealene kan deles opp og tilpasses samhandling mellom flere aktører i et mer åpent miljø eller i 1-2 større eksklusive arealer.
Eiendommen byr på alle nødvendige fellesfasiliteter som toaletter. garderobe og treningsrom.
Vi er også behjelpelige med tilrettelegging for parkering i nærheten.
Ta kontakt med oss for en uforpliktende prat, så ser vi om vi kan hjelep dere å løse deres behov.
Vi tilbyr "all inklusive" leieavtaler uten overraskelser.
Ønsker du leieforhold uten overraskelser?
Vi tilbyr fastpris avtaler som inkluderer alle utgifter til kontoret.
Beliggenhet
Storgata 15 ligger sentralt plassert midt i Gjøvik sentrum, langs byens hovedgate. Storgata er et knutepunkt for handel og byliv, med en rekke butikker, kaféer og servicetilbud, samt en stor tilvekst av kontorarbeidsplasser i umiddelbar nærhet. Fra denne adressen er det kort gangavstand til flere av Gjøviks attraksjoner og fasiliteter, inkludert Gjøvik stasjon, som gir gode kollektivforbindelser både lokalt og regionalt. Området er preget av en kombinasjon av historiske og nyere bygninger, og gaten er velkjent for sitt levende bymiljø. Storgata 15 er med andre ord et lett tilgjengelig og sentralt utgangspunkt for å utforske Gjøvik
NB: Knappen for å vise hele beskrivelsen har kun en visuell effekt.
NB: Knappen for å vise hele beskrivelsen har kun en visuell effekt.
Visning
Ta kontakt for å avtale visning.AEST INVEST AS
Nærområdet
Annonsene kan være mangelfulle i forhold til lovpålagt opplysningsplikt. Før bindende avtale inngås oppfordres interessenter til å innhente komplett informasjon fra meglerforetaket, selger eller utleier.





