Bildegalleri

Fasade.
Kontorlokale i Solheimsviken
Nøkkelinfo
- Areal
- 281 m²
- Etasje
- 4.
- Kontorplasser
- 10
Type lokale
Fasiliteter
Om eiendommen
Om eiendommen
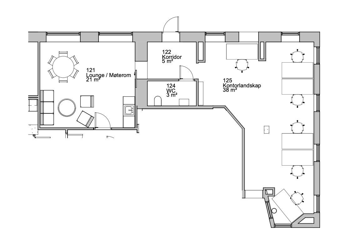
Ledige næringslokaler på gateplan i Administrasjonsbygget, Solheimsgaten 16. Lokalene har egen inngang, og en svært synlig beliggenhet. Lokalene holder god standard, og er nylig oppgradert med ny led-belysning, malte overflater og gulvbelegg. Lokalene består i dag av kontorlandskap, romslig møterom med kjøkken, og toalett.
Fleksible løsninger
Det er mulig å tilpasse lokalene til riktig leietaker, og nye plantegninger/løsningsforslag kan utarbeides ved behov. Ta kontakt, så bistår vi gjerne med dette.
Bli en del av Innovasjonsdistriktet!
Administrasjonsbygget ligger i Innovasjonsdistriktet Solheimsviken og Marineholmen – Et område som samler en kritisk masse av forskere, studenter, oppstartsmiljøer, finans, næringsliv, beboere og besøkende. Dette nabolaget fremmer kreativitet, samarbeid og innovasjon, og er dermed en viktig kilde til verdiskapning og nye arbeidsplasser.
Som leietaker i Administrasjonsbygget får du tilgang til en rekke fordeler:
- Mulighet for rabattert parkeringsavtale i Solheimsviken.
- Kantiner på området.
- Treningsrom.
- Sykkelparkering og moderne garderobefasiliteter.
- Møteromspool. (se oversikt på www.moteplass.gcrieber-eiendom.no)
- Mulighet for båtplass i marina.
- Profilering på bygg og digitale skjermer.
- Rabattavtaler gjennom leietakerapp.
For mer informasjon se nyttige lenker til høyre.
Beliggenhet
Beliggenhet
Solheimsviken har en sentral beliggenhet med enkel tilkomst både med kollektivtransport og bil. Bybane og buss gir rask forbindelse til sentrum og øvrige bydeler, og området er godt tilrettelagt for syklister og fotgjengere.
Det er gode parkeringsmuligheter for ansatte og gjester på området.
Visning
Ta kontakt for å avtale visning.GC Rieber Eiendom AS
Nærområdet
Annonsene kan være mangelfulle i forhold til lovpålagt opplysningsplikt. Før bindende avtale inngås oppfordres interessenter til å innhente komplett informasjon fra meglerforetaket, selger eller utleier.













