Bildegalleri

Sentral beliggenhet i Kirkeby Næringssenter
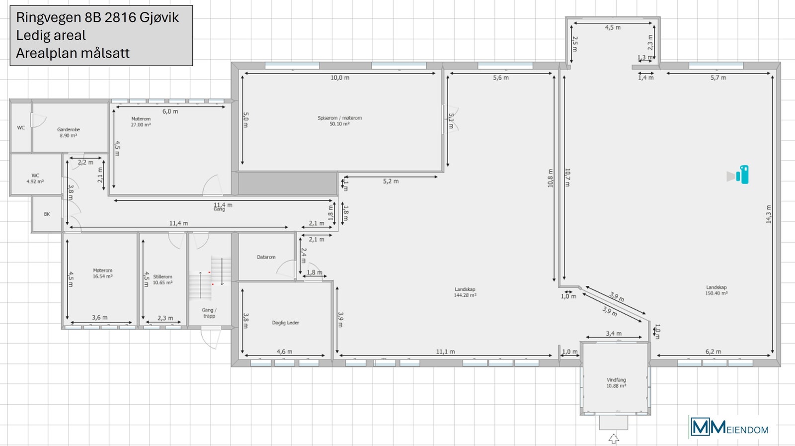
Butikk / kontor areal med god parkering og sentral beliggenhet
Nøkkelinfo
- Areal
- 570 m²
- Bruksareal
- 535 m²
- Etasje
- 1.
- Kontorplasser
- 330
- P-plasser
- 15
- Renovert år
- 2004
- Energimerking
- G - Rød
- Overtakelse
- 01.11.2024
Type lokale
Om eiendommen
Fleksible og fine lokaler sentralt på Kirkeby i Gjøvik, tett på RV33 har vi ledig butikk / kontorareal.
540 kvm i plan 1, med store søylefrie areal for fleksibel arealløsning.
Tidligere leietakere har vært Posten og Frelsesarmeen.
Utleier legger gjerne til rette og tilpasser lokalene etter leietakers ønsker og behov.
Grunnpris for leie kr. 1500.- + mva pr. kvm. Kostnad for ønsket leietakertilpasning med % tillegg av investering jfr. leietid
Beliggenhet
Sentral beliggenhet på Kirkeby i Gjøvik, inntill RV33 og sentralt ved innlandets mest trafikkerte rundkjøring.
God parkering reservert for lokalene.
Adkomst
Matrikkelinformasjon
Visning
Nyttige lenker
MM Eiendom
Nærområdet
Annonseinformasjon
| FINN-kode | 379706823 |
|---|---|
| Sist endret | 04. nov. 2025 02:50 |
| Referanse | XJens Petter Markestad |
Annonsene kan være mangelfulle i forhold til lovpålagt opplysningsplikt. Før bindende avtale inngås oppfordres interessenter til å innhente komplett informasjon fra meglerforetaket, selger eller utleier.
































