Bildegalleri

Kontorarealene ligger meget flott til i 2. etasje i den ny rehabiliterte forretningseiendommen. (Illustrasjons bilde)
YRJARGÅRDEN: 250 kvm. kontorareal ledig i Brekstad sentrum
Nøkkelinfo
- Areal
- 250 m²
- Etasje
- 2.
- Renovert år
- 2018
- Overtakelse
- Etter avtale
Type lokale
Fasiliteter
Om eiendommen
Midt i sentrum av Brekstad ligger Yrjargården som i dag huser REMA og JYSK. Gjenstående ledig areal utgjør ca. 250 kvm. med kontorareal i byggets 2. etasje.
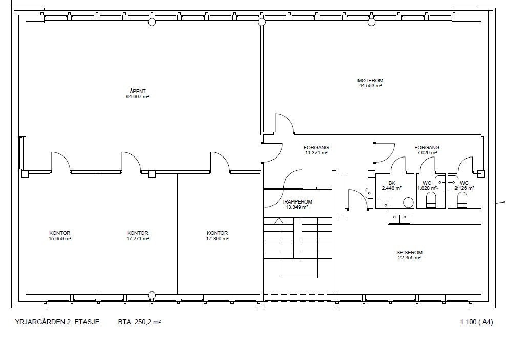
Tilpasninger av areal kan gjennomføres etter avtale med ny leietaker. Vedlagt følger planskisse som viser dagens planløsning, det er mulig og gjøre enkelte endringer på disse.
Arealene er per i dag løst med kontorer, kjøkken/spiserom og toaletter.
Ta kontakt med oss i dag, og vi vil gjøre vårt beste for å imøtekomme ønsket behov.
Ved interesse ta kontakt med Eiendomssjef Rune Søraker: rune@aha.no
Beliggenhet
Yrjargården ligger meget sentralt i Brekstad sentrum.
Ørland kommune skriver følgende:
Brekstad er tettstedet på Ørland med hovedadministrasjonen for Ørland kommune, og et kommunikasjonsknutepunkt for ytre Fosen. I sentrum på Brekstad ligger hovedvekten av butikker og servicekontorer. Her har vi to hoteller, flere spisesteder, et bredt utvalg av bransjer og butikker. På Brekstad er det også servicetilbud som NAV, Ørland medisinske senter, Fosen Distrikts medisinske Senter, tannleger, trygdeboliger, sykehjem, svømmehall, ny ungdomsskole, nytt ungdommens hus, nytt regionalt kultursenter og flere flotte barnehager.
Som innbygger i Ørland vil du møte oss i alle livets faser - fra helsestasjon via barnehage, skole, boligetablering og eldreomsorg.
Hovednæringer er forsvaret, offentlig og privat tjenesteyting, handel, primærnæringer og næringsmiddelindustri. Ørland har to store industriforetak; Grøntvedt Pelagic - Norges største sildeleverandør og Mascot Høie - produsent av dyner, puter og sengetøy.
Viktige attraksjoner for Ørland og Norges historie er blant annet Austråttborgen, festningsanlegget Austrått Fort og Fosen Krigshistoriske samlinger, samt museet Uthaugsgården. Ørland har også et 9-hulls golfanlegg, flotte turstier, tilrettelagte sykkelruter, og over hundre aktive lag og foreninger.
Det er gode kommunikasjonsforbindelser fra Ørland og reisetiden til Trondheim med bil/ferge er ca. 1 1/2 time, med hurtigbåt ca. 1 time, fly til Oslo ca. 1 time og fly til Aalborg i Danmark ca. 2 timer.
Adkomst
Til Ørland kommer man fra Trondheim via bil/ferge ca. 1 1/2 time. Eller via hurtigbåt ca. 1 time. Yrjars gate er hovedgate i Brekstad.
Matrikkelinformasjon
Visning

AHA Eiendom
Nærområdet
Annonsene kan være mangelfulle i forhold til lovpålagt opplysningsplikt. Før bindende avtale inngås oppfordres interessenter til å innhente komplett informasjon fra meglerforetaket, selger eller utleier.



