Bildegalleri

Opparbeidet og stort uteområde foran inngangspartiet
Moderne kontorlokaler i Stavangers innovasjonsdistrikt
Nøkkelinfo
- Areal
- 4 000 m²
- Byggeår
- 1986
- Renovert år
- 2013
Type lokale
Om eiendommen
Moderne kontorlokaler i Stavangers innovasjonsdistrikt
Professor Olav Hanssens vei 10 er et kraftsenter på Ullandhaug. Med 1050 kvm solceller på fasaden produserer bygget årlig rundt 340 000 kWh med grønn energi, som går rett tilbake i driften av eiendommen. En vinn-vinn-situasjon for både leietaker og miljøet.
I 2025 flytter en av våre leietakere ut. Det er alltid trist. På den andre siden betyr det at vi kan ønske velkommen til en ny leietaker, og det er vi glad for.
Sommeren 2025 får vi ca. 4000 kvm ledig i flotte, lyse og moderne kontorlokaler. Eiendommen ble tegnet av Link arkitektur og har en høy standard spekket med fellesfasiliteter.
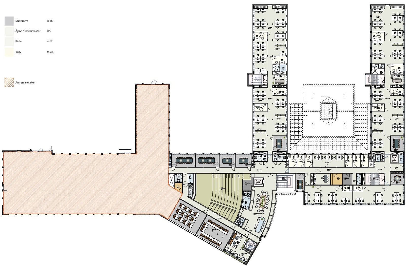
De ledige lokalene vil du finne i 3. og 4 etasje, med hhv. 1800 kvm 2200 kvm. Vi har laget et forslag til plantegning som du kan se i bildekarusellen eller ved å klikke “last ned” på høyre side.
To etasjer med trening
Eiendommen er proppfull av fellesfasiliteter som tilbys leietakere i bygget, som blant annet to etasjer med treningsfasiliteter med tilhørende garderobe og dusj, stor felles kantine med sitteplasser både inne og ute, møteromsenter med både auditorium for frokostmøter og allmøter, samt videokonferanserom.
God logistikk og parkering
Eiendommen har god tilknytning til offentlig kommunikasjon, med blant annet bussholdeplass rett utenfor inngangspartiet. I forbindelse med at nye Stavanger Sykehus åpner i 2025 vil det også åpne en ny busstrase rett forbi bygget med direktelinjer fra Stavanger sentrum. I tillegg er det god dekning for parkering til både bil og sykkel.
Fremtiden formes på Ullandhaug
Professor Olav Hanssens vei 10 har en svært attraktiv lokasjon rett utenfor Stavanger sentrum. Vis a vis eiendommen ligger Universitet i Stavanger, som flere av dagens leietakere samarbeider med. I samme området finnes Innovasjonspark Stavanger, samt en rekke andre teknologiske og innovative virksomheter. Tilstedeværelsen av denne type virksomheter, kombinert med plassering i Stavanger er nok også mye av grunnen til at nye Stavanger Universitetssykehus tar i mot sine første pasienter her i 2025.
Svært miljøvennlig bygg
Eiendommen er BREEAM In-Use Excellent og leverer en solid energiklasse B, mye takket være solcellene som årlig produserer over 300 000 kWh med grønn energi. Når eiendommen i tillegg ligger sentralt til utenfor Stavanger sentrum skal det være enkelt og greit å la bilen stå, og komme seg til jobb med enten kollektiv eller sykkel.
Kom og ta en titt
Vi vil anbefale alle som synes eiendommen virker interessant om å avtale en visning. Det er vanskelig å få et helhetsinntrykk kun ved en Finn-annonse, så våre meglere vil veldig gjerne ta deg med rundt på en befaring av lokalene og eiendommen.
Visning
Ta kontakt for å avtale visning.Nyttige lenker
Entra ASA
Nærområdet
Annonsene kan være mangelfulle i forhold til lovpålagt opplysningsplikt. Før bindende avtale inngås oppfordres interessenter til å innhente komplett informasjon fra meglerforetaket, selger eller utleier.














