Bildegalleri

Attraktivt og unikt - Rehabiliterte kontor- og lagerlokaler midt på Økern
Nøkkelinfo
- Areal
- 500 - 10 000 m²
- P-plasser
- 200
- Byggeår
- 1973
- Renovert år
- 2025
- Energimerking
- E
Type lokale
Fasiliteter
Attraktivt og unikt - Rehabiliterte kontor- og lagerlokaler midt på Økern
Rett ved Ring 3 og E6, ligger kombinasjonsbygget Økernveien 119. Bygget byr på svært god profilering og rikelig med parkeringsplasser. Nå skal byggets inngangsparti, kantine, treningsrom, garderober og fellesarealer oppgraderes. I tillegg er det rikelig med p-plasser, sykkelparkering og nærhet til t-bane.
Store etasjeflater med gjennomgående god takhøyde i alle etasjer bidrar til at Økernveien 119 kan anvendes som spennende kontorarealer eller lager/kombinasjonslokaler. To underetasjer med kjøreport og lasterampe med lagerarealer er tilgjengelig for nye leietakere.
Arealene kan leies som de er eller oppgraderes til normal god kontorstandard.
- Innflytting: Ledig nå
- Gårdeier: Nordea Liv Eiendom
Beliggenhet
Økernveien 119 har en strategisk, god beliggenhet, midt mellom T-banestasjonene på Økern og Hasle, med direkte tilkobling på Ring 3 og E6. Det betyr at du fra Økern har kort vei til alt. Dette er én av årsakene til at området i lang tid har vært en attraktiv destinasjon for aktører som er avhengig av å komme seg raskt rundt i Oslo.
Området har et rikt sammensatt næringsliv, og alt fra internasjonale rådgivermiljøer til storhandel-aktører, har valgt Økern som base for sine aktiviteter. Fra Økernveien 119 er det kort vei til Hasle Torg, Quality Hotel Hasle Linje, flere restauranter og dagligvarebutikker.
- Beliggenhet: Oslo, Randsone øst, Økern
- Parkering: Mange p-plasser på tomten
- Buss: 350 meter (Haslevangen)
- T-bane: 450 meter (Hasle T-banestasjon)
- Trening: På huset
- Treningssenter: Flere i nærheten, men nærmeste er 300 meter unna
- Dagligvarebutikk: 650 meter
Om eiendommen
Økernveien 119 eies av Nordea Liv Eiendom, én av landets største og mest seriøse gårdeiere. Selskapet har høye bærekraftambisjoner, og derfor gjennomgår bygget nå en bærekraftig og kostnadseffektiv oppgradering. Kombinasjonsbyggets 19.500 kvadratmeter får et løft, hvor inngangsparti og innvendige fellesarealer oppgraderes til dagens standard. En ny kantine etableres i byggets fjerde etasje, hvor leietakerne også har tilgang til en fin takterrasse. Byggets gode sentrumsnære beliggenhet, gjør det attraktivt i leiemarkedet. Bygget har fire kjøreporter og lokaler med god takhøyde. Dette gjør at deler av arealene også egner seg for lett produksjon og verksted. Arealene kan leies slik de er eller oppgraderes til normal standard.
Fasiliteter
Økernveien 119 er et praktisk bygg, hvor alt er tilrettelagt for en effektiv arbeidsdag. Om du jobber på, eller bare besøker bygget, parkerer du raskt og effektivt på den romslige parkeringsplassen. Lunsjen nytes i byggets nye kantine, hvor man også har direkte tilkomst til byggets takterrasse. Dagens treningsøkt, kan du legge til det felles treningsrommet, hvor det også er gode garderobefasiliteter med dusj. I hver etasje/lokale er det gode møterom. Noen av lokalene er også utstyrt med egne kjøkken, perfekt dersom det blir noen lange dager på kontoret.
- Garderober
- Trening
- Møteromssenter
- Kaffebar
- Sykkelparkering
- Sykkelservice
- Balkong/terrasse
Bærekraft og miljø
Bærekraft står høyt på dagsorden. I forbindelse med oppgraderingen av eksisterende bygg, er det derfor høyt bevissthet rundt det å ta bærekraftige, varige valg som både forlenger og forbedrer byggets levetid og kvaliteter.
Gårdeier
Nordea Liv Eiendom
Nordea Liv Eiendom er blant landets mest seriøse gårdeiere. Eiendomsporteføljen er en sentral del i Nordea Livs fondsportefølje og bidrar til å sikre pensjonen til en lang rekke privatpersoner og selskaper. Derfor er selskapet opptatt av å ta vare på egne eiendommer og de jobber kontinuerlig med videreutvikling og forbedringer. For deg som leietaker, betyr det at du får en solid og seriøs gårdeier med langsiktig tilnærming til eiendomsdrift.
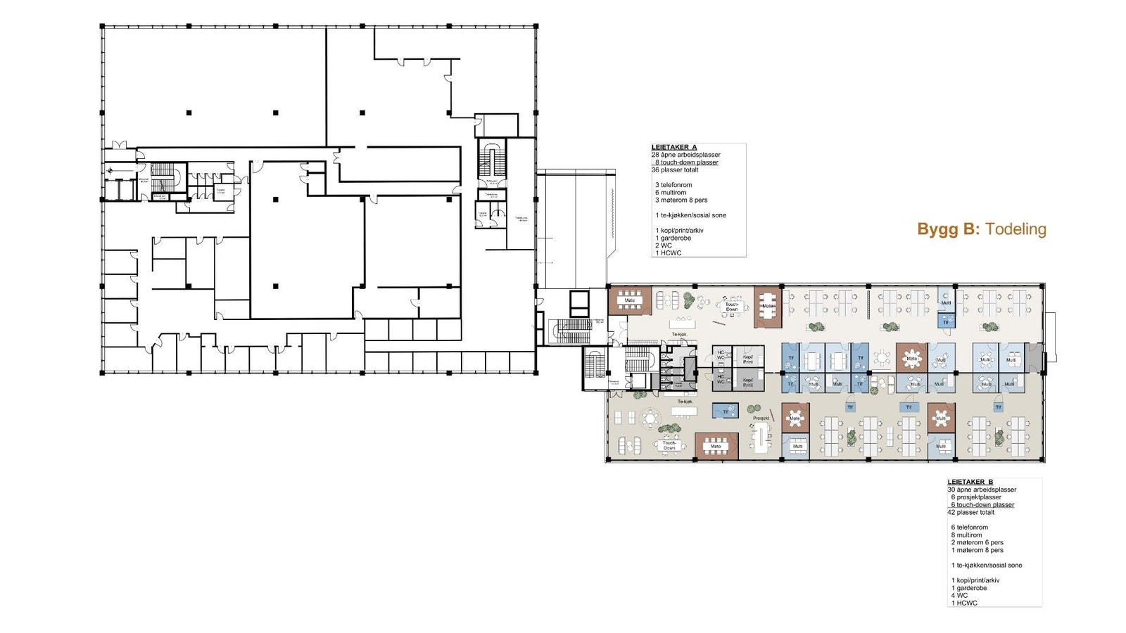
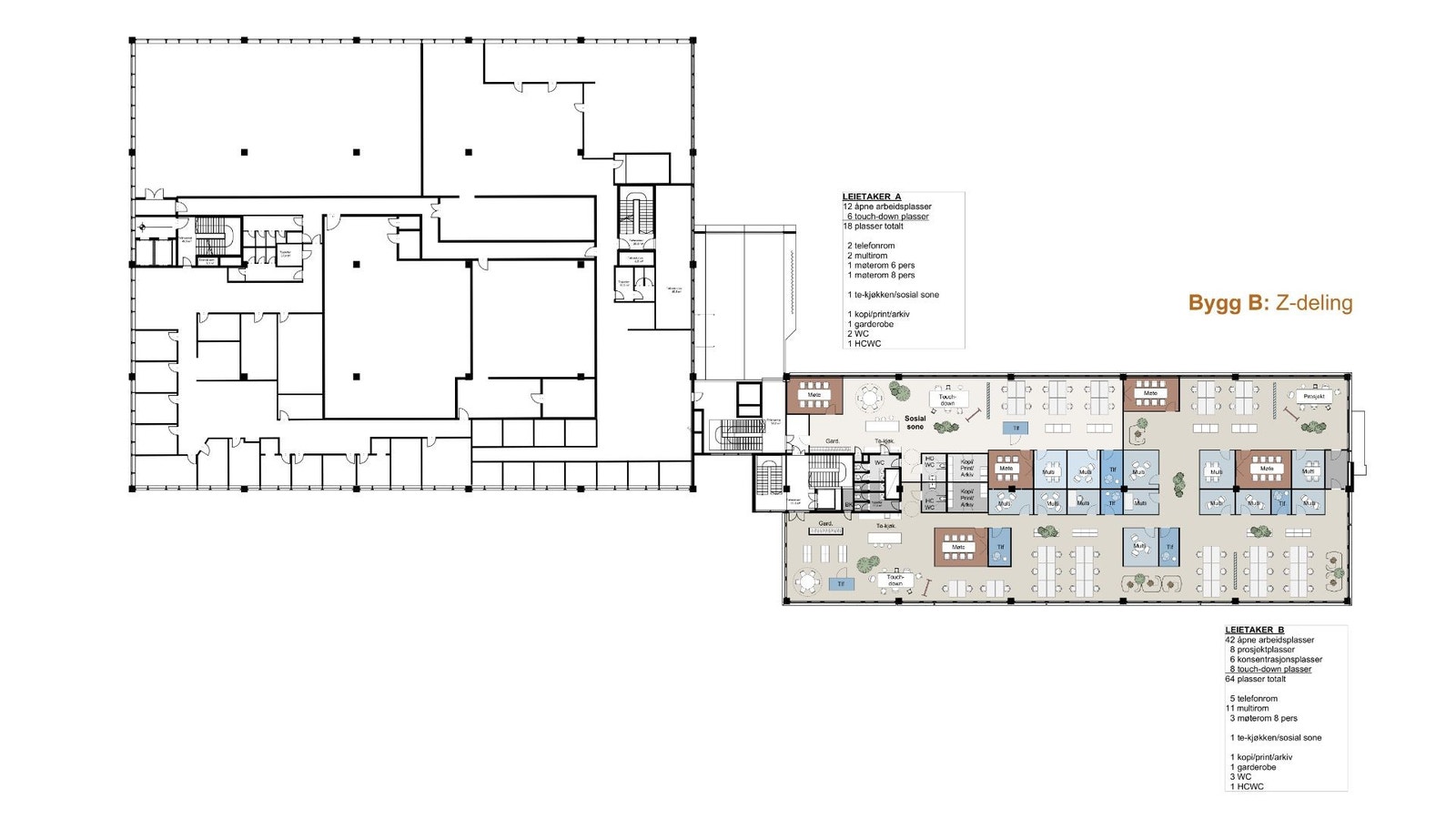
Plantegninger
Arealer
Av et samlet areal på 19.500 kvadratmeter, vil totalt 10.000 kvadratmeter bli tilgjengelig i markedet.
Visning
Ta kontakt for å avtale visning.Nyttige lenker
Malling & Co Næringsmegling AS
Nærområdet
Annonseinformasjon
| FINN-kode | 359619772 |
|---|---|
| Sist endret | 24. des. 2025 02:50 |
| Referanse | 665083e56c072ec188e8681f |
Annonsene kan være mangelfulle i forhold til lovpålagt opplysningsplikt. Før bindende avtale inngås oppfordres interessenter til å innhente komplett informasjon fra meglerforetaket, selger eller utleier.













