Bildegalleri

2 kjøreporter og flott beliggenhet på privat kai
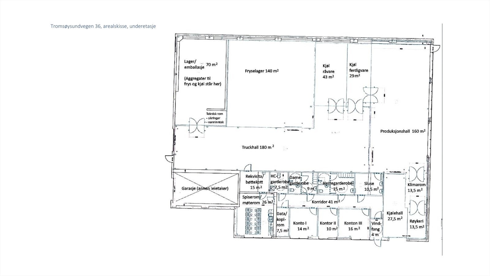
Flotte og store produksjonslokaler med kjølerom, fryserom, kontorer, lager og kjøreport.
Nøkkelinfo
- Areal
- 221 - 1 061 m²
- Bruttoareal
- 966 m²
- Tomt
- Eiet
Type lokale
Fasiliteter
Arealspesifikasjon
1. etg: 221 kvm Lager med port
1. etg: 840 kvm Lager/produksjon/kjøl og frys
Kort om eiendommen
Eiendommen ligger på nedsiden av E8 langs Tromsøysundvegen, med flotte moderne lokaler nede ved havet.
Standard
Produksjonslokalene holder fin og moderne standard og har nylig vært i bruk, de er ledige og innflyttingsklare. Kaldlager med vegger og tak i støpt betong i bakkant kan leies i tillegg.
Beliggenhet
Meget flott beliggenhet langs E8 under Tromsøysundbrua.
Adkomst
Adkomst direkte fra E8
Parkering
Parkering på egen tomt etter avtale.
Offentlig kommunikasjon
Busstopp nedenfor Ishavskatedralen og borte ved Otium.
Innhold
Moderne produksjonslokaler med stort fryselager på 140kvm, kjølerom på 29kvm og 43kvm samt kjølehall på 27,5kvm og med stor produksjonshall og kjøreporter i begge ender av bygget. Tilhørende kontorer, møterom, garderober og toaletter. Kaldlager på ca 200kvm med manuell kjøre port kan leies i tillegg.
Bebyggelse
Moderne produksjonslokaler med stort fryselager på 140kvm, kjølerom på 29kvm og 43kvm med stor produksjonshall og kjøreporter i begge ender av bygget. Tilhørende kontorer, møterom, garderober og toaletter. I tillegg finnes kaldlager samt flere kontorer i 2 etasje på nabobygget.
Matrikkelinformasjon
Visning
Ta kontakt for å avtale visning.Tiger næringsmegling
Kevin Mortensen
Knut Berg Jenssen
Nærområdet
Annonseinformasjon
| FINN-kode | 359607276 |
|---|---|
| Sist endret | 25. okt. 2025 01:50 |
| Referanse | TIG2.2449 |
Annonsene kan være mangelfulle i forhold til lovpålagt opplysningsplikt. Før bindende avtale inngås oppfordres interessenter til å innhente komplett informasjon fra meglerforetaket, selger eller utleier.


































