Bildegalleri

Løren Torg - et senter i vekst
Løren Torg – lokaler til leie i et veldig attraktivt område
Nøkkelinfo
- Areal
- 430 m²
- Etasje
- 1.
Type lokale
Løren Torg – lokaler til leie i et veldig attraktivt område
Lokalet er tidligere benyttet til matproduksjon og kafé. Utleier vil kunne tilpasse lokalene til ny leietager etter nærmere avtale. Lokalene kan benyttes til matproduksjon, butikk, kontor, lager med mer. Lokalene er ledige omgående.
Løren Torg ligger i sentrum av Løren og har tilbud som blant annet inkluderer; dagligvare (Meny), apotek, bokhandel, optiker, frisør, hudpleiesenter og ulike matopplevelser.
- Innflytting: Etter avtale
- Gårdeier: Selvaag Eiendom
Beliggenhet
Løren er en raskt voksende bydel som ligger på høyden av Oslo, med kort avstand til sentrum. Med egen T-banestasjon, grønne lunger og et rikt service- og kulturtilbud er Løren en av Oslos mest up-and-coming bydeler.
Fra Løren går det T-baner hyppig både ned mot sentrum og opp mot marka. Det er gangavstand til Økern og Hasle T-bane og flere bussholdeplasser som gjør det lettvint å komme seg til og fra. Flybussen går også fra Løren og bruker ca. 1 time til Gardermoen.
- Beliggenhet: Løren , Oslo Øst
- T-bane: 3 min
- Buss: 6 min
- Flybuss: 6 min
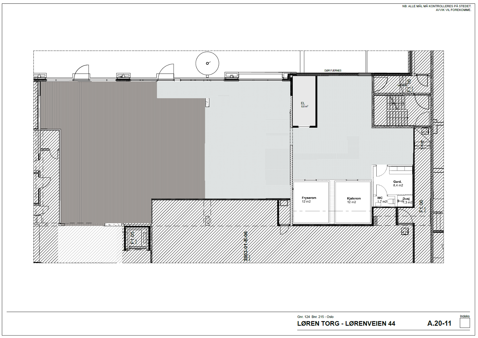
Plantegninger
Plantegning 1. Etasje
Visning
Ta kontakt for å avtale visning.Nyttige lenker
Malling & Co Næringsmegling AS
Nærområdet
Annonsene kan være mangelfulle i forhold til lovpålagt opplysningsplikt. Før bindende avtale inngås oppfordres interessenter til å innhente komplett informasjon fra meglerforetaket, selger eller utleier.















