Bildegalleri

Midt i Oslo – totalrenovert kontorbygg med egen T-banestasjon og takterrasse
Nøkkelinfo
- Areal
- 2 000 - 11 000 m²
- Etasje
- 7.
- Byggeår
- 1891
- Renovert år
- 2025
- Energimerking
- B - Mørkegrønn
Type lokale
Fasiliteter
I Grensen 17–19 får du totalrehabiliterte kontorlokaler med egen T-banestasjon i underetasjen og ikke minst en supersentral beliggenhet, midt i Oslo sentrum.
Moderne kontorbygg med knutepunkt i underetasjen
En omfattende totalrehabilitering gjør Grensen 17–19 til et av Oslos mest moderne kontorbygg, men det som virkelig skiller eiendommen fra andre, er T-banestasjon i underetasjen. Moderne kvaliteter, svært sentral beliggenhet og den direkte tilknytningen til Stortinget T-banestasjon, gjør Grensen 17–19 til et svært spennende alternativ for alle som er på jakt etter kontorlokaler midt i Oslo sentrum.
Moderne kontorer
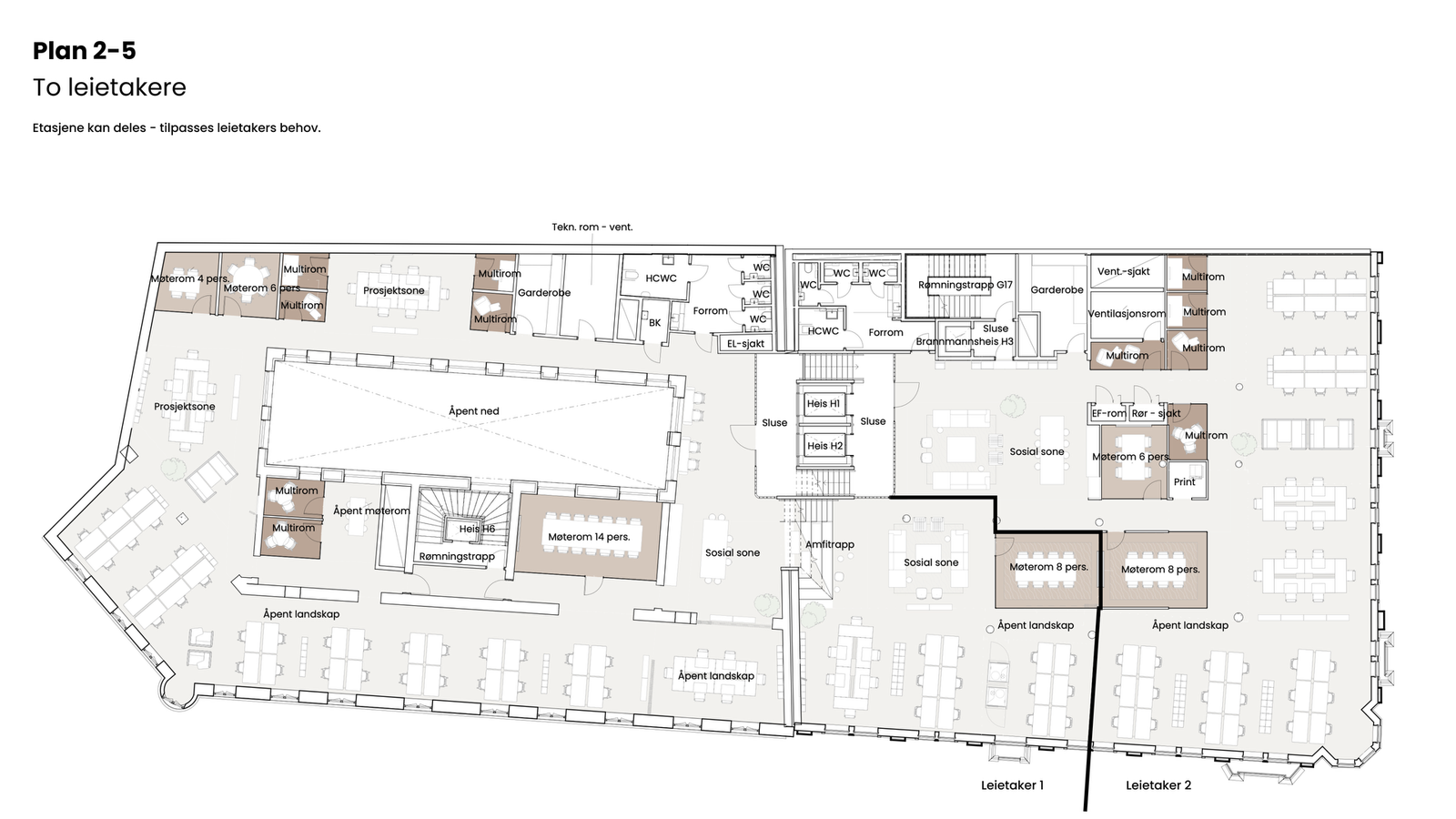
Grensen 17–19 er et totalrenovert fullservicebygg som byr på lyse og moderne kontorlokaler, rett ved Karl Johans gate, midt mellom det nye Regjeringskvartalet og Stortinget. Arealeffektive etasjeplan på cirka 2.000 kvadratmeter gjør eiendommen svært godt egnet for leietakere med behov for 100 arbeidsplasser eller mer. Lokalene vil være klare for innflytting i første kvartal 2027.
En av Oslos beste beliggenheter
I Grensen er dere ganske enkelt midt i Oslo sentrum og har både Karl Johans gate, Stortinget og Jernbanetorget som nærmeste naboer. Med byggingen av det nye Regjeringskvartalet seiler dette opp som en av Oslos mest attraktive kontordestinasjoner. Her ligger det restauranter, handel- og kulturopplevelser på hvert eneste gatehjørne, rett utenfor døren. Er du på farten, tar T-banen i underetasjen deg tørrskodd til både London, Lysaker og Larvik.
Hvor mange kontorbygg kan egentlig skilte med en egen T-banestasjon i underetasjen?
Megler, Håkon Tanberg
Fullservice – spekket med fellesfasiliteter
Grensen 17–19 er et moderne fullservicebygg hvor eiendommen fellesfunksjoner gir deg alt du trenger i hverdagen. En fantastisk personalrestaurant, samt et levende bygulv med flere handels- og bespisningsalternativer, gjør arbeidshverdagen variert og spennende. Et godt utrustet treningsrom og en takterrasse med en nydelig utsikt over sentrum. Dette er bare noe av det byggets leietakere kan glede seg til.
En opplevelse i hverdagen – levert av Fursetgruppen
I Grensen 17–19 er Fursetgruppen engasjert for å drive bedriftsrestauranten, og bringe restaurantopplevelsen inn i arbeidsdagen. Med åpne kjøkken, kokker i front og menyer laget fra bunnen med sesongens beste råvarer, serverer de mat med kvalitet, stolthet og kjærlighet.
Her handler det ikke bare om lunsj – men om mat som samler, inspirerer og gir energi.
Fursetgruppen tilbyr
- kaffebar
- smakfulle frokoster og varierte lunsjer
- møtemat
- fleksible overtidsløsninger
og mye mer - tilpasset en moderne arbeidsdag.
Vi garanterer mennesker – i massevis
Byggets bygulv fornyes og fylles med liv. Her kommer det både butikker og bespisning, noe som bidrar positivt og gir bygget puls. Arealene er i ferd med å fylles opp, men det er fortsatt muligheter for interesserte retailaktører.
- Gårdeier: Canica Eiendom AS
- Kontorplasser: 600
- Innflytting: Q1 2027
- Miljøsertifisert: Energiklasse B - BREEAM Very Good
Beliggenhet
Det er store ord, men svært få eiendommer kan konkurrere med Grensen 17–19 når det gjelder beliggenhet. Ikke bare ligger eiendommen midt i sentrum, med alt det innebærer av urbane fasiliteter, den har også en egen T-banestasjon i underetasjen. Stortinget T-banestasjon ligger nemlig under bygget, noe som betyr at det fra eiendommens kontorarealer, er direkte adkomst til T-banen.
Som om ikke det var nok, rett utenfor går trikken. Alt ligger med andre ord til rette for en enkel og effektiv hverdag for byggets kontorbrukere, samtidig som Grensens solide footfall gir et svært godt kundegrunnlag for retail- og servicekonseptene på gateplan.
Nærområdet
Grensen og de omkringliggende områdene er inne i en svært spennende fase. Nærmest vegg i vegg med Grensen 17–19, er det nye Regjeringskvartalet i ferd med å reise seg. Akersgata og deler av Grensen skal i forbindelse med byggingen av Regjeringskvartalet gjøres om til et bilfritt gatetun, noe som vil åpne opp området og gjøre det til et attraktivt og pulserende byrom, fullt av folk. Et betydelig kundegrunnlag vil med det nye gatetunet, som skal stå ferdig allerede til våren/sommeren 2025, bli enda bedre. I tillegg gjennomgår flere av nabobyggene betydelige oppgraderinger, blant annet vil det gamle Deichmanske bibliotek forvandles til en ny kulturperle i nærområdet, noe som innebærer at hele området nå får et løft.
Den sentrale beliggenheten og de oppgraderingene som nå gjøres, setter for alvor Grensen på kartet som en attraktiv destinasjon både på kontor-, handel og servering.
- Beliggenhet: Oslo, Indre sentrum, Oslo Sentrum
- Stortinget T-bane: 0 min gange
- Trikk: 1 min gange
- Buss: 1 min gange
- Oslo S: 7 min gange
- Nationaltheatret: 7 min gange
- Flytoget: 7 min gange
- Parkering: 1 min gange/flere i umiddelbar nærhet
Fasiliteter
I eiendommens første etasje, bygges bygulvet opp på nytt med både handel og bespisning, mens det oppover i etasjene kommer åpne og moderne kontorer. Grensen 17–19 byr på lokaler for leietakere som ønsker kvalitet og særpreg kombinert med god tilgjengelighet og en sentral beliggenhet.
- Sykkelparkering
- Balkong/terrasse
- Trening
- Kaffebar
- Garderober
- Møteromssenter
- Serviceapp
- Sykkelservice
Bærekraft
For prosjektet er bærekraft viktig. Vi stiller krav til godt inneklima, optimale lysforhold og tiltak som skaper et grunnlag for identitet, trivsel og helse. Byggene skal miljøsertifiseres, og man sikter inn på minimum Breeam NOR Very Good eller bedre. Våre mål er å ta miljøriktige beslutninger i valg av løsninger og materialbruk.
Om gårdeier
Canica Eiendom AS har lang erfaring med utvikling og drift og utvikling av næringseiendom. Selskapets portefølje på vel 200.000 kvadratmeter og består av moderne kontorer, handel- og retaileiendommer, lagerbygg og historiske bygårder, hovedsakelig beliggende i Oslo.
Selskapet har en langsiktig tilnærming til sine investeringer, noe som innebærer at de legger både tid og ressurser i oppgraderinger av porteføljen. Bærekraft i fokus og varige kvaliteter kjennetegner alle valg og oppgraderinger som tas.
Arealer
Da Grensen 17 og 19 ble reist på slutten av 1800-tallet, var det som to prakteksemplarer av sin tid. Mens Grensen 17 hele tiden har vært en attraktiv handels- og kontorgård, har det samtidig vært hotelldrift i Grensen 19. I godt over hundre år, har de to eiendommene levd side ved side – hånd i hånd. Nå skal de to endelig smeltes sammen og tilbakeføres til gammel storhetstid.
Sammen skal de to eiendommene bli til et moderne kontorbygg på cirka 13.000 kvadratmeter, hvor en typisk kontoretasje ligger på 1.700 kvadratmeter. Totalt ca. 600 kontorarbeidsplasser. De arkitektoniske kvalitetene skal pusses støvet av, og byggene skal nå få den kjærligheten de fortjener. Den karakteristiske og storslåtte fasaden bevares og legger tydelige føringer for de innvendige oppgraderingene. Bak fasaden blir så mye som mulig tatt vare på, men i praksis vil både kontor- og handelsarealer fremstå som nye. Det legges vekt på gode, varige og miljøriktige kvaliteter, både når det gjelder materialvalg og teknologisk utrustning.
Visning
Ta kontakt for å avtale visning.Nyttige lenker
Malling & Co Næringsmegling AS
Nærområdet
Annonseinformasjon
| FINN-kode | 351386205 |
|---|---|
| Sist endret | 21. des. 2025 22:36 |
| Referanse | 65f2aa72e74ebd360df1f34e |
Annonsene kan være mangelfulle i forhold til lovpålagt opplysningsplikt. Før bindende avtale inngås oppfordres interessenter til å innhente komplett informasjon fra meglerforetaket, selger eller utleier.































