Bildegalleri

Velkommen til Storgata 38
Nøkkelinfo
- Areal
- 500 - 3 000 m²
- Byggeår
- 1940
- Renovert år
- 2024
- Energimerking
- B
Type lokale
Fasiliteter
Velkommen til Storgata 38
Bli med på forandringen, flytt inn i nye kontorlokaler høsten 2025
Bli med på forandringen, flytt inn i nye kontorlokaler høsten 2025
Beliggenhet
Eiendommen ligger tett på alt det beste Oslo kan tilby av opplevelser og man vil aldri gå tom for aktiviteter å gjøre. Butikker, restauranter, kafeer og kino ligger i umiddelbar nærhet. Eiendommen ligger i nær tilknytning til kjernen av kollektivtrafikken og med kort avstand til alt gjør det Storgata 38 til en av Oslos mest sentrale arbeidsplasser.
Et sted under utvikling
Området rundt Akerselva er under fornyelse, noe som vil forandre gatene for all fremtid og skape et sentrum som tiltrekker seg flere bedrifter og opplevelsessteder. Flere har valgt å ha sine kontorer her, blant annet Dagens Næringsliv, Move AS, som tilbyr IT-tjenester for hele Norge, samt advokatkontorer, mediebedrifter og det populære, kreative studiestedet Høyskolen Kristiania.
Her skapes et nytt byrom som skal være fremtidsrettet og tilgjengelig for alle. Dette har også de store hotellkjedene sett for lenge siden, og har dermed plassert seg i området. Blant annet Norges største hotell Clarion Hotel The Hub, Plaza Hotell og det unike boutiquehotellet Amerikalinjen. Prosjekter som Lilletorget, Stenersgata 1-3 og renoveringen av Oslo Spektrum og Gunerius er noen av fremtidsplanene som vil få området til å skinne i årene som kommer.
God kollektivdekning
Å komme seg til og fra jobb skal være effektivt og enkelt. Rett utenfor inngangsdøra til Storgata 38 er det både trikk- og busstopp. Nærmeste T-bane er bare syv minutters gange unna, og går du et par minutter til, er du på Jernbanetorget og Oslo S. Derfra tar det bare 19 minutter med Flytoget til Gardermoen. Storgata 38 er med andre ord en av Oslos mest praktiske arbeidsplasser for å komme seg raskt fra A til B.
- Trikk 1 min
- Buss 1 min
- T-bane 7 min
- Tog 10 min
- Flytog 10 min
Om eiendommen
Storgata 38 stod ferdig i 1940 i hjertet av hovedstaden. Gårdeier har nå satt i gang en omfattende rehabiliteringsprosess som vil gjøre bygget til et attraktivt kontorbygg.
Etasjene i det ni etasjers høye bygget blir rensket til innerskallet, for så å bli bygget opp igjen med nybyggstandard. Tekniske anlegg blir oppgradert for å sørge for godt inneklima for byggets brukere, men også for å redusere energibruken til et minimum.
Byggets fasade skal i all hovedsak tas vare på, men enkelte detaljer blir oppgradert. Blant annet skal byggets første etasje åpnes opp for publikum.
Bygget er et klassisk eksempel på den funksjonalistiske arkitekturen som preget perioden fra 1920- til 1950-tallet og er oppført på Byantikvarens Gule liste med vernestatus. Dermed er det et stort fokus under renoveringen på bevaring av byggets sjarme, samtidig som man oppgrader kvalitet og atmosfære.
Kontorarealene
Hvert etasjeplan er på cirka 1 500 kvadratmeter, og avhengig av utforming kan etasjene romme fra 70 til 120 arbeidsplasser. Dette gir stor fleksibilitet og mange muligheter for interesserte leietakere. Det legges i utgangspunktet opp til åpent landskap, men dette blir selvsagt tilpasset og skreddersydd de enkelte leietakeres behov.
I hvert etasjeplan legges det opp til en balanse mellom åpent landskap, sosiale soner, stille soner og møterom. Byggets unike kvaliteter tas vare på, samtidig som kvalitetene oppgraderes for å tilfredsstille kravene til moderne leietakere.
Eier
Storgata 38 eies av Blå Kors Norge, den største ideell organisasjon som jobber med rusforebyggende arbeid i Norge. Eiendommen i Storgata 38 spiller en avgjørende rolle for deres arbeid, da det blant annet er overskuddet fra driften av bygget som finansierer deler av deres aktiviteter. Blå Kors jobber med forebyggende tiltak, spesielt rettet mot barn og unge.
Blå Kors er en ideell organisasjon som eier og driver 54 virksomheter fordelt over store deler av Norge. Organisasjonen har nærmere 1700 dyktige medarbeidere, 1500 engasjerte frivillige tidgivere og 2400 aktive medlemmer.
- Innflytting: Q2-2026
- Kontorplasser: 70–120
- Gårdeier: Blå Kors
- Miljøsertifisert: BREEAM-NOR Very Good
Beliggenhet
Eiendommen ligger tett på alt det beste Oslo kan tilby av opplevelser, og man vil aldri gå tom for aktiviteter å gjøre. Alt fra butikker, restauranter, konserter og kafeer. Kjente møteplasser som Kulturhuset, Youngskvartalet, Østbanehallen og Byporten er i kort avstand, samt Folketeatret, Munchmuseet og Den Norske Opera.
Vega Scene er i kort avstand fra arbeidsplassen, som tilbyr kino og forestillinger i et hyggelig og inspirerende miljø. Fra Storgata 38 er det også få minutters gange til Deichmanske bibliotek med hyppige arrangementer. Flotte restauranter som Dattera til Hagen, Fiskeriet, HIMKOK, Tavernaen og Cafe Sør er også en kort gåtur unna.
Med Youngstorget rundt nærmeste hjørne finnes Oslo Street Food, konsertarenaer og populære restauranter og utesteder. En kort gåtur fører til Oslo City, et av Norges største kjøpesentre med butikker som forenkler en effektiv arbeidsflyt hvis man skulle trenge utstyr til arbeidsdagen. Grünerløkka tilbyr en rekke kafeer, barer, markeder og unike butikker som ikke finnes andre steder i byen.
Den umiddelbare nærheten til byens opplevelser og bespisning, midt i kjernen av kollektivtrafikken og kort avstand til alt, gjør Storgata 38 til et av Oslos mest sentrale arbeidsplasser. Likevel er bygget tilrettelagt for å beholde en helt egen arbeidsro innenfor eiendommens vegger.
Det beste av to verdener; en arbeidsplass for fokuserte arbeidsdager, med kort vei til sosialt liv og spennende opplevelser.
- Beliggenhet: Oslo, Indre sentrum øst, Oslo Sentrum
Fasiliteter
Gode fellesfasiliteter er avgjørende for en effektiv arbeidsdag, og i Storgata 38 finnes alle de fellesfasilitetene leietakere forventer å finne i et moderne bygg. Gode møteromsfasiliteter for møterom og private samtaler, sosiale soner for de uformelle kaffepratene, samt sykkelparkering med vaskestasjon, garderober og trimrom.
Mange arbeidsplasser opplever i dag at hjemmekontoret blir mer attraktivt, og det er viktig å tilby de ansatte kontorlokaler som tilbyr mer enn hva hjemmekontoret kan. I tillegg til det sosiale aspektet i et kontorbygg, har Storgata 38 fasilitetene som skaper kontoret hvor de ansatte vil trives, uke ette ruke. Alt utformes med samme mål, å gjøre arbeidshverdagen så hyggelig og effektiv som mulig. Tar vi med det enorme utvalget av fellesfasiliteter som finnes rett utenfor byggets vegger, er det få som kan konkurrere med Storgata 38.
- Sykkelparkering
- Garderober
- Trening
- Balkong/terrasse
- Kaffebar
- Møteromssenter
- Serviceapp
Bærekraft og miljø
Arbeidet med rehabiliteringen vil gjennomføres med strenge bærekraftmål, og mye av byggets eksisterende materialer vil bli gjenbrukt. Dette gjøres for å unngå unødvendig avfall, for å sørge for en grønn og miljøvennlig renoveringsprosess, og for å videreføre byggets materialer til fremtidig bruk.
Nye teknisk anlegg vil gi effektiv styring av bygget, noe som også reduserer energibruken til et minimum. Bygget har som ambisjon å sertifiseres til BREEAM-NOR Very Good. Et BREEAM-NOR-sertifikat betyr dokumentert kvalitet, og setter brukerens helse og trivsel i sentrum.
Gårdeier
Blå Kors Norge
Storgata 38 eies av Blå Kors Norge, den største ideell organisasjon som jobber med rusforebyggende arbeid i Norge. Eiendommen i Storgata 38 spiller en avgjørende rolle for deres arbeid, da det blant annet er overskuddet fra driften av bygget som finansierer deler av deres aktiviteter. Blå Kors jobber med forebyggende tiltak, spesielt rettet mot barn og unge.
Blå Kors er en ideell organisasjon som eier og driver 54 virksomheter fordelt over store deler av Norge. Organisasjonen har nærmere 1700 dyktige medarbeidere, 1500 engasjerte frivillige tidgivere og 2400 aktive medlemmer.
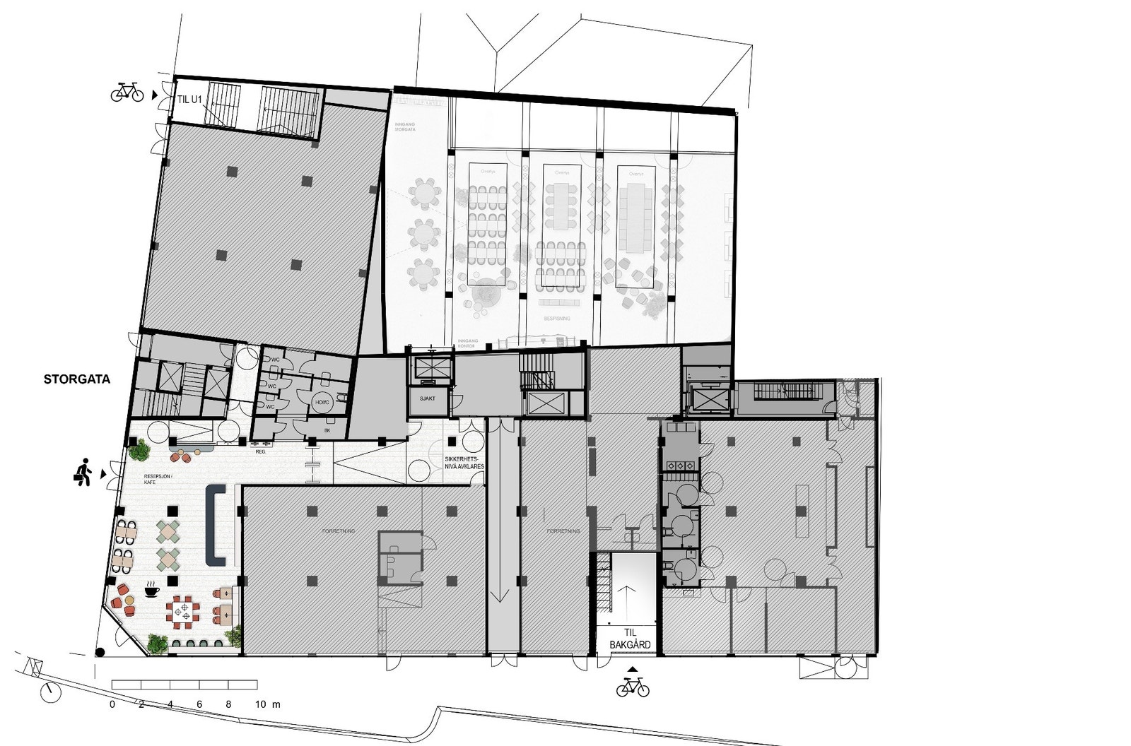
Plantegninger
Hvert etasjeplan er på cirka 1 500 kvadratmeter, og avhengig av utforming kan etasjene romme fra 70 til 120 arbeidsplasser. Dette gir stor fleksibilitet og mange muligheter for interesserte leietakere. Det legges i utgangspunktet opp til åpent landskap, men dette blir selvsagt tilpasset og skreddersydd de enkelte leietakeres behov.
I hvert etasjeplan legges det opp til en balanse mellom åpent landskap, sosiale soner, stille soner og møterom. Byggets unike kvaliteter tas vare på, samtidig som kvalitetene oppgraderes for å tilfredsstille kravene til moderne leietakere.
Visning
Ta kontakt for å avtale visning.Malling & Co Næringsmegling AS
Nærområdet
Annonseinformasjon
| FINN-kode | 349120529 |
|---|---|
| Sist endret | 17. des. 2025 15:35 |
| Referanse | 63bc0dc9d7805e12cec3a42d |
Annonsene kan være mangelfulle i forhold til lovpålagt opplysningsplikt. Før bindende avtale inngås oppfordres interessenter til å innhente komplett informasjon fra meglerforetaket, selger eller utleier.
























