Bildegalleri

Bilde tatt november 2024. Snart ferdigstilt
Snart ferdigstilt! Næringsbygg med unik profilering mot E6
Nøkkelinfo
- Areal
- 500 - 4 290 m²
- Byggeår
- 2025
Type lokale
Fasiliteter
Snart ferdigstilt! Næringsbygg med unik profilering mot E6
På det som kanskje er den mest profilerte tomten langs E6 mellom Oslo og Gardermoen bygges det nå et nybygg på ca 4 500 kvm, samt at eksisterende bygg på 1 790 ledigstilles. Her planlegges det lokaler for bilrelatert virksomhet eller lager/kombinasjonsvirksomheter som ønsker førsteklasses synlighet, eksponering og parkering.
Deler av arealet er nå utleid, og i nybygget har vi tilgjengelig ca 2500 kvm, fordelt på 2000 kvm på nedre plan og 500 kvm i 1. etasje. Begge har direkte innkjøring fra bakkeplan, og enorm profilering mot E6. I eksisterende bygg er hele arealet tilgjengelig, fordelt på 3 etasjer på ca 550 kvm.
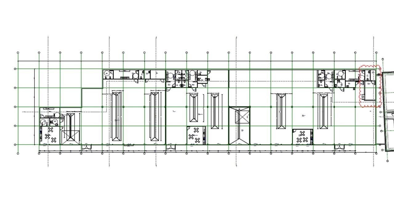
Se vedlagte skisser i PDF for utkast til plantegninger, men dette tegnes inn i samarbeid med leietaker. I øvre plan planlegges kontorlokaler (om ønskelig tilhørende butikklokale i etasjen under) med flott utsikt.
Det vil være parkeringsplasser ut mot E6 samt mot Trondheimsveien, og mulighet for kunder å hente varer rett utenfor inngangsdøren. Lokalene vil tilpasses leietakers behov og ønsker. Ta kontakt for mer informasjon om prosjektet!
- Innflytting: 2025
- Gårdeier: Star Autoco Eiendom Skedsmo
Beliggenhet
Eiendommen ligger helt ut mot E6 ved Skedsmokorset, vis-a-vis Coop Extra. Det er innkjøring fra motorveikrysset på Skedsmokorset eller fra Hvam-krysset. Strategisk beliggenhet mellom Oslo og Gardermoen, og kort reisevei til Oslo nord og resten av Romerike.
- Beliggenhet: Viken, Lillestrøm
Fasiliteter
Nybygget bygges etter gjeldende tekniske forskrifter, og for øvrig kan lokalene tilpasses etter leietakers ønsker. Ta gjerne kontakt for nærmere informasjon om dette.
Plantegninger
Visning
Ta kontakt for å avtale visning.Nyttige lenker
Malling & Co Næringsmegling AS
Nærområdet
Annonseinformasjon
| FINN-kode | 349008989 |
|---|---|
| Sist endret | 09. okt. 2025 01:50 |
| Referanse | 655d41d14c01fa947327417e |
Annonsene kan være mangelfulle i forhold til lovpålagt opplysningsplikt. Før bindende avtale inngås oppfordres interessenter til å innhente komplett informasjon fra meglerforetaket, selger eller utleier.











