Bildegalleri

Nybygg til leie på Sveberg - like ved E6
Nøkkelinfo
- Areal
- 600 - 1 000 m²
Type lokale
Nybygg til leie på Sveberg - like ved E6
Nå er det en spennende mulighet til å etablere seg i det voksende næringsområdet på Sveberg, hvor du kan tilpasse ditt eget næringsbygg etter dine behov!
Interessen for å etablere seg i dette området er betydelig, med flere store selskaper allerede etablert i nærheten.
Med en praktisk beliggenhet langs E6, mellom Stjørdal og Trondheim, og med en ny firefelts motorvei som vil være klar i 2027, er denne tomten ikke bare lett tilgjengelig, men også strategisk plassert for fremtiden.
Dette området er velegnet for både plasskrevende handelsvirksomhet og produksjon.
Areal:
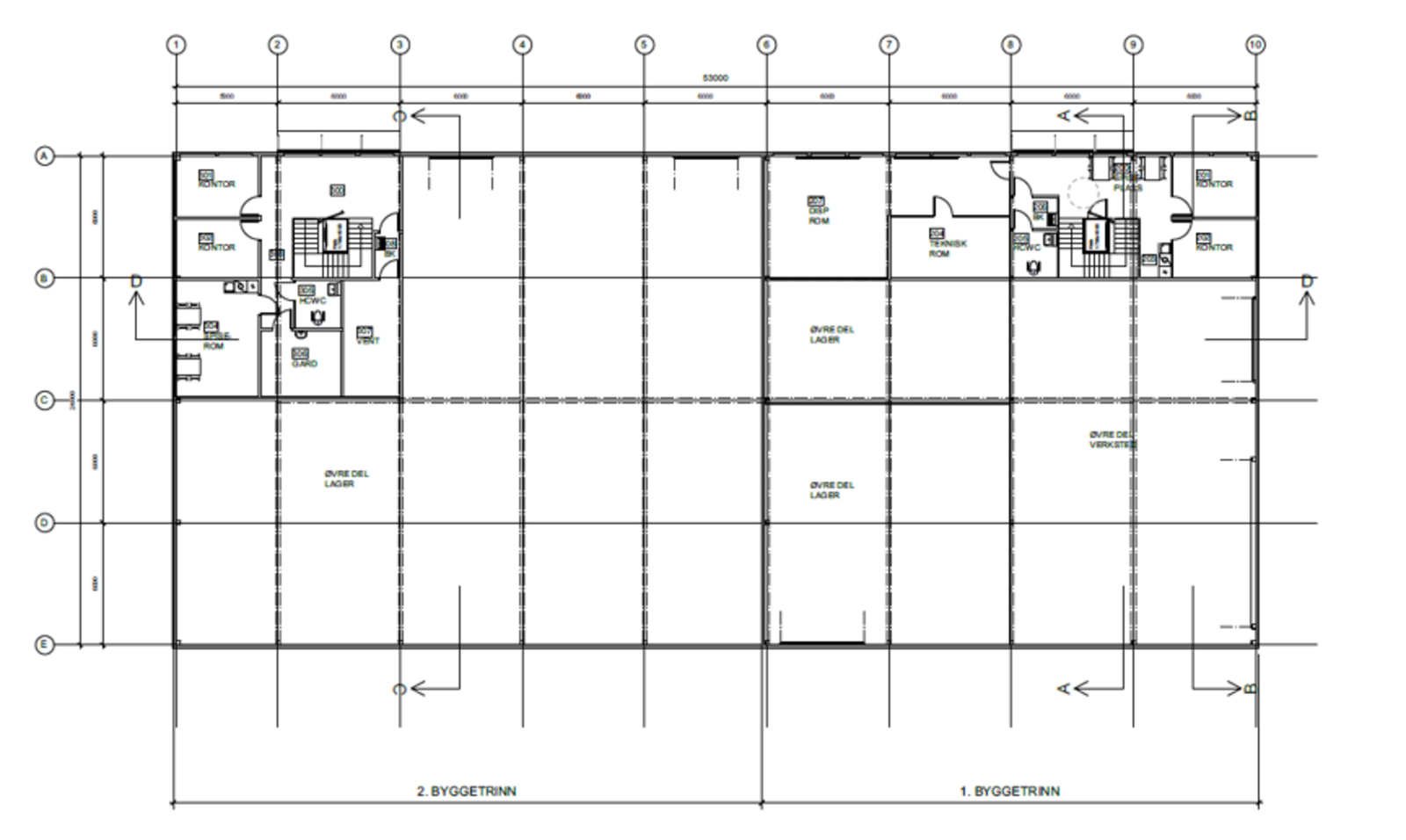
Tomten er på totalt 5.479 m2, og tilgjengelig arealer for leie er rundt 800 m2 BTA i tillegg til utearealer.
Endelig utforming av arealene og total BTA vil være avhengig av leietakers ønsker og avklaring med utleier. Det er i forslaget tegnet ut et areal med grunnflate på 695 m2 BTA med 2.etg på 132 m2 BTA. Totalt 827 m2 BTA.
Byggetrinn 1 i prosjektet på Sveberg skal benyttes av CTV Container som er et heleid datterselskap av utleier
Bærekraft:
Utleier vil legge til rette for bygg som hensyntar både leietakers og utleiers krav til miljø og bærekraft, med bygg i energiklasse A.
Dette i tillegg til optimalisering av byggenes utforming innvendig og utvendig med tanke på en fremtidig leietakers virksomhet på området.
Avstander:
Eiendommen ligger midt mellom Trondheim og Stjørdal, med ca. 15 minutters kjøretid begge veier.
Utleier
Sveberg Næringstomt 6 AS er datterselskap til Deco Holding AS. De driver med langsiktig utleie og forvaltning av næringseiendom gjennom flere selskap og i partnerskap med andre eiendomsaktører i Trøndelag
Deco Holding AS sin eiendomssatsning fokuserer på næringseiendommer/bygg rettet mot verksted, lager, logistikk og kombinasjonsvirksomhet.
Største del av porteføljen er lokalisert på Rosten i Trondheim med eiendommer på Østre Rosten 80 og Rosten 68
Regulering
Eiendommen er i gjeldene reguleringsplan fra 2017 av satt til industri og lager formål (BKB1). Maksimal byggehøyde er 16 meter.
Matrikkelinformasjon
Visning
Ta kontakt for å avtale visning.Nyttige lenker
Norion Næringsmegling
Nærområdet
Annonseinformasjon
| FINN-kode | 344214652 |
|---|---|
| Sist endret | 21. sep. 2025 01:50 |
| Referanse | 48240021 |
Annonsene kan være mangelfulle i forhold til lovpålagt opplysningsplikt. Før bindende avtale inngås oppfordres interessenter til å innhente komplett informasjon fra meglerforetaket, selger eller utleier.








