Bildegalleri

Virtuelt stylet bilde av lokalet
Lyse og luftige kontorlokaler
Nøkkelinfo
- Areal
- 356 m²
- Etasje
- 1.
Type lokale
Fasiliteter
Om eiendommen
I tider hvor det er mye usikkerhet er god fleksibiltet viktig. Kontorer bør også kunne justere seg i takt med selskapets vekst og utvikling. Vi kan tilby denne fleksibiliteten!
Velkommen til Technopolis på Fornebu med over 130 aktive leietakere. Vi tilbyr et dynamisk og moderne kontormiljø for din bedrift, med fleksible lokaler og det mest omfattende tjenestetilbudet på markedet.
Vi leier ut tre ulike kontorbygg på totalt 70 000 m² med kontor. Technopolis tar seg av det praktiske i hverdagen så du kan fokusere på de viktige tingene.
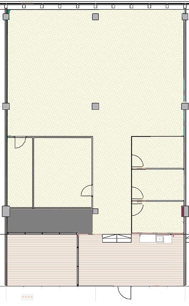
Kontorlokalet på 356 kvm BTA har en fin beliggenhet i Terminalbyggets 1. etasje og består per i dag av åpent landskap, 5 møterom/kontor, multirom og kjøkkenfasiliteter. Lokalet kan tilpasses bedriftens behov.
På Technopolis Fornebu har vi flere serveringstilbud med blant annet kantiner, Bowl-bar og en hyggelig kaffebar med gode take away muligheter.
Vi tilbyr også følgende fasiliteter og servicetilbud til våre leietakere: resepsjon, treningsrom, garderober med gratis håndkleservice, auditorium, møterom, frisør, renseritjenester, Kiwi, gratis sykkelleie, tannlege, CopyCat og flotte interaktive fellesarealer som de ansatte kan benytte seg av.
Vår brukerforening Technoport arrangerer både sosiale og fagelige events for alle leietakere. Innholdsrike frokostmøter, nettverking, høstfest, beach volleyball turnering, og TechnoPILS for å nevne noe.
Beliggenhet
Velkommen til Technopolis på Fornebu med over 130 aktive leietakere.
Technopolis Fornebu tilbyr et dynamisk og moderne kontormiljø for din bedrift, med fleksible lokaler og det mest omfattende tjenestetilbudet på markedet.
Vi leier ut tre ulike kontorbygg – Totalt 70 000 m² med kontor. Technopolis tar seg av det praktiske i hverdagen så du kan fokusere på de viktige tingene - Din bedrift!
Har du lyst på noe godt å spise er det tre spennende og moderne restauranter å velge imellom.
Transit serverer smakfulle retter inspirert av Street Food.
Expedisjon tilbyr kjente og kjære retter, gjerne med en twist. Begge restaurantene tilbyr også en rikholdig salatbuffet, yoghurtbar og nysmurte sandwiches.
Hvis du er på farten, kan du også stoppe i vår italienskinspirerte kaffebar Expresso og ta med deg ett pizzastykke, toast, et nystekt bakverk, en forfriskende smoothie eller en kopp kaffe i hånda.
Vi tilbyr også følgende fasiliteter og servicetilbud til våre leietakere; resepsjon, besøksregistrering, renhold, kontordesign, treningsrom, garderobe, håndkleservice, auditorium, møterom, frisør, tannlege, kiropraktor, fysioterapeut, renseritjenester, Kiwi, gratis sykkelleie, CopyCat, bilvask og flotte interaktive fellesarealer som bedriftene kan benytte seg av.
Vår brukerforening Technoport arrangerer både sosiale og faglige events for alle leietakere.
Adkomst
Det er svært gode kollektivtilbud til Technopolis på Fornebu. Hyppige bussavganger ca hvert 2. minutt fra/til Oslo sentrum og Lysaker, bussen stopper rett utenfor.
Kommer du med tog, går du av på Lysaker stasjon og tar bussen videre, bussen tar 4-5 minutter.
Det er utmerkede sykkelstier til og fra Fornebu. Vi har eget stativ med bysykler rett utenfor hovedinngangen.
Technopolis p-hus har meget god kapasitet for både besøkende og ansatte.
sjekk vår nettside: www.technopolis.no
Visning
Ta kontakt for å avtale visning.Technopolis AS
Nærområdet
Annonsene kan være mangelfulle i forhold til lovpålagt opplysningsplikt. Før bindende avtale inngås oppfordres interessenter til å innhente komplett informasjon fra meglerforetaket, selger eller utleier.














