Bildegalleri

Inaktiv
Billingstadsletta 13: Kontorlokaler i fullservicebygg - Totalrehabilitert kontoreiendom
Nøkkelinfo
- Areal
- 352 m²
- Energimerking
- B
Type lokale
Kontor
Fasiliteter
Aircondition
Alarm
Bredbåndstilknytning
Garasje/P-plass
Heis
Kantine
Beliggenhet
Eiendommen er de senere år totalrehabilitert og ble i 2024 miljøsertifisert med BREEAM in-use: Very good.
Beliggende mellom Oslo og Asker og har en meget god plassering sentralt på Billingstad med enkel av- og påkjøring til E18. Det er en god kollektivdekning i området med buss og tog.
Lokalet:
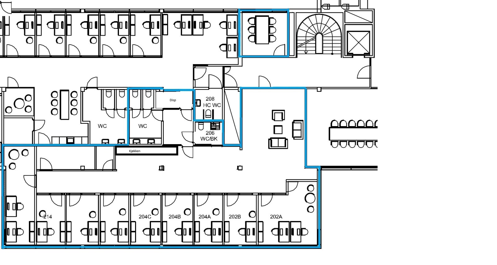
Det ledige arealet ligger i 2 etasje og utgjør 352 kvm BTA. Lokalet passer fint for 10 personer med cellekontroer, eller 20+ i kombinasjon med åpent landskap.
Overtakelse: Lokalene benyttes i dag av ett av gårdeiers datterselskap og kan derfor fleksibelt fristillelses etter nærmere avtale.
Lokalet har ett møterom, samt at det er flere disponible møte-/konferanserom i byggets fellesarealer.
Parkeringsplasser leies i garasje.
Om eiendommen:
På Billingstadsletta 13 har du mulighet til å leie totalrehabiliterte kontorlokaler med attraktiv beliggenhet. Den nye fasaden har store vinduer fra gulv til tak som gir gode lysforhold, godt inneklima og et moderne uttrykk. Gårdeiers omfattende investeringer BREEAM-tiltak har også har gitt betydelig besparelser på energiforbruket som kommer leietakerne til gode. Inngangspartiet ble totalrehabilitert og ferdigstilt i 2022, og holder høy standard med uformelle møteplasser for byggets gjester og ansatte.
- Oppgraderte teknisk anlegg, heiser mm.
- Direkte adkomst fra parkeringsanlegg til kontoretasjene
- God parkeringsdekning i tilknytning til eiendommen
- Kantinen ble bygget i 2019 og fremstår svært moderne og som et naturlig møtepunkt i bygget. Her kan leietakerne også nyte lunsjen utendørs om sommeren.
- Sykkelparkering.
- Dusj og garderober er nybygget i 2024.
Gårdeier:
Billingstadsletta 13 AS er et datterselskap i konsernet Conceptor AS. Konsernet har to forretningsområder; eiendom og finansielle plasseringer. Konsernets engasjement innenfor eiendom er knyttet til utvikling av bolig- og næringseiendom, samt langsiktig drift og forvaltning av egne eiendommer. Mange av konsernets pågående utviklingsprosjekter skjer gjennom datterselskaper og i partnerskap med andre aktører. I sum er Conceptor Eiendom AS engasjert i prosjekter hvor det er i underkant av 2.500 boliger under utvikling, potensiale for utvikling av ca. 150.000 m² næringseiendom.
Beliggende mellom Oslo og Asker og har en meget god plassering sentralt på Billingstad med enkel av- og påkjøring til E18. Det er en god kollektivdekning i området med buss og tog.
Lokalet:
Det ledige arealet ligger i 2 etasje og utgjør 352 kvm BTA. Lokalet passer fint for 10 personer med cellekontroer, eller 20+ i kombinasjon med åpent landskap.
Overtakelse: Lokalene benyttes i dag av ett av gårdeiers datterselskap og kan derfor fleksibelt fristillelses etter nærmere avtale.
Lokalet har ett møterom, samt at det er flere disponible møte-/konferanserom i byggets fellesarealer.
Parkeringsplasser leies i garasje.
Om eiendommen:
På Billingstadsletta 13 har du mulighet til å leie totalrehabiliterte kontorlokaler med attraktiv beliggenhet. Den nye fasaden har store vinduer fra gulv til tak som gir gode lysforhold, godt inneklima og et moderne uttrykk. Gårdeiers omfattende investeringer BREEAM-tiltak har også har gitt betydelig besparelser på energiforbruket som kommer leietakerne til gode. Inngangspartiet ble totalrehabilitert og ferdigstilt i 2022, og holder høy standard med uformelle møteplasser for byggets gjester og ansatte.
- Oppgraderte teknisk anlegg, heiser mm.
- Direkte adkomst fra parkeringsanlegg til kontoretasjene
- God parkeringsdekning i tilknytning til eiendommen
- Kantinen ble bygget i 2019 og fremstår svært moderne og som et naturlig møtepunkt i bygget. Her kan leietakerne også nyte lunsjen utendørs om sommeren.
- Sykkelparkering.
- Dusj og garderober er nybygget i 2024.
Gårdeier:
Billingstadsletta 13 AS er et datterselskap i konsernet Conceptor AS. Konsernet har to forretningsområder; eiendom og finansielle plasseringer. Konsernets engasjement innenfor eiendom er knyttet til utvikling av bolig- og næringseiendom, samt langsiktig drift og forvaltning av egne eiendommer. Mange av konsernets pågående utviklingsprosjekter skjer gjennom datterselskaper og i partnerskap med andre aktører. I sum er Conceptor Eiendom AS engasjert i prosjekter hvor det er i underkant av 2.500 boliger under utvikling, potensiale for utvikling av ca. 150.000 m² næringseiendom.
NB: Knappen for å vise hele beskrivelsen har kun en visuell effekt.
NB: Knappen for å vise hele beskrivelsen har kun en visuell effekt.
Visning
Ta kontakt for å avtale visning.Nærområdet
Annonsene kan være mangelfulle i forhold til lovpålagt opplysningsplikt. Før bindende avtale inngås oppfordres interessenter til å innhente komplett informasjon fra meglerforetaket, selger eller utleier.


















