Bildegalleri

Hauketo Senter
Hauketo Senter - Lokaler som egner seg til: Kontor, helserelatert virksomhet, trening/dans m.m. BTA 82 - 740 kvm.
Nøkkelinfo
- Areal
- 82 - 1 013 m²
- Tomt
- Eiet
- Etasje
- 4.
- Byggeår
- 1992
Type lokale
Fasiliteter
Arealspesifikasjon
4. etg: 82 kvm Kontor
4. etg: 191 kvm Kontor
4. etg: 321 kvm Kontorlokale
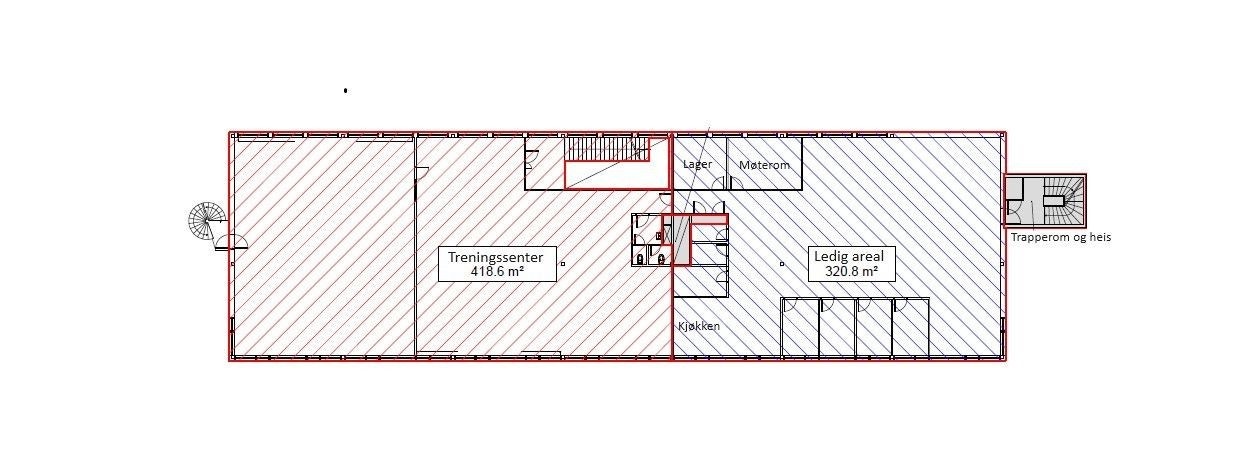
4. etg: 419 kvm Trening/dans m.m.
Kort om eiendommen
Lokalene som blir ledige ligger i 4. etg. og er i dag et kontorlokale og et treningslokale. Lokalene kan eventuelt slåes sammen til et stort lokale. Lokalene kan egne seg til forskjellig bruk som for eksempel helserelatert virksomhet, kontor, trening, dans, kampsport, forsamlingslokale m.m. (forbehold om ev. bruksendring).
Bebyggelse
Hauketoveien 8 er en kontor og forretningseiendom oppført over fire etasjer med forretninger og servering på gateplan. De ledige lokalene ligger byggets øverste etasje. Eiendommen har ventilasjonsanlegg og heis (ny 2019).
Beliggenhet
Hauketo Senter har en attraktiv og sentral beliggenhet på knutepunkt på Hauketo. Eiendommen har en svært sentral beliggenhet med umiddelbar nærhet til offentlig kommunkasjon med Hauketo Stasjon med tog og buss vis-á-vis eiendommen. Området ligger som et bindeledd mellom Nordstrand og Søndre Nordstrand og har samtidig kort vei inn til Oslo Sentrum.
Eiendommen har i dag leietakere som Rema 1000, Istanbull Supermarked, Namnam, Fresh Fitness, Aktifys fysioterapi, Quickbet og Oslo Syd Trafikkskole. Kiwi overtar lokalene etter Rema 1000 i 2024 og det vil i den forbindelse skje en oppgradering av eiendommen med ny fasade og oppgradering av utearealene. Eiendommen har en jevn og god strøm med kunder og anses som et svært godt punkt for diverse virksomheter.
Adkomst
Bil: 5 minutter kjøretur etter avkjøring fra E6 eller E18
Tog: L2: 12 minutter inn til Oslo S og 20 minutter til Ski.
Buss: Bussruter nr. 19N, 73, 73X, 77, 77X, 79, 81, 81N, 87 og 515.
Inneholder
Lokalene ligger i 4. etg. og er nabolokaler slik at de kan leies ut separat, eller samlet som et stort lokale:
Kontorlokale BTA 321 kvm.:
Pent lokale oppusset 2019 med mye naturlig lys. Kontorlokalet har åpent kontorlandskap/showroom, møterom, fire kontorer, kjøkken, sosial sone, 3. stk. toaletter (1. stk. HC), og lager. Lokalet har teppe på gulv og kontorfronter i glass.
Alternativt kan dette lokalet deles i 2 med en felles gang imellom, som vist i den alternative planskisse.
Ved dette alternativet blir den ene lokalet BTA 191 kvm. og det andre lokalet BTA 82 kvm.
Treningslokale BTA 419 kvm.:
Fresh Fitness kan vurdere en reduksjon av deres arealer i 4. etg og ved behov kan da hele 4. etg leies ut i sin helhet. Se vedlagt bilde av deres gruppetimesal i 4. etg. Treningslokalet består av to store åpne rom/saler, samt toaletter.
Matrikkelinformasjon
Visning
Ta kontakt for å avtale visning.
AREALPARTNER NÆRINGSMEGLING AS
Nærområdet
Annonseinformasjon
| FINN-kode | 336186785 |
|---|---|
| Sist endret | 14. feb. 2024 08:28 |
| Referanse | APN1.245 |
Annonsene kan være mangelfulle i forhold til lovpålagt opplysningsplikt. Før bindende avtale inngås oppfordres interessenter til å innhente komplett informasjon fra meglerforetaket, selger eller utleier.

















