Bildegalleri

Større, fleksible kontorlokaler ledig til leie
Nøkkelinfo
- Areal
- 1 - 883 m²
- Tomt
- Eiet
Type lokale
Beskrivelse
Større, fleksible kontorlokaler som tidligere har huset Statens Vegvesen og Narvik Trafikkstasjon. Lokalene er ledige for rask overtakelse. Lokalene vil gjennomgå oppussing og kan tilpasses leietaker i denne forbindelse. Kontakt megler for utfyllende info.
Innhold
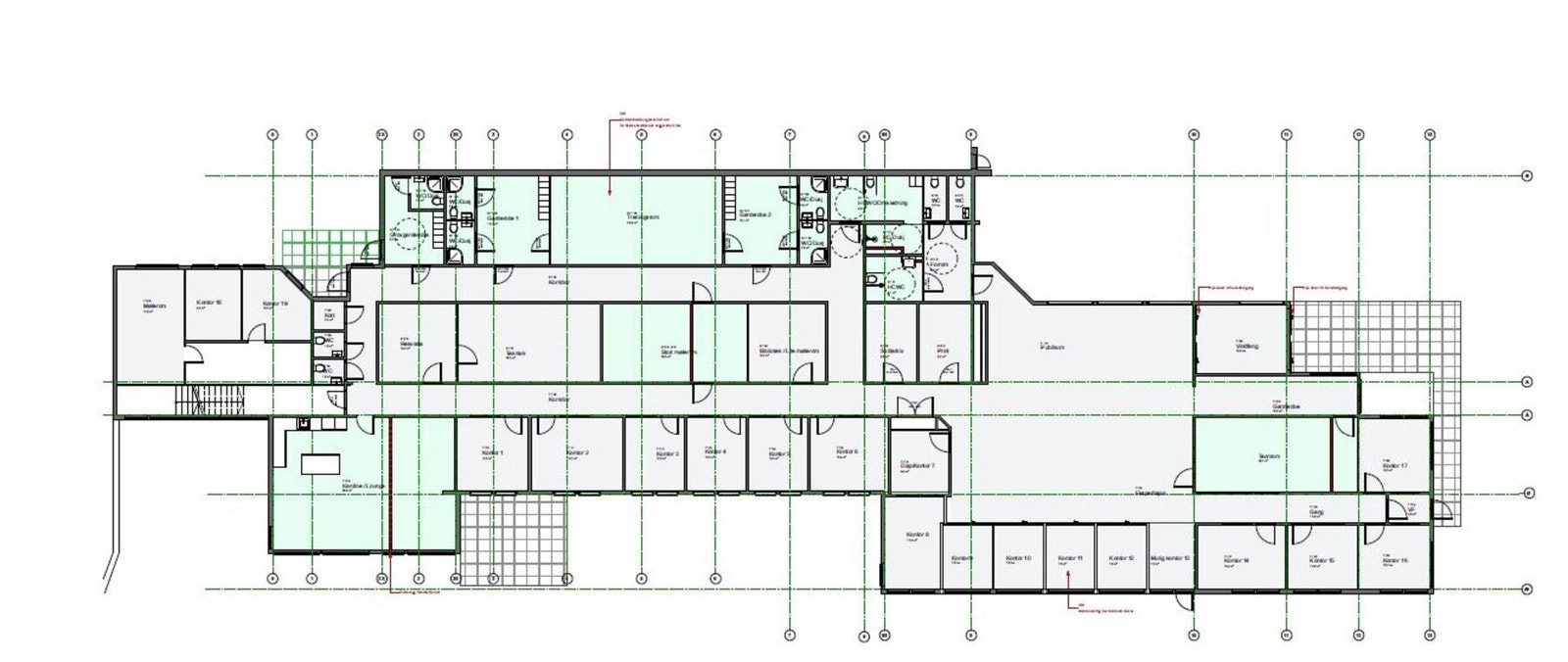
Hovedinngang, Yttergang, korridor, resepsjon, kontorlandskap, 16 kontorer, teori-rom, 3 arkiv, datarom, toalettanlegg med handikaptoalett, 2 wc, 2 lagerrom, spiserom og møterom, 3 mellomganger, møterom, 2 bøttekott, kafferom, bibliotek, korridor, sluse mot kontrollhall, 2 garderober, wc-rom, servantrom, tavlerom, dusjrom
Oppvarming
Elektrisk
Beliggenhet
Eiendommen er beliggende i et veletablert industri- og næringsområde i Narvik. Dette er å anse som et logistikknutepunkt i området med umiddelbar nærhet til kaianlegg og havneområde, jernbane og samtidig sentralt knutepunkt ift vei og E6.
Adkomst
Enkel adkomst direkte fra gateplan.
Bruksareal per etasje
Ca 883 kvm
Matrikkelinformasjon
EiendomsMegler 1 Nord-Norge - Næring
Nærområdet
Annonsene kan være mangelfulle i forhold til lovpålagt opplysningsplikt. Før bindende avtale inngås oppfordres interessenter til å innhente komplett informasjon fra meglerforetaket, selger eller utleier.




























