Bildegalleri

Vinklgården - nytt signalbygg i hjertet av Ski sentrum!
VINKLGÅRDEN - Attraktivt og sentralt kontorlokale på 91 kvm i nybygg - kan leveres tilpasset for leietaker!
Nøkkelinfo
- Areal
- 1 - 92 m²
- Bruttoareal
- 91 m²
- Tomteareal
- 2 331 m² (eiet)
- Byggeår
- 2023
Type lokale
Arealspesifikasjon
2. etg: 1 kvm Everymatrix Norway AS
2. etg: 91 kvm Ledig lokale
| Kort om eiendommen
Ledig lokale i nybygg med Ski sentrums beste beliggenhet.
Passer for kontorvirksomheter med 4-6 arbeidsplasser.
Gode kommunikasjonslinjer med både bil og offentlig transport.
| Bebyggelse
Kombinasjonsbygg over 6 etasjer pluss parkeringskjeller, næringslokaler i 1. etasje/deler av 2. etasje og med boliger i øvrige etasjer. Bygget er fundamentert til fjell. Vertikalt bæresystem hovedsakelig ved veggskiver og søyler i betong, samt noen søyler i stål. Horisontalt bæresystem/dekker i betong. Vedlikeholdsfrie fasader i tegl (1. etasje), puss (2-6. etasje), aluminium og prodema fasadeplater. Bygget leveres etter teknisk forskrift 2017 og i samsvar med vilkårene i byggetillatelsen. Lokaler kan leveres tilpasset til hver enkelt leietaker.
| Innhold
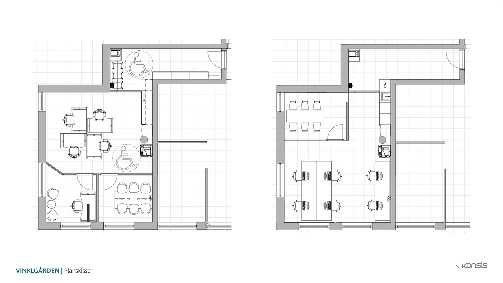
2. etasje (91 kvm): Kontorer, møterom og kjøkken.
Kontorlokale i hjertet av Ski sentrum med inngang fra Kirkeveien og profilering mot Parkaksen. Nybygg under oppføring med ferdigstillelse sommeren 2023. Representative kontorlokaler med høy standard og god fleksibilitet. Kontorene er plassert mot yttervegger med gode lysforhold og fri takhøyde opp til 2.60 meter. Konseptskisse fra Konsis med forslag til planløsning vedlagt i prospekt.
Leienivå er avhengig av oppstart, varighet og tilpasninger. Årsleie forutsatt inndeling i tråd med konseptskisse stipulert til NOK 280.000,- eksl. mva. Kvartalsvis forhåndsbetaling og 3 måneders depositum/garanti. I tillegg til leien betaler leietaker en forholdsmessig andel av eiendommens driftsutgifter. Leietaker tegner eget strømabonnement.
Husleielovens bestemmelser vil bare i begrenset utstrekning kunne påberopes av Leietaker. Kontakt vårt kontor for nærmere opplysninger og gjennomlesing av avtalen. Utleier forbeholder seg her bl.a. retten til å kunne registrere utleievirksomheten i merverdiregisteret.
Eml. §§ 4-4, 6-2, 6-7, 6-10, 7-1 og 8-8 fravikes ved dette oppdraget.
| Beliggenhet
Vinklgården ligger midt i den mest urbane delen av Ski, med parker, torg og et godt utvalg av butikker, restauranter og kulturtilbud. Ledig kontorlokale i nybyggets 2. etasje med optimal plassering i Ski sentrum. God profilering mot gate med butikker, service, offentlige kontorer og leiligheter. Øvrige leietakere består av lokale aktører med lang fartstid innen servering, frisør, tannlege, brudesalong og blomsterbutikk. Eiendommen ligger i umiddelbar nærhet til Ski stasjon med hyppige avganger for tog og buss - kun 11 minutters reisetid til Oslo. Ski sentrum står foran sterk vekst de kommende årene og vil fremstå som et regionsenter i Folloregionen. En rekke planlagte og igangsatte prosjekter vil gi nye muligheter for næringslivet. Kommunesammenslåingen med Oppegård har gitt ytterligere drivkraft til byutviklingen i Ski med konkrete planer om flere offentlige kontorer, bypreget bolig-regulering og tilrettelegging for variert næringsutvikling.
| Adkomst
Det er enkel adkomst både med bil og kollektivtransport. Kort vei til bussholdeplass med gode bussforbindelser og kun få minutters gangavstand til Ski jernbanestasjon. Nytt dobbeltspor reduserer togreisen Ski-Oslo til kun 11 minutter.
| Parkering
Parkeringskjeller med korttidsparkering for kunder. For øvrig god parkeringsdekning med flere parkeringsområder i Ski sentrum, samt gateparkering.
| Regulering
Eiendommen ligger i område regulert til kombinert bolig og næring (forretning, kontor, bevertning m.m.).
| Beskrivelse av tomt
Eiet tomt på 2.331 kvm. Arealer vest, nord og øst for dagens tomt er regulert til offentlig formål (kjørevei, gangvei mv.) og forventes avgitt til det offentlige i forbindelse med ferdigstillelse av prosjektet. Netto tomteareal for sameiet antas å bli rundt 1.700 kvm.
| Ventilasjon
Balansert ventilasjon med varmegjenvinning og kjøling.
Matrikkelinformasjon
Visning
Ta kontakt for å avtale visning.Metra Næringsmegling AS
Nærområdet
Annonseinformasjon
| FINN-kode | 322657124 |
|---|---|
| Sist endret | 07. jan. 2026 09:36 |
| Referanse | MTRA1.2021 |
Annonsene kan være mangelfulle i forhold til lovpålagt opplysningsplikt. Før bindende avtale inngås oppfordres interessenter til å innhente komplett informasjon fra meglerforetaket, selger eller utleier.













