Bildegalleri

Fasade Hoffsveien 21-23
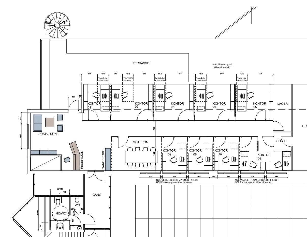
Toppetasje, solrik privat takterrasse, kantine, dusj/garderobe, parkering
Nøkkelinfo
- Areal
- 221 m²
- Etasje
- 5.
- Byggeår
- 1985
- Renovert år
- 2013
Type lokale
Fasiliteter
Om eiendommen
Stor og flott kantine med salatbar og egen kokk . I tilknytning til kantinen finnes to større møterom som kan bookes kostnadsfritt.
Bygget har god parkeringsdekning, både utendørs- og inne i parkeringsanlegg med egen vaskehall og sykkelstasjon.
Hvorfor leie i Hoffsveien 21-23?
* Effektive lokaler og sentral belligenhet* Kantine med møteromsfasiliteter
* God teknisk stand på lokalene
* Bygget driftes av eget forvaltningsselskap som har fokus og er tilgjenglig for leietaker - både i administrasjonen og gjennom dedikert vaktmester. (Vi holder til i nabobygget)
* God parkeringsdekning, kort avstand til kollektiv trafikk
* Innendørs sykkerparkering
* Garderobeanlegg i underetasje
Beliggenhet
Hoffsveien 21-23 ligger sentralt på Hoff i gangavstand til kollektivtrafikk: Flytoget, samt øvrig offentlig kommunikasjon som trikk og buss.
Bygget har fasade mot Hoffsveien og er nabo til Møllhausen Torg, som er et hyggelig nærsenter med dagligvare, apotek, frisør, blomster og Cafe.
Harbitz torg, kun et steinkast unna, byr på spisesteder, dagligvare, treningsmuligheter og kultursenter.
Adkomst
Trikk: Nærmeste holdeplass er Hoff. ca 4 minutters gange. Trikk nr. 13 Lilleaker-Grefsen, via Nationaltheatret, går hvert 10. minutt (www.ruter.no)
Buss: I tillegg til 20-bussen stopper buss nr. 24,31 og 32 samt regionbuss Asker og Bærum omtrent rett utenfor døren.
Lokaltog: Skøyen Stasjon rett i nærheten. Alle lokaltog stopper her (www.vy.no)
Flytog / Flybuss: Fra Skøyen Stasjon til Oslo Lufthavn Gardermoen, (www.flytoget.no)
Bil: Parkeringsplasser i garasje, samt uteparkering, vaskehall i phus
Sykkel: sykkelparkering i phus, sykkelstasjon
Standard
Bygget er solid bygget i bærende murverk. Dette gjør at byggets bæring er på yttervegger, og man står fritt til å innrede kontorene etter ønske. (celle / åpent / teamrom).
Bygget har god ventilasjon, kjøling og solavskjerming. Parkeringsplasser kan leies utendørs eller i eiendommens underetasje.
Innhold
Lokalet består per i dag av et større møterom og flere cellekontorer og et åpent kontorareal. Tilpasninger/ombygging utføres etter behov.
Ta gjerne kontakt for en befaring.
97062399
charlotte@holmeiendom.no
Matrikkelinformasjon
Visning
Ta kontakt for å avtale visning.Nyttige lenker
Holm Eiendomsforvaltning AS
Nærområdet
Annonseinformasjon
| FINN-kode | 284951565 |
|---|---|
| Sist endret | 27. mars 2026 10:17 |
| Referanse | Toppetasje HV 21/23 |
Annonsene kan være mangelfulle i forhold til lovpålagt opplysningsplikt. Før bindende avtale inngås oppfordres interessenter til å innhente komplett informasjon fra meglerforetaket, selger eller utleier.
















