Bildegalleri

Bilde av eiendommen
Til leie - Langhus - Attraktivt kombinasjonsbygg - lager og logistikk
Nøkkelinfo
- Areal
- 3 000 - 20 000 m²
- Overtakelse
- Etter avtale
Type lokale
Om eiendommen
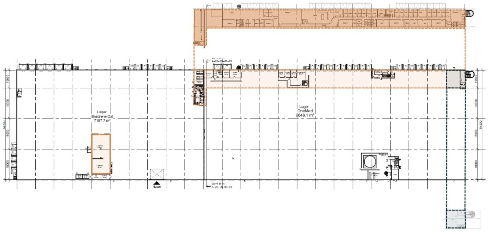
Stor logistikkeiendom på ca 26 500 m² BTA bestående av to separate bygg Snipetjernveien 3 og Snipetjernveien 9. Eiendommen har mulighet til utvidelser.
Det er muligheter for å leie arealer i bygget fra og med 31.01.2023. Ta kontakt for nærmere informasjon.
Eiendommen har prime logistikkbeliggenhet
Beliggenhet
Eiendommen har prime logistikkbeliggenhet og ligger svært attraktivt til nær E6 med kun 15 minutters avstand fra/til Oslo.
Fugleåsen ligger vis a vis Regnbuen næringspark på Langhus. Flere aktører er etablert i området: Elektroskandia, DSV, Postnord, NLP, Rema 1000, Coop, Alliance Healthcare, Brødrene Dahl, Byggmakker og Freja.
Om Bulk Industrial Real Estate
Bulk Industrial Real Estate er et forretningsområde innen Bulk Infrastructure Group, og skal være Skandinavias ledende eiendomsutvikler av lager-, logistikk og industribygg ved å tilby suverene lokasjoner med strategisk beliggenhet og bærekraftige logistikkløsninger, tilpasset et marked i rask endring.
Adkomst
Adkomst fra E-6 til Langhus, avkjøring 24 ved assurdiagonalen
Standard
- Fri høyde 6 og 7 m
- Nyttelaster 120kN/m² og punktlaster 60kN
- Støpt nytt gulv i den ene seksjonen på ca. 10 000 m²
- Oppgardering av sprinkelanlegg med tilhørende sprinkeltank og sprinkelpumper
- Fjernvarme
- Nye ventilasjonsaggregater
- Oppgardering av brannsikkerhet (oppgardering av nødlys, rømningsdør, brannslanger, rehabilitering av branntromler)
- LED-belysning med programmerbar styring
- Fri høyde 7,5m
- Nyttelaster 35kN/m² og punktlaster 75kN
- Nytt ventilasjons- og varmeanlegg i lager
- Sprinkelanlegg er tilpasset tørrvarelagring. (Oppgraderes ved behov).
Matrikkelinformasjon
Visning
Ta kontakt for å avtale visning.Bulk Industrial Real Estate AS
Nærområdet
Annonsene kan være mangelfulle i forhold til lovpålagt opplysningsplikt. Før bindende avtale inngås oppfordres interessenter til å innhente komplett informasjon fra meglerforetaket, selger eller utleier.






