Bildegalleri

Særdeles god plassering i Langgaten med mange forbipasserende
Forretningslokaler med både flott profilering og store lagerlokaler mot Langgaten i Holmestrand
Nøkkelinfo
- Areal
- 300 m²
- Etasje
- 1.
- Overtakelse
- 01.10.22
Type lokale
Fasiliteter
Om eiendommen
Forretningslokaler beliggende i 1. etasje og med flott profilering mot Langgaten i Holmestrand.
Av øvrige virskomheter i umiddelbar nærhet kan bl.a. nevnes Boots Apotek, Vinmonopolet, Coop Extra, NAV, Kid Interiør, Norli, Elon, gullsmed, Intersport, tannlegekontor m.v. Forøvrig flere forretninger og spisesteder i sentrum.
Vi er en fleksibel utleier og vi er tar gjerne en dialog på tilpasning/modernisering av lokalene.
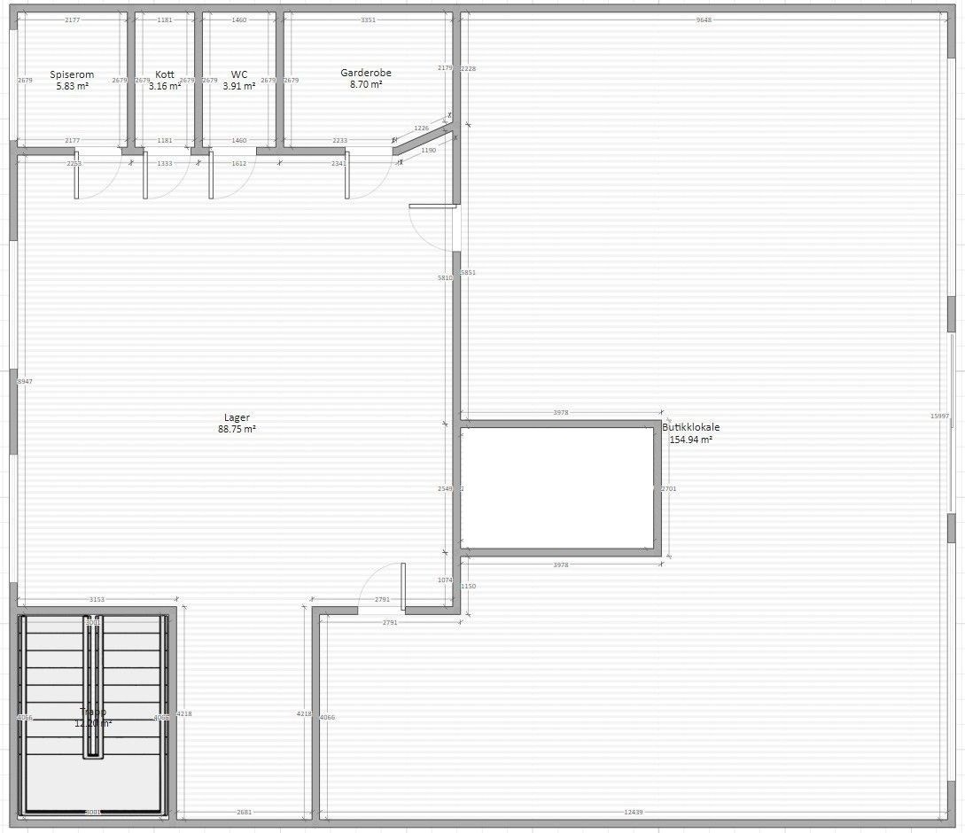
Lokalet har et stort bakrom med mye hylleplass. Det er også egen lagringsplass i underetasjen, med tilgang kun for butikklokalet. Dette kan evt. stenges av.
Bøttekott, WC, spiserom og garderobe er i lokalet.
Ta gjerne kontakt - visning etter avtale.
Lokalet overleveres ryddet og rengjort
Evt. inventar på bilder følger ikke med lokalet.
Beliggenhet
Lokalene har en svært sentral beliggenhet i sentrum av Holmestrand, med flott profilering og store vindusflater ut mot Langgaten. Lokalet ligger midt blandt øvrige sentrumsfunksjoner som bl.a. øvrige butikker, nytt flott bibliotek, småbåthavn, bussholdeplass, m.v. i umiddelbar nærhet og med få minutters gange til jernbanestasjon, badeplass m.v.
Lokalet blir i dag benyttet som butikk (med en større lager- og logistikkdel i bakkant for å serve virksomhetens nettbutikkdel).
Adkomst
Jfr. vedlagte kart.
Standard
Innhold
Praktiske og fine forretningslokaler med alt på en flate. Beliggende i 1. etg. og med inngang fra Langgaten. Lokalene inneholder: Forretningslokale, lager, toaletter, spiserom m.v.
Matrikkelinformasjon
Visning
Ta kontakt for å avtale visning.Holmestrand Utvikling AS
Holmestrand Utvikling as v/ Jon Tunheim
Nærområdet
Annonseinformasjon
| FINN-kode | 256396024 |
|---|---|
| Sist endret | 28. apr. 2022 12:34 |
| Referanse | Langgaten 33 |
Annonsene kan være mangelfulle i forhold til lovpålagt opplysningsplikt. Før bindende avtale inngås oppfordres interessenter til å innhente komplett informasjon fra meglerforetaket, selger eller utleier.















