Bildegalleri

Inaktiv
Notodden - Hydroparken - Lagerbygg på 316 kvm
Nøkkelinfo
- Areal
- 316 m²
- Bruksareal
- 316 m²
- Etasje
- 1.
- Byggeår
- 1960
- Overtakelse
- 1.4.22
Type lokale
Lager/Logistikk
Fasiliteter
Kjøreport
Om eiendommen
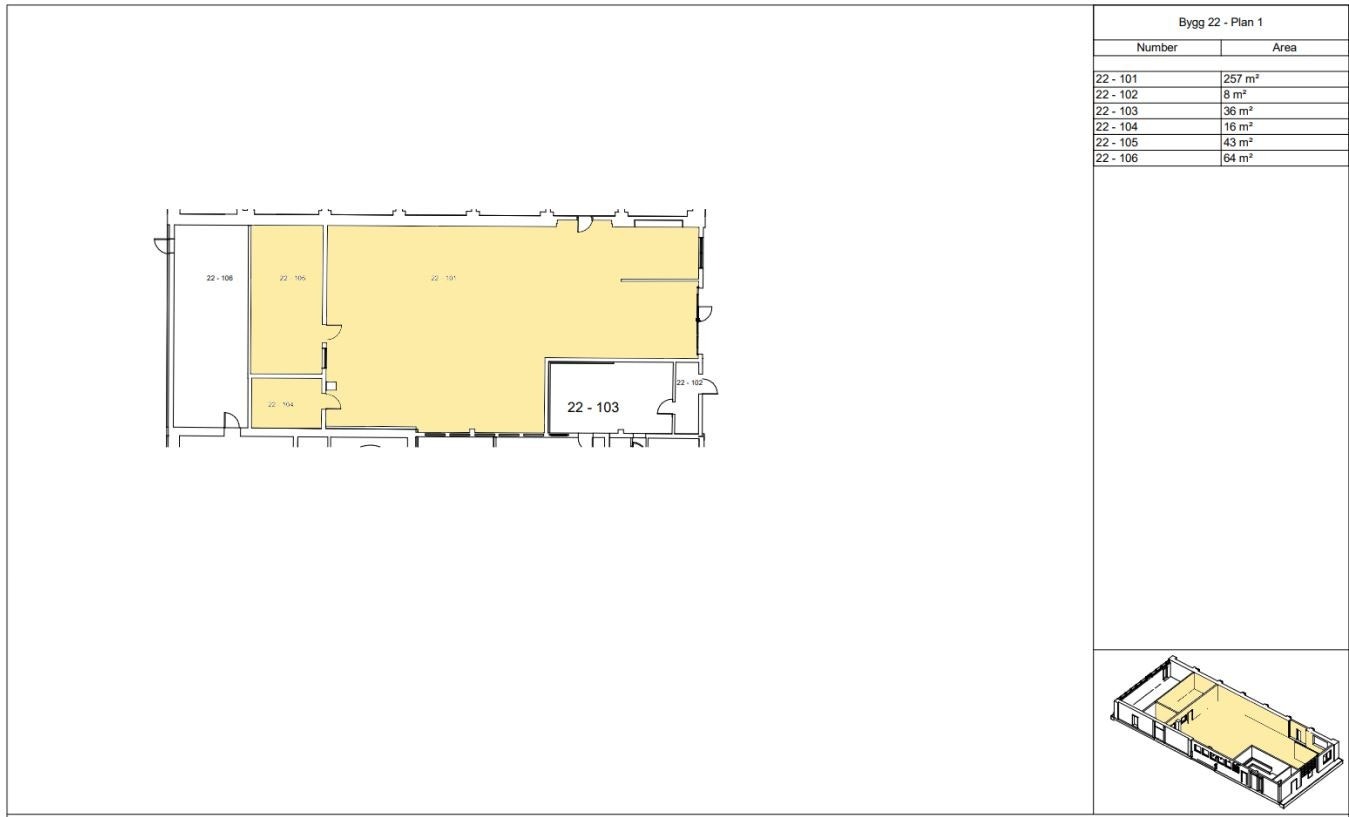
Fint lagerbygg på 316 kvm, inndelt i et stort lagerrom på ca. 257 kvm og to mindre rom på hhv 16 kvm og 43 kvm.
Beliggenhet
Notodden kommune ligger sentralt i Telemark fylke. Det er kun en halv times kjøring til Kongsberg og innen en times kjøring med bil finner man flere større byer som Drammen, Porsgrunn og Skien. Til Oslo bruker man ca 1 ½ time. Direkte adkomst til Europavei 134 til Haugesund.
På bakgrunn av sin strategiske beliggenhet og gode kommunikasjonsmuligheter er Hydroparken et populært og velegnet etableringssted for næringsvirksomhet
Adkomst
Enkel adkomst fra E134. Tog og busstasjon i umiddelbar nærhet.
NB: Knappen for å vise hele beskrivelsen har kun en visuell effekt.
NB: Knappen for å vise hele beskrivelsen har kun en visuell effekt.
Visning
Ta kontakt for å avtale visning.Hydroparken AS
Nærområdet
Annonsene kan være mangelfulle i forhold til lovpålagt opplysningsplikt. Før bindende avtale inngås oppfordres interessenter til å innhente komplett informasjon fra meglerforetaket, selger eller utleier.










