Bildegalleri

Inaktiv
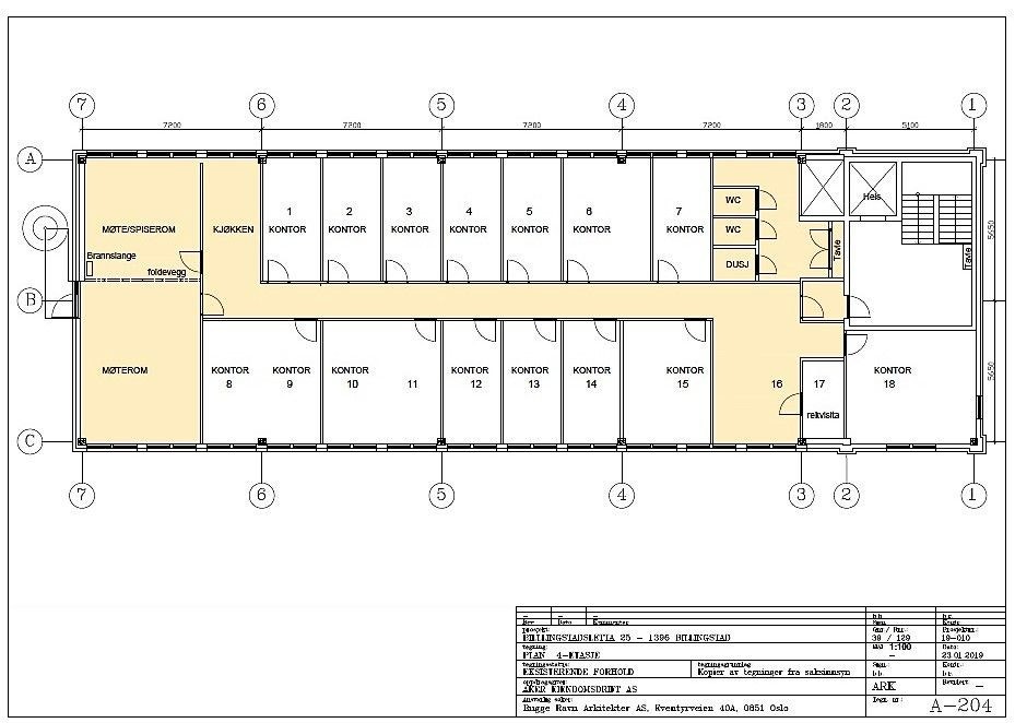
BILLINGSTAD - ASKER - KONTOR
Nøkkelinfo
- Areal
- 25 m²
- Bruksareal
- 18 m²
- Etasje
- 4.
- Kontorplasser
- 2
- P-plasser
- 2
- Byggeår
- 1992
Type lokale
Kontor
Fasiliteter
Aircondition
Bredbåndstilknytning
Garasje/P-plass
Heis
Om eiendommen
Pene kontorer i kontorfellesskap på Billingstadsletta.
Vi har nå ledig to kontorer;
- ett på 3,6 x 5,0 m. Plass til maks. 4 personer. God plass for 2 personer.
- ett på 2,4 x 5,0 m. Såkalt standard cellekontor.
Flytt rett inn. Alt er inkludert: Bredbånd (fiber), strøm, renhold, kjøkken, spiserom, møterom, mm.
Parkering, i bakgård.
Heis.
Kort vei til tog. Bussruter på Billingstadsletta.
Ny ventilasjon med kjøling.
Vi har nå ledig to kontorer;
- ett på 3,6 x 5,0 m. Plass til maks. 4 personer. God plass for 2 personer.
- ett på 2,4 x 5,0 m. Såkalt standard cellekontor.
Flytt rett inn. Alt er inkludert: Bredbånd (fiber), strøm, renhold, kjøkken, spiserom, møterom, mm.
Parkering, i bakgård.
Heis.
Kort vei til tog. Bussruter på Billingstadsletta.
Ny ventilasjon med kjøling.
Beliggenhet
Billingstadsletta, østre del. Ikke langt fra IKEA.
Adkomst
Lett atkomst fra E-18. Også kort vei til jernbanestasjon og bussruter.
Matrikkelinformasjon
Gårdsnr: 129
Bruksnr: 39
NB: Knappen for å vise hele beskrivelsen har kun en visuell effekt.
NB: Knappen for å vise hele beskrivelsen har kun en visuell effekt.
Visning
Ta kontakt for å avtale visning.Nærområdet
Annonsene kan være mangelfulle i forhold til lovpålagt opplysningsplikt. Før bindende avtale inngås oppfordres interessenter til å innhente komplett informasjon fra meglerforetaket, selger eller utleier.























