Bildegalleri

Kontor D. dette er det størte kontoret i arealet, og ligger på hjørnet av bygget med store vinduer og kod plass til en eller flere pulter, samt sittegruppe og skap
Inaktiv
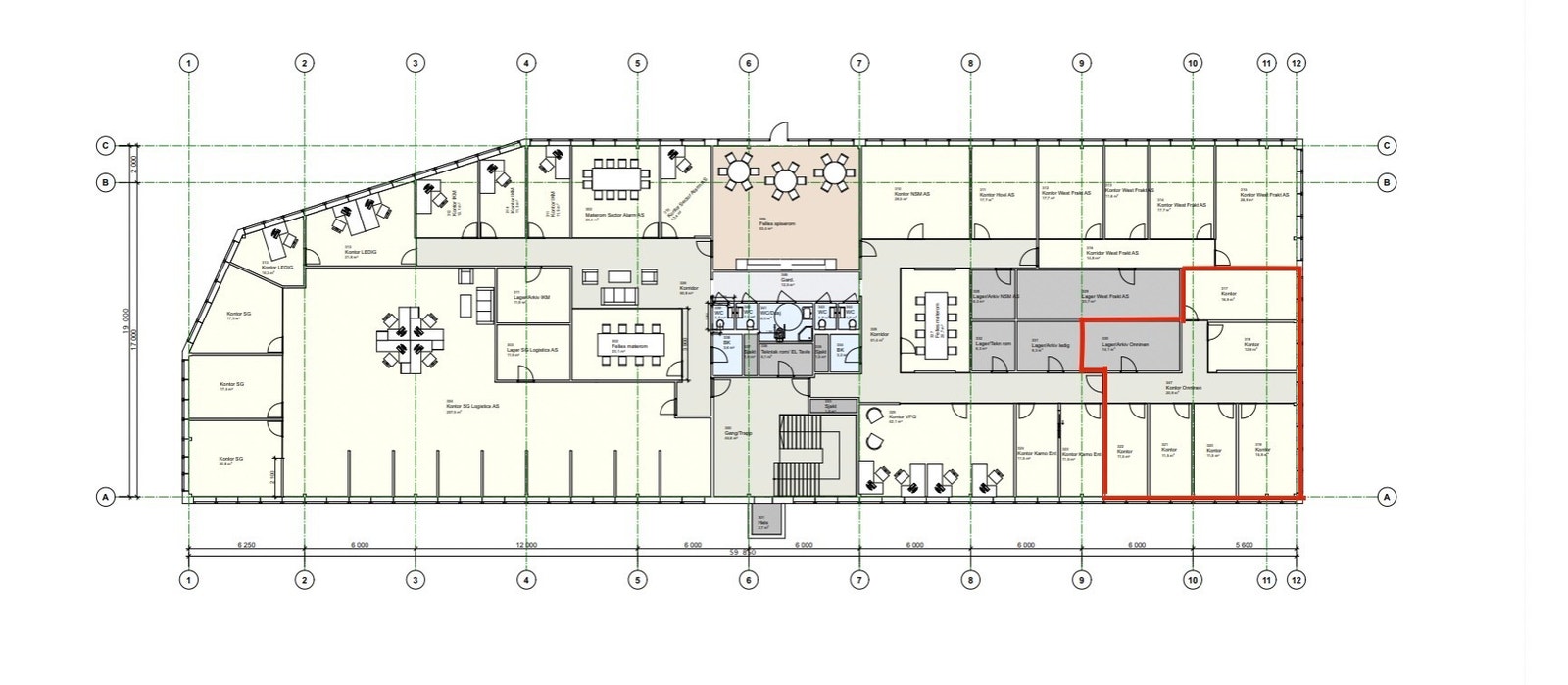
Kontorareal for 5 til leie i Breivika Industriveg 63
Leie pr. m²/år2 000 kr
Nøkkelinfo
- Areal
- 186 m²
- Etasje
- 3.
- Kontorplasser
- 5
- Byggeår
- 1998
- Renovert år
- 2021
- Energimerking
- D
- Overtakelse
- etter avtale
Type lokale
Kontor
Lager/Logistikk
Kombinasjonslokaler
Fasiliteter
Aircondition
Alarm
Bredbåndstilknytning
Garasje/P-plass
Heis
Kantine
Kjøreport
Om eiendommen
Moderne kontorareal i rehabilitert næringsbygg sentralt i østre del av Breivika
Kontorarealet ligger avlukket i en delt 3 etg.
arealt har 5 kontorer samt et møterom, to av kontorene er av god størrelse og kan brukes av 2 personer med åpen løsning om det er ønskelig.
Kontraktsarealet er på 186kvm, dette innebærer godt utstyrt møterom, fri bruk av kantine, og felles toalett
kontorene er i 3.etg med tilgang til Kantine og WC.
lokalene er lyse og moderne med store vinduer og god takhøyde.
Beliggenhet
Kontorene ligger i Breivika Industriveg 63, som er et nylig rehabilitert næringsbygg i østre del av breivika. bygget har lett tilgjengelig parkering, samt
egen parkeingsgarasje med plasser til utleie ved behov
egen parkeingsgarasje med plasser til utleie ved behov
Adkomst
Fra Lerstadveien og til Breivika Industrivei
Standard
Bygget ble rehabilitert i 2021 og er i meget god standard.
Matrikkelinformasjon
Kommunenr: 1504
Gårdsnr: 36
Gårdsnr: 145
NB: Knappen for å vise hele beskrivelsen har kun en visuell effekt.
NB: Knappen for å vise hele beskrivelsen har kun en visuell effekt.
Visning
Ta kontakt for å avtale visning.Nyttige lenker
Nordvest Næringsbygg AS
Nordvest Næringsbygg AS
Truls Bjørkavåg
Ove Bjørkavåg
Nærområdet
Annonsene kan være mangelfulle i forhold til lovpålagt opplysningsplikt. Før bindende avtale inngås oppfordres interessenter til å innhente komplett informasjon fra meglerforetaket, selger eller utleier.

















