Bildegalleri

Fasade mot Prestegata
Nyoppussede kontorlokaler i sentrum
Nøkkelinfo
- Areal
- 626 m²
- Bruttoareal
- 626 m²
- Tomt
- Eiet
- Overtakelse
- Etter avtale.
Type lokale
Beliggenhet
Eiendommen har en god og sentral beliggenhet midt i sentrum nær torvet, brygga og øvrige sentrumsfunksjoner.
Kort vei til jernbane- og busstasjon.
Standard
Lokalene vil bli innredet og pusset opp etter leietakers behov, og vil fremstå som nye moderne kontorlokaler.
Det skal settes inn flere vinduer i fasaden samt takvinduer, jfr. vedlagte fasadetegning.
Lokalene har porttelefon.
Inneholder
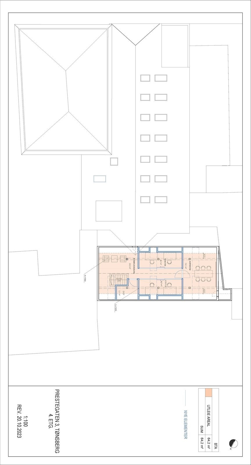
Ledige kontorlokaler i 3. og 4. etg.
Kontorene kan leies samlet eller som to separate lokaler på h.h.v. BTA 307 og 319 kvm.
Ved deling vil lokalene ha et felles mingleområde ved inngangene (merket med rosa på vedlagte tegning).
Lokale 1 (gult område på vedlagte tegning): BTA ca. 307kvm.
Vedlagte tegning viser forslag til inndeling. Lokalet har tilgang til egen terrasse.
Lokale 2: (orange område på vedlagte tegning): BTA ca. 319 kvm.
Vedlagte tegning viser forslag til inndeling. Interntrapp til loftsetasje med møterom/kontorlandskap.
Gårdsrommet skal gjerdes inn og det vil bli satt inn porter slik at dette blir et lukket område.
Sykkelparkering.
Det er heis i bygget.
Parkering
Mulighet for leie av 1-2 parkeringsplasser på eiendommen.
Bebyggelse
Kontoreiendom, betydelig oppgradert senere år.
Matrikkelinformasjon
Visning
Ta kontakt for å avtale visning.Q4 Næringsmegling AS
Nærområdet
Annonseinformasjon
| FINN-kode | 378888134 |
|---|---|
| Sist endret | 04. nov. 2024 10:06 |
| Referanse | QN4.24166 |
Annonsene kan være mangelfulle i forhold til lovpålagt opplysningsplikt. Før bindende avtale inngås oppfordres interessenter til å innhente komplett informasjon fra meglerforetaket, selger eller utleier.











