Bildegalleri

04hoydefoto-markert
Næringstomt med godkjent kombinasjonsbygg nær E18 - Heistad/Porsgrunn
Nøkkelinfo
- Tomteareal
- 1 465 m² (eiet)
- Boligtype
- Næringstomt
Visning
Ta kontakt for å avtale visning.Beliggenhet
Eiendommen ligger på Heistad med god eksponering mot gamle E18. Nært til avkjøring til nye E18.
Diverse
Salgsobjekt er aksjene i Heistad Næringsselskap AS, org.nr. 891852282. Dette selskapet eier kun eiendommen.
Bebyggelse
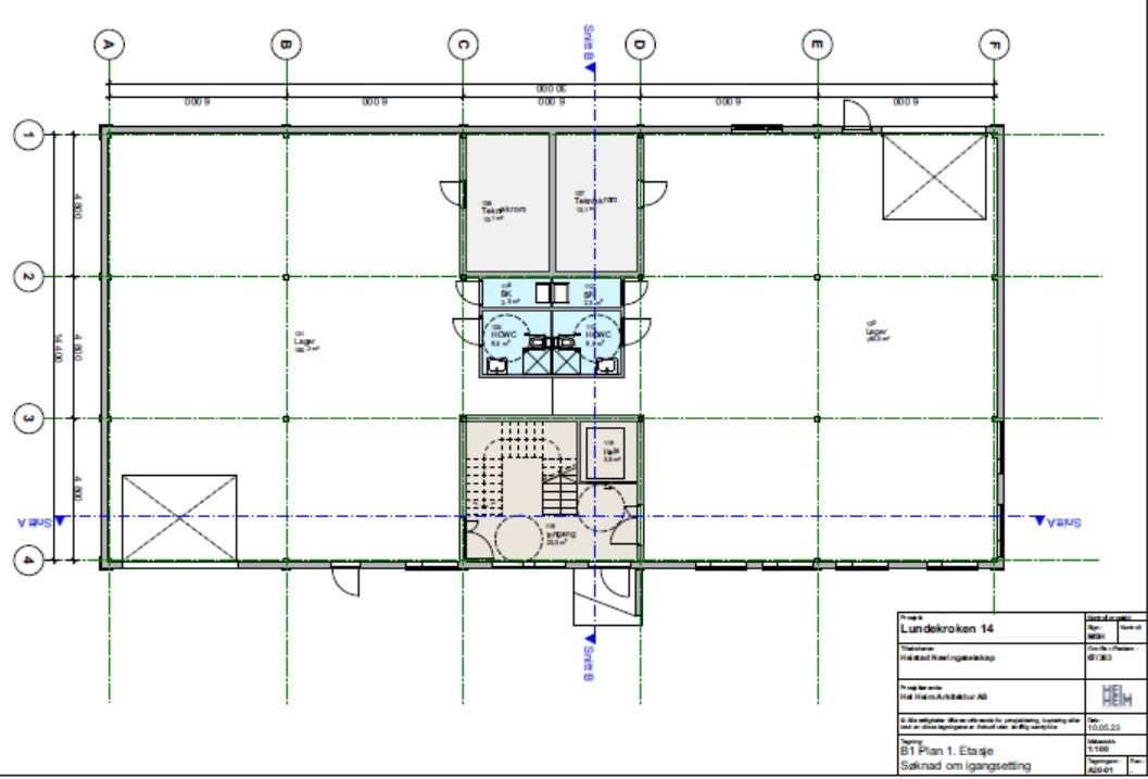
Det foreligger tegninger for ferdig godkjent næringsbygg. Tegningene er av et kombinasjonsbygg med kontorer i 2. etasje og lager/verksted i 1. etasje.
Bygget er fleksibelt og kan også deles vertikalt i 2 separate seksjoner for evt. utleie/salg. Gr.fl. 450 m2, BTA ca. 880 m2.
Tomt
1 464,5 m2 selveiet tomt.
Vei, vann og avløp
Offentlig.
Visning
Etter avtale med megler.
Regulering
Kommuneplanen viser eiendommen til Næringsformål.
Q4 Næringsmegling AS
Nærområdet
Annonseinformasjon
| FINN-kode | 441554360 |
|---|---|
| Sist endret | 12. des. 2025 08:05 |
| Referanse | QN4.24206 |
Annonsene kan være mangelfulle i forhold til lovpålagt opplysningsplikt. Før bindende avtale inngås oppfordres interessenter til å innhente komplett informasjon fra meglerforetaket, selger eller utleier.





















