Bildegalleri

Oversiktsbilde for Grasmyr
Stor tomt/nytt boligfelt med detaljregulering til 87 boenheter! Attraktivt og sentralt - Satsningsområde i kommunen!
Nøkkelinfo
- Tomteareal
- 33 000 m² (eiet)
- Boligtype
- Næringstomt
Kort om eiendommen
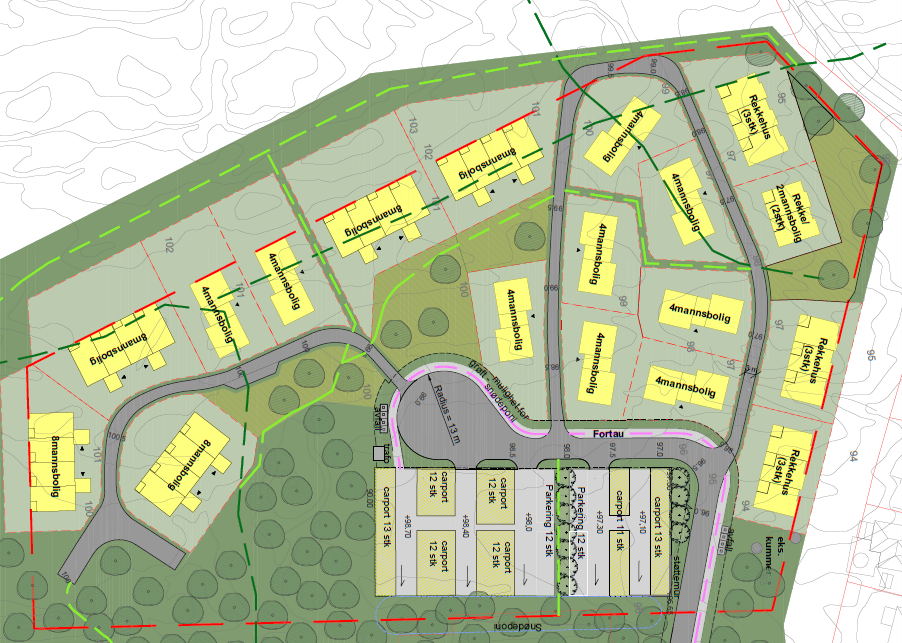
Stort tomtefelt med detaljregulering av nytt boligfelt med 87 boenheter! Inn til boligfeltet er det etablert adkomst med asfaltert vei, gangsti og vann-/avløpsledninger.
Det er i regulert inn totalt 18 bygg bestående av både rekkehus, fire- og åttemannsboliger, i tillegg til carporter.
Interessenter må sette seg inn i alle reguleringsdokumenter, herunder reguleringskart, detaljregulering Grasmyr Nord boligfelt mm.
Hensikten med planen er å tilrettelegge for boliger som passer flere målgrupper, eksempelvis førstegangskjøpere, enslige, pensjonister m.fl. til en fornuftig pris. Det tilrettelegges også for ny næringsbebyggelse og eksisterende offentlige bygg innenfor planområdet. Reguleringsplanen legger opp til et boligområde med 87 boenheter med en variert boligsammensetning.
Beliggenhet
Tomten/feltet har en meget attraktiv beliggenhet på Grasmyr, et satsningsområde i Bamble Kommune! Her er det allerede etablert ny ungdomsskole, felles for hele Bamble Kommune med svømmehall mm, i tillegg til barnehage, videregående skole, dagligvare, bensinstasjon, Europris og næringseiendom som er under etablering. Feltet har nyetablert adkomst med asfaltert veg/gangsti fra Tønderveien.
Feltet ligger høyt og fint i terrenget med gode solforhold. Sentralt med ca. 3 km til Stathelle med Alti Brotorvet kjøpesenter med ca. 60 butikker og ca. 5 km til Langesund - en fantastisk sommerby med konsertscene og yrende sommerliv.
Med nærhet til barnehage, barneskole, ungdomsskole og videregående skole som alle ligger i gangavstand, blir hente- og bringe tjenesten for foreldrene minimal!
Kommunen har lagt ned både innsats og investeringer i området, med ny ungdomsskole, brannstasjon, idrettsanlegg mm.
I området ligger flere av kommunale tjenester, slik som:
Helsestasjon: https://www.bamble.kommune.no/helse-og-omsorg/helsestasjon/
Svømmehall: https://www.bamble.kommune.no/SB/skoler/bamble-ungdomsskole/svommehall/
Kulturskole: https://www.bamble.kommune.no/kultur/kulturskolen/
Bamble Ungdomsskole: https://www.bamble.kommune.no/SB/skoler/bamble-ungdomsskole/
Stathelle barneskole: https://www.bamble.kommune.no/SB/skoler/stathelle-barneskole/
Grasmyr naturbarnehage: https://www.bamble.kommune.no/SB/barnehager/grasmyr-barnehage/
Adkomst
Tomten har adkomst fra Tønderveien på Grasmyr. Tønderveien er også avkjøring til nye Bamble Ungdomsskole, Europris, Kiwi samt flere næringseiendommer som er under etablering.
Omkostninger
30 000 000,- (Prisantydning)
Omkostninger:
15 100,- (Boligkjøperforsikring HELP (valgfritt))
2 800,- (Boligkjøperforsikring Pluss (valgfritt tillegg))
240,- (Pantattest kjøper - lagt ut av megler)
500,- (Tingl.gebyr pantedokument)
500,- (Tingl.gebyr skjøte)
750 000,- (Dokumentavgift (forutsatt salgssum: 30 000 000,00))
769 140,- (Omkostninger totalt)
30 769 140,- (Totalpris inkl. omkostninger)
Overtakelse
Overtakelse etter nærmere avtale med selger.
Dersom annet ikke avtales, sendes skjøte/hjemmelsdokument for tinglysing i etterkant av overtakelse.
Beskrivelse av tomt
Eiet tomt på ca. 33 000 kvm.
Tomten er relativt flat og består i dag av skog med kalkfuruskog med lyngdominans. Tomten grenser mot LNF areal og Nordre Grasmyrvei mot nord. Tomten består av en teig.
Diverse
Etter aksept av bud, vil eiendommens salgssum bli meddelt de som ev. måtte etterspørre denne. Eiendommens salgssum vil bli offentlig tilgjengelig ved overføring av hjemmel.
Budgivning
Budgivning i forbrukerforhold
Budgivere oppfordres til å legge inn bud elektronisk. Dette gjøres på eiendommens hjemmeside på aktiv.no, ved å bruke Gi bud -knappen. Ved elektronisk budgivning, samtykker budgiver til elektronisk kommunikasjon. Eiendomsmegler skal legge til rette for en forsvarlig avvikling av budrunden og kan ikke videreformidle bud med en kortere akseptfrist enn kl. 12.00 første virkedag etter siste annonserte visning. Etter klokken 11:30 anbefaler vi akseptfrist på minimum 30 minutter. Bud bør legges inn i god tid før konkurrerende buds akseptfrist utløper. For øvrig henvises til forbrukerinformasjon om budgivning i salgsoppgaven. Oppdragsgiver er oppfordret til å ikke ta imot bud direkte fra budgiver, men å henvise budgiver videre til megler. Som kjøper vil du få forelagt kopi av budjournal. Alle bud vil bli gjort kjent for kjøper og selger i handelen. Øvrige budgivere kan be om å få en kopi av budjournal i anonymisert form.
Budgivning utenfor forbrukerforhold
Budgivere oppfordres til å legge inn bud elektronisk. Dette gjøres på eiendommens hjemmeside på aktiv.no, ved å bruke Gi bud -knappen. Ved elektronisk budgivning, samtykker budgiver til elektronisk kommunikasjon. Det anbefales at hvert bud har en akseptfrist som muliggjør en forsvarlig avvikling av budrunden. Vi anbefaler minimum 30 minutter akseptfrist. Oppdragsgiver er oppfordret til å ikke ta imot bud direkte fra budgiver, men å henvise budgiver videre til megler.
Opplysningene i salgsoppgaven er godkjent av selger. Alle interessenter oppfordres imidlertid til grundig besiktigelse av eiendommen, gjerne sammen med fagmann før bud inngis.
Ansvarlig megler
Jørn Amlie
Regulering
Aktiv Grenland
Nærområdet
Annonseinformasjon
| FINN-kode | 367153732 |
|---|---|
| Sist endret | 11. nov. 2025 07:58 |
| Referanse | 1304240031 |
Annonsene kan være mangelfulle i forhold til lovpålagt opplysningsplikt. Før bindende avtale inngås oppfordres interessenter til å innhente komplett informasjon fra meglerforetaket, selger eller utleier.




























