Bildegalleri

Luksusvilla på stor tomt i Ciudad Quesada
Nøkkelinfo
- Beliggenhet
- Innlandet
- Boligtype
- Enebolig
- Eieform
- Eier (Selveier)
- Soverom
- 4
- Boligareal
- 292 m²
- Tomteareal
- 1 058 m²
- Byggeår
- 1997
- P-plasser
- 3
Fasiliteter
Visning
Ta kontakt for å avtale visning.Om eiendommen
Innhold
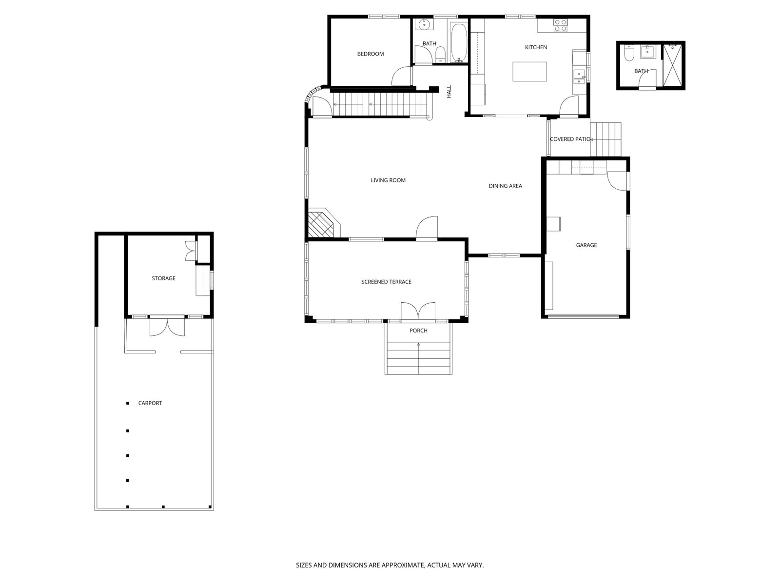
Stor luksusvilla med 4 soverom i Ciudad Quesada.
Villaen går over 3 etasjer og har totalt fire soverom og seks bad. I hovedetasjen finner du ett soverom, ett bad, en stor stue og spisestue, et kjøkken med ekstra spiseplass og en innglasset terrasse som fungerer som et ekstra oppholdsrom. Det er en koselig peis i stuen. Fra kjøkkenet og den innglassede terrassen har du direkte tilgang til hagen.
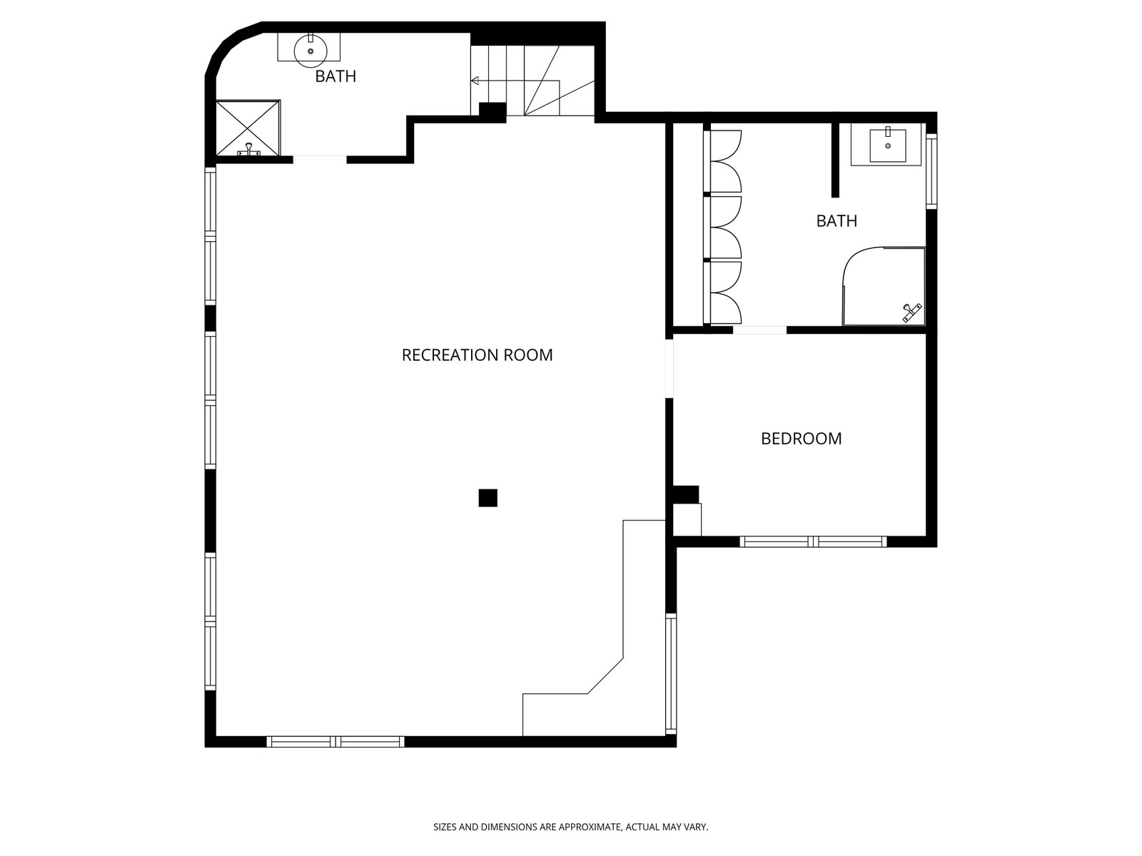
I andre etasje finner du to soverom og to bad, hvorav ett er en-suite til hovedsoverommet. Fra soverommene har du tilgang til en terrasse med utsikt over bassengområdet.
I underetasjen finner du et stort åpent rom som brukes som stue. Her er det også ett soverom og to bad (dusjrom uten toalett), hvorav ett er en-suite.
Villaen er utstyrt med aircondition, elektriske persienner, doble vinduer og alarmsystem.
Uteområde
Villaen ligger på en tomt på 1.058 m². Her finner du et stort svømmebasseng (125 m²) som nylig er renovert, samt god plass rundt bassenget til sitteområder. Videre finnes et komplett utendørs bad, en garasje med vaskerom, ekstra parkering på tomten og en stor bod i tre.
Både garasjeporten og porten til parkeringsplassen er automatiske. Den vakre hagen er pent opparbeidet og lett å vedlikeholde.
Villaen ligger i kort gangavstand til flere restauranter og kafeer.
Ta kontakt med selger for komplett informasjon
Nærområdet

Costa Blanca Bolig
Annonseinformasjon
| FINN-kode | 454068354 |
|---|---|
| Sist endret | 06. mars 2026 11:44 |
| Referanse | K-003532 |
Annonsene kan være mangelfulle i forhold til lovpålagt opplysningsplikt. Før bindende avtale inngås oppfordres interessenter til å innhente komplett informasjon fra meglerforetaket, selger eller utleier.































































