Bildegalleri

Privat och skyddat läge med 600 m till vattnet!
Nøkkelinfo
- Beliggenhet
- Ved sjøen
- Boligtype
- Hytte
- Eieform
- Selveier
- Soverom
- 3
- Boligareal
- 115 m²
- Tomteareal
- 2 494 m² (eiet)
- Byggeår
- 1968
Fasiliteter
Visning
Ta kontakt for å avtale visning.Om eiendommen
Generelt
Välkomna till Lökholmen och Kungbäck Vollen 7!
Vackert inbäddat i skogen finner ni denna härliga fastighet helt privat och fritt ifrån insyn.
På den lummiga trädgårdstomten står ett boningshus i ett plan med inredd källare uppfört 1968 om 115 + 113 kvm.
Perfekt för dig som vill komma undan och få lugn och ro, kunna höra tystnaden, men samtidigt vill ha nära till havet och vackra badplatser.
I lugnt och barnvänligt område med vacker Bohuslänsk natur finner du Lökholmen, en rofylld plats där man kan hämta energi och finna ett lugn.
På kort promenadavstånd når ni småbåtshamnen, där det även finns möjlighet till salta bad.
För de små barnen kanske krabbfiske inbjuder till lek och för de större finns Daftöland med åkattraktioner och äventyrspark på kort bilavstånd.
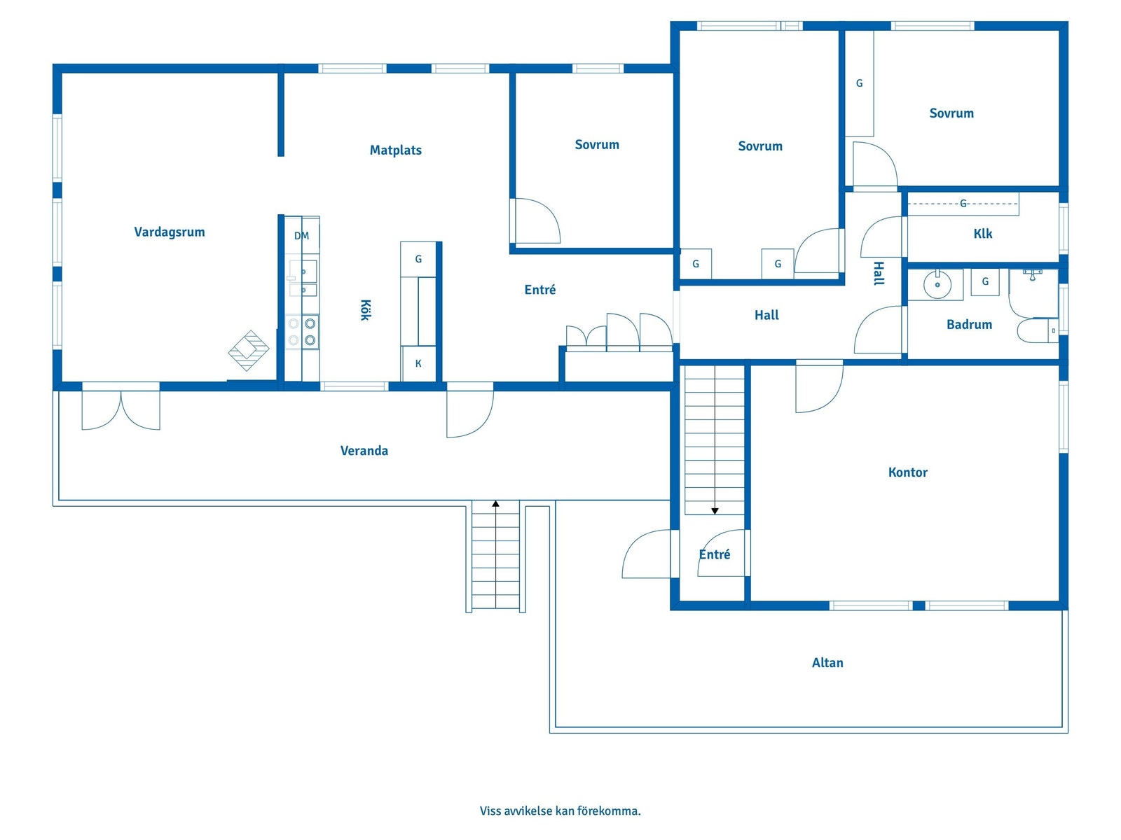
Fastigheten ligger 500 meter ifrån Kungsvik som är aktuellt med Tv2 programmet "Sommer hytta". Entréplan fördelar sig på 3-4 sovrum samt badrum, kök och vardagsrum.
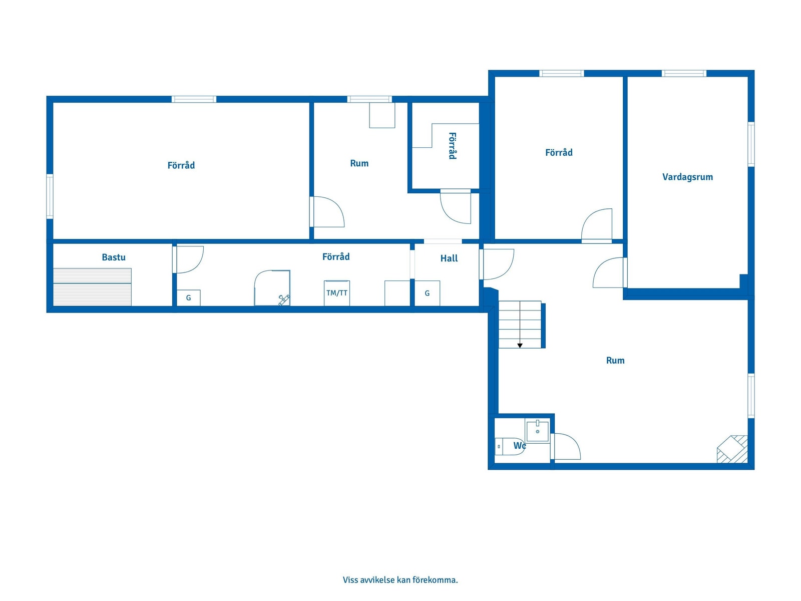
I källaren finner vi gillestuga, tvättstuga, hobbyrum samt utrymme till förvaring.
Visst renoveringsbehov föreligger, se besiktningsprotokoll för mer information.
Strax utanför Lökholmen finns Sveriges, kanske vackraste skärgård och Kosterhavets nationalpark vilken inbjuder till båt- och friluftsliv.
Med båt tar ni er enkelt ut till olika öar för bad och rekreation. Väderöarna och Smögen i söder är värda ett besök och Kosteröarna strax utanför i skärgården kan varmt rekommenderas för en dagstur.
Inåt landet ligger Krokstrand och Bullaren med magnifik turterräng, svamp- och bärskog.
Fin möjlighet för kanotpaddling och cykling. Från fastigheten är det kort gångavstånd till flera olika badstränder i bland annat Kungsvik och Stensvik. Närhet till Dynekilens golfklubb, Nordby shoppingcentrum, Svinesund och till den norska gränsen är det knappt 10 minuter.
För hjälp att kontakta Svensk bank för finansiering- ta kontakt med mäklaren.
Välkommen och kontakta fastighetsmäklare Jesper Ohlsson för mer information samt visningsbokning.
Innhold
Hall
Ljus entréhall med plats för avhängning
Kök
Kök i äldre stil i brunt, ljust laminatgolv. Utrustat med spis, fläkt, kyl/frys, diskmaskin samt diskho. Tillhörande matplats.
Vardagsrum
Vardagsrum med plats för sällskapsmöblering. Värmande kamin. Furu i golv och tak samt ljusa väggar.
Sovrum 1
Sovrum med plats för dubbelsäng samt förvaring. Ljus panel på väggarna samt laminatgolv.
Sovrum 2
Sovrum med plats för säng och förvaring, Ljus panel på väggarna samt laminatgolv.
Sovrum 3
Sovrum med plats för säng och förvaring, Ljusa väggar samt laminatgolv.
Kontor/sovrum 4
Rum som i dagsläget används som kontor med god plats för säng och förvaring för den som önskar.
Källarplan
Källaren inrymmer, gillestuga, tvättstuga, hobbyrum, wc, bastu samt utrymmen till förvaring.
Uteplats/balkong
Altan i soligt läge.
Om bostaden
Information
Boendeform
Fritidshus
Bo-/biarea
115 m²/113 m²
Tomtarea
2 494 m²
Areakälla
Areauppgifter enligt taxeringsinformationen
Upplåtelseform
Friköpt
Antal rum
6 rum, varav 3-4 sovrum
Pris
2 595 000 kr
Bredband
Fiber
TV
Fiber
Byggnad
Byggnadstyp
1 plan med källare
Vinterbonat
Ja
Byggår
1968
Fasad
Träpanel
Tak
betongpannor
Stomme
Betong/trä
Grundläggning
Källare med betongplatta
Fönster
2 och 3-glas isolerfönster.
Uppvärmning
Direktverkande el, luft/luftvärmepump och braskaminer.
Övriga byggnader/utrymmen
Oisolerat garage.
Fastighetsbeteckning
Kungbäck 1:121
Energideklaration
Energideklaration är utförd 2023-08-10
Energiklass
Renoveringar
2008 Omlagt tak med underlagsduk, läkt och betongpannor. 2010 renovering av duschrum. 2010 Omdränering av grunden. 2020 Ny vattenpump. 2021 Delar av elsystem omgjord. Sotning och utförd brandskyddskontroll utförs löpande utan anmärkning. 2025- anslutet till kommunalt V/A
Övrigt om byggnad
Övrigt om tomt
Trädgårdstomt
Allmänt om fastigheten
Adress
Kungbäck Vollen 7
Kommun
Strömstad
Område
Lökholmen
Boendeform
Fritidshus - Friköpt
Vatten & avlopp
Kommunalt vatten och avlopp.
Parkering
Garage samt plats på uppfart för flera bilar.
Planbestämmelser
Landskapsbildsskydd (1974-12-16)
Servitut och andra rättigheter
Förmån: Officialservitut Avloppsledning, 14-HOG-536.1 Förmån: Officialservitut Vattenledning, 14-HOG-536.2 Förmån: Officialservitut Vattentäkt, 14-HOG-536.3 Förmån: Officialservitut Väg, 14-HOG-536.4
Ekonomi
Pris
2 595 000 kr
Typkod
220, Småhusenhet, bebyggd
Taxeringsvärde
2 257 000 kr
Fastighetsskatt
10 425 kr
Taxeringsvärde för byggnad
1 125 000 kr
Taxeringsvärde för mark
1 132 000 kr
Taxeringsår
2021
Pantsättning
5 st om totalt 907 000 kr
Driftkostnad
60 608 kr/år
Visa fördelningUtöver drift tillkommer kostnad för fastighetsavgift/skatt: 10 425 kr.Driftkostnad inkl. ovan avgift: 71 033 kr.
Kommentar driftkostnad
I posten el ingår även kostnad för uppvärmning, elstöd om 14325 kronor är ej fråndraget. I posten övrigt finner vi kostnad för ved till eldning i eldstäder. Säljaren betalar idag för fiber 5976 kronor om året.
Personer i hushållet
2 st
Nätbolag
Ellevio
Elleverantör
Fortum
Elförbrukning
16 035 kWh/år
Salgsoppgaven beskriver vesentlig og lovpålagt informasjon om eiendommen
Se komplett salgsoppgaveNyttige lenker
Nærområdet

Länsförsäkringar Fastighetsförmedling
Annonsene kan være mangelfulle i forhold til lovpålagt opplysningsplikt. Før bindende avtale inngås oppfordres interessenter til å innhente komplett informasjon fra meglerforetaket, selger eller utleier.


























