Bildegalleri

Eksklusiv leilighet med 3 soverom i Albir
Nøkkelinfo
- Beliggenhet
- Ved sjøen
- Boligtype
- Leilighet
- Eieform
- Eier (Selveier)
- Soverom
- 3
- Tomteareal
- 155 m²
- Byggeår
- 2005
- Sengeplasser
- 3
- P-plasser
- 1
Fasiliteter
Visning
Ta kontakt for å avtale visning.Om eiendommen
Beliggenhet
Eiendommen ligger i et svært attraktivt område, med kort avstand til strand, restauranter, butikker og alle nødvendige fasiliteter. Albir er kjent for sitt rolige miljø, flotte strandpromenade og gode forbindelser til resten av Costa Blanca.
Generelt
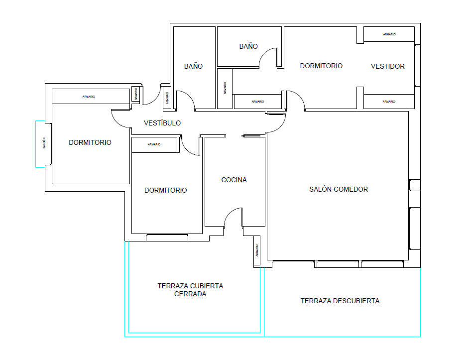
Lys og elegant leilighet på 155 m², beliggende i den ettertraktede delen av Albir. Boligen har en gjennomtenkt planløsning og egner seg utmerket som helårsbolig, ferieleilighet eller investering.
Leiligheten inneholder:
Master bedroom med walk-in garderobe og eget bad
2 gode soverom
2 bad totalt
Romslig stue med god plass til både sittegruppe og spiseplass
- Åpen og lys planløsning med rikelig naturlig lys
- Leiligheten har tilgang til oppvarmet basseng, som kan benyttes året rundt.
Ta kontakt med selger for komplett informasjon
Nærområdet
Spaniahome Albir S.L
Annonsene kan være mangelfulle i forhold til lovpålagt opplysningsplikt. Før bindende avtale inngås oppfordres interessenter til å innhente komplett informasjon fra meglerforetaket, selger eller utleier.















