Bildegalleri

Leiligheter ved Cala Finestrat, Benidorm. 1, 2 og 3 soverom
Nøkkelinfo
- Beliggenhet
- Ved sjøen
- Boligtype
- Leilighet
- Eieform
- Eier (Selveier)
- Soverom
- 1
- Bruttoareal
- 54 m²
Fasiliteter
Visning
Om eiendommen
Beliggenhet
Ocean Hills er et nytt boligkompleks med leiligheter av høy kvalitet, 1 km fra Cala de Finestrat, mellom Villajoyosa og Benidorm.
Ocean Hills Residential Complex skiller seg ut med sin moderne arkitektur, integrasjon med omgivelsene og den høye kvaliteten på alle utførelser. 80 % av materialene som brukes er av høyeste kvalitet fra Porcelanosa Group.
Leilighetene har ett, to eller tre romslige soverom og ett eller to bad med store terrasser. Stuen er lys og åpen, med store vinduer som skaper en sømløs forbindelse til terrassen. Det åpne kjøkkenet er fullt utstyrt med avanserte Bosch- eller Siemens-apparater og ferdigstilt med premium Porcelanosa-materialer. Hver detalj gjenspeiler holdbarhet og raffinement.
Residensen tilbyr to svømmebassenger, et petanqueområde, anlagte hager, spa-område, utendørs treningsstudio, badstue, tyrkisk bad og dusj. Leilighetene inkluderer også en privat parkeringsplass og bod i den underjordiske garasjen.
Dette høykvalitetsferiestedet ligger i gangavstand fra havet og omgitt av alle fasiliteter, og kombinerer moderne komfort med eksepsjonelle byggestandard. Cala de Finestrat-stranden og kjøpesenteret La Marina ligger bare 1 km unna, og et bredt utvalg av restauranter, treningssentre og butikker ligger innen gangavstand. Puig Campana Golf ligger bare 5 km unna, den sjarmerende gamlebyen i Villajoyosa ligger mindre enn 6 km unna, mens Benidorm sentrum ligger bare noen minutter unna. Alicante lufthavn ligger en praktisk 40-minutters kjøretur unna.
Generelt
MASA International ble startet i 1981 og har vokst fra den spede starten som en liten lokal eiendomsmegler for skandinaviske kunder, til en solid internasjonal organisasjon som den er i dag, uten å miste den spesielle “familiefølelsen” som våre kunder fortsatt finner beroligende.
Vi har frem til i dag hjulpet over 36.000 familier med å realisere sine drømmer om egen bolig i Spania. Se hele vårt utvalg på våre web sider.
Vi er med rette stolte av vårt rykte som et av Europas ledende eiendomsmegler selskaper og har alltid vært stolte av at vi alltid markedsfører de boligene som gir mest valuta for pengene og har et stort utvalg av boliger for salg.
Vi samarbeider også med de fleste lokale meglerne i området, og kan derfor tilby det meste av objekter som ligger for salg. Om man ønsker å finansiere via spansk bank, er vi behjelpelig med å fremskaffe lånetilbud på utvalgt prospekt!
Visningsturer
Vi arrangerer visningsturer til Spania nesten hver uke hele året. Våre turer varer i opptil 4 dager, og man betaler kun en egenandel på fra kr.1.990,- pr. person. Inkludert i denne prisen er da flybilletter, hotell i Spania, samt all transport og omvisning i Spania med skandinavisk rådgiver.
Alle våre kunder blir hjulpet individuelt og man blir ikke plassert i grupper sammen med andre, noe som gjør at man får bedre tid på de forskjellige visningene, og er mer fleksibel mht. planlagt program.
Dersom dere skal til Spania på egen hånd og ønsker å bruke noen dager sammen med oss for å se på noen av de boligene som vi kan levere, ordner vi selvsagt også det. Vi avtaler på forhånd tidspunkter, og kan også stå for innkvartering på hotell i den tiden dere er sammen med oss. Ta kontakt for å gjøre en avtale.
Dersom man ønsker å reservere en bolig hjemmefra kan vi ordne med alle nødvendige dokumenter og sørge for at man får kjøpt seg den boligen man ønsker seg.
Adkomst/Tomteforhold
Enkel adkomst fra motorveien eller kystveien N-332.
Trygghet ved kjøp.
Når du bruker så mange penger på en bolig i utlandet, er det svært viktig å velge en profesjonell og etisk organisasjon som tar seg av dine interesser på en hederlig måte.
Vårt kontor i Spania er en av få eiendomsselskaper på Costa Blanca som har blitt autorisert med ISO 9001 status, som betyr at du har fordeler av at vi har forpliktet oss til å gi våre kunder førsteklasses service.
Om du skulle ha begrenset med muligheter for å reise ned hit for å se prospekter med egne øyne, er vi selvfølgelig behjelpelig med oppdatert informasjon, nye bilder, video visninger, etc. om ønskelig!
Innhold
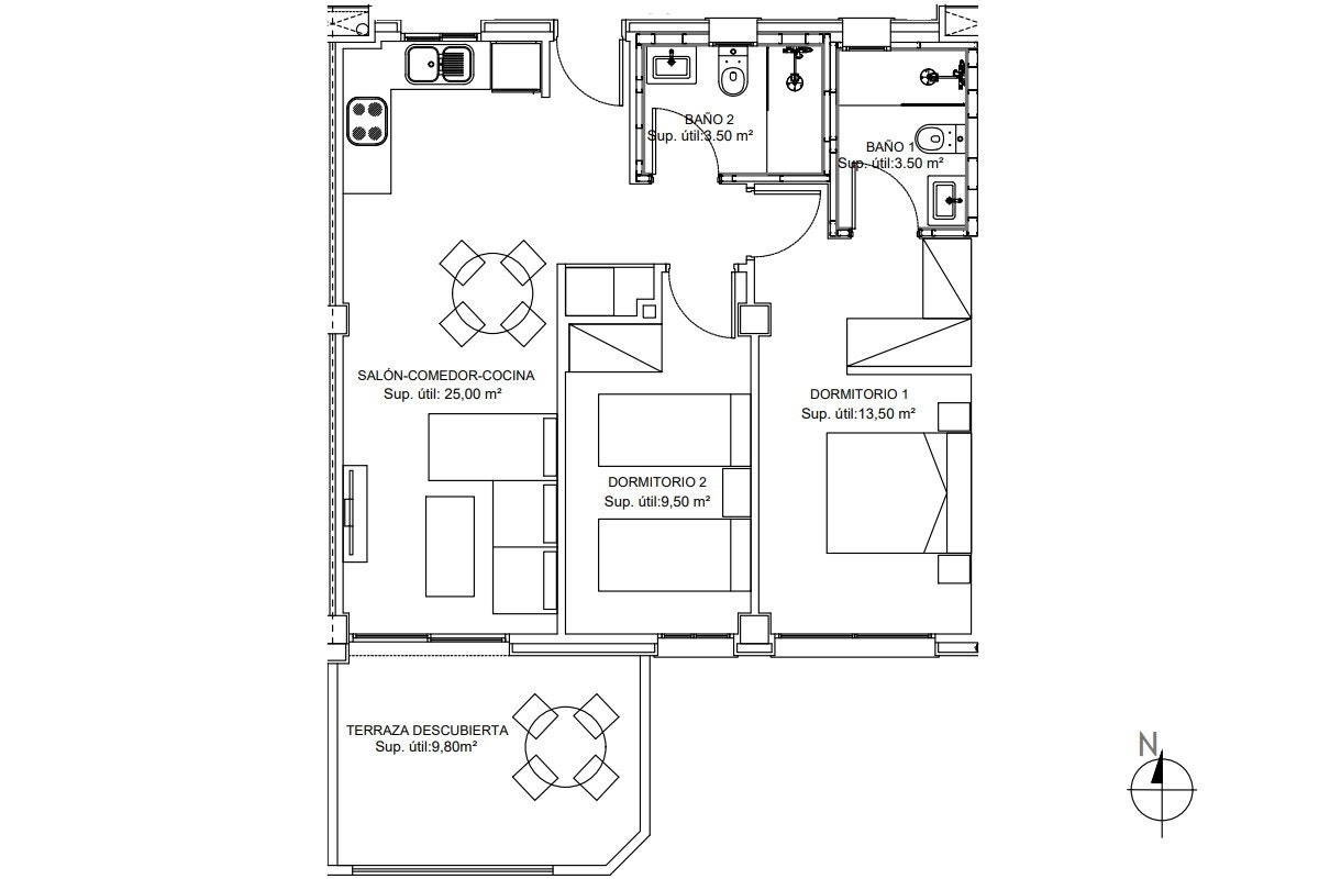
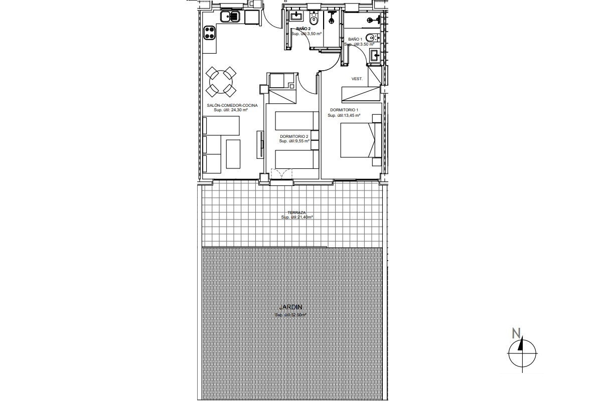
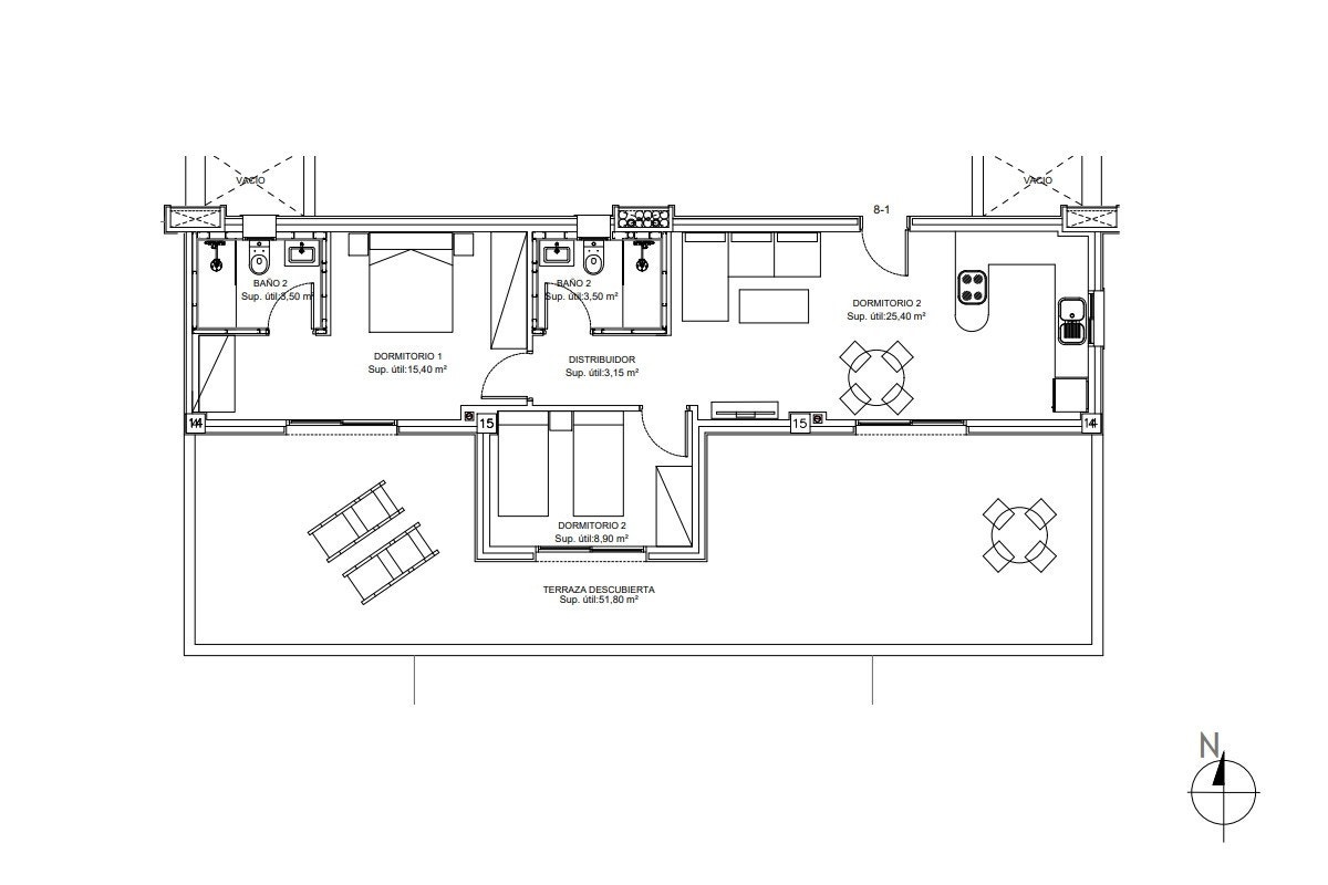
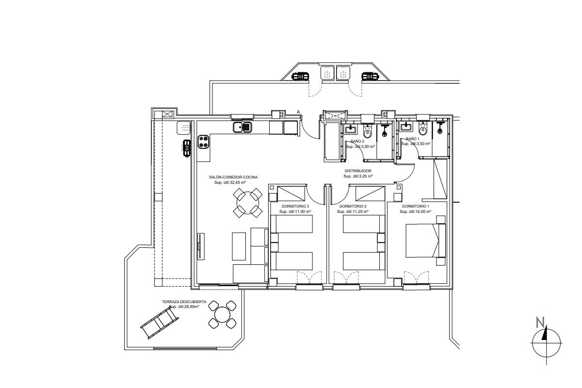
1 soverom og 1 bad, installert A/C, inkl. hvitevarer
felles basseng, terrasse 8 m2, heis.
2 soverom fra 349 500€
3 soverom fra 575 000€
Penthouse leilighet fra 720 000€
Ferdigstillelse februar 2028
På alle priser må tillegges spanske avgifter ca. 13-14%.
Standard
Topp standard!
Ta kontakt med selger for komplett informasjon
Nyttige lenker
Nærområdet
Masa International
Annonseinformasjon
| FINN-kode | 451577353 |
|---|---|
| Sist endret | 17. feb. 2026 20:25 |
| Referanse | Ocean Hills |
Annonsene kan være mangelfulle i forhold til lovpålagt opplysningsplikt. Før bindende avtale inngås oppfordres interessenter til å innhente komplett informasjon fra meglerforetaket, selger eller utleier.






















