Bildegalleri

Odlingsgatan 23, Trädgårdsstaden Etapp 3, Skövde
Nøkkelinfo
- Boligtype
- Enebolig
- Eieform
- Eier (Selveier)
- Soverom
- 4
- Boligareal
- 163 m²
- Tomteareal
- 450 m² (eiet)
- Rom
- 6
Fasiliteter
Visning
Ta kontakt for å avtale visning.Om eiendommen
Beskrivning av bostaden
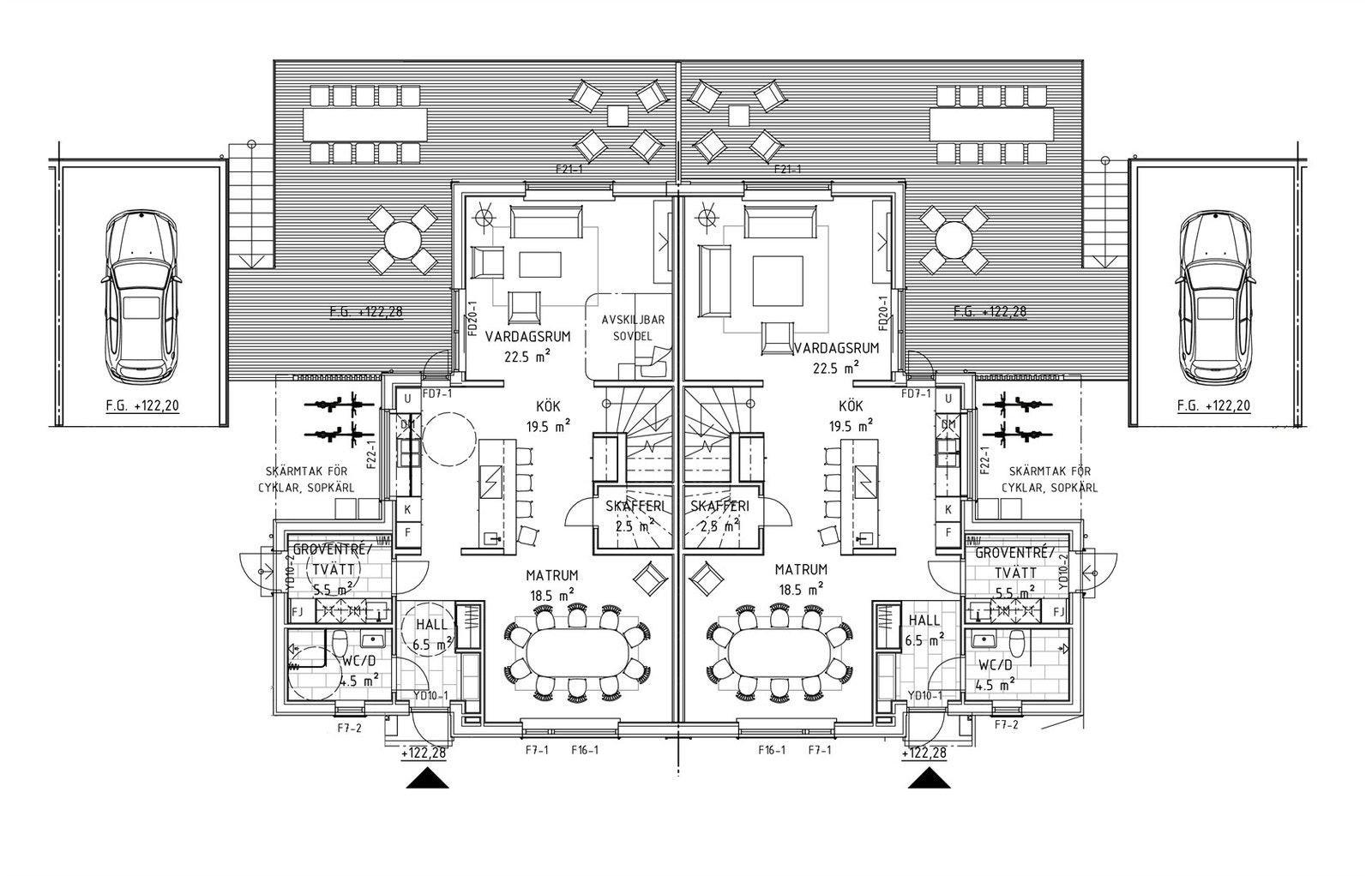
Välkommen till ett genomtänkt parhus där kvalitet, design och livskvalitet står i centrum. Här erbjuds bostäder med hög standard och generösa ytor, skapade för dig som vill ha gott om plats för umgänge, familjeliv och vardagens alla stunder – utan att kompromissa med enkel skötsel och tid över till det som verkligen betyder något.
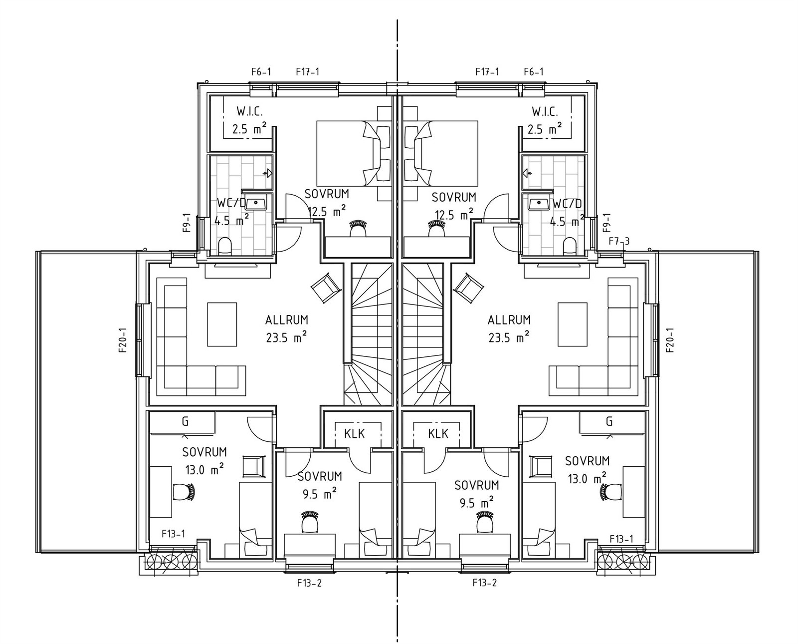
Husen är fördelade över två välplanerade våningsplan och rymmer allt man kan önska sig i ett modernt hem. Med två sällskapsrum och tre sovrum skapas ett flexibelt boende som enkelt anpassas efter livets olika faser och behov, fyllt av smarta och unika lösningar.
De arkitektritade husen är specifikt utformade för platsen och tar fullt vara på de fria vyerna ner mot Mellomkvarnsbäcken och den strandskyddade ängen. Entréerna i ek, skapade med lokalt hantverk i dörrar och panel, ger ett varmt och exklusivt första intryck – en subtil design som blivit ett tydligt signum för SAMBO.
Genomtänkta arkitektritade detaljer lyfter exteriören och gör att husen verkligen sticker ut, belägna på ett av områdets absolut bästa lägen. Köken är specialframtagna för projektet och präglas av harmoniska naturtoner, rena skandinaviska linjer och en elegant finish i rökt ek – allt med fokus på hög kvalitet och tidlös estetik.
Invändigt fortsätter den lugna och harmoniska känslan genom noggrant utvalda färger och material från golv till vägg. Badrummen är helkaklade i naturinspirerade toner och tvättstugan är utrustad med slitstarkt klinkergolv som kombinerar funktion med stil.
Samtliga rum bjuder på generöst ljusinsläpp och härlig takhöjd. De stora fönsterpartierna mot det rymliga altandäcket och de öppna ängarna på baksidan skapar en fantastisk rymd och suddar ut gränsen mellan inne och ute – perfekt för både vardag och fest.
Observera att bilderna är illustrationer och inte alltid visar standardutförande. Vissa detaljer kan komma att avvika från verkligheten.
Tillval är möjliga enligt separat tillvalslista i samråd med entreprenören.
Ett boende för er som värdesätter kvalitet, arkitektur och genomtänkt design. Här erbjuds rymliga och välplanerade parhus om 163 kvm, där varje detalj har fått ta plats. Husen håller genomgående hög standard, bjuder på spännande planlösningar och generös takhöjd om 2,7-3,2 meter som skapar rymd och ljus.
Dessa drömhem har vuxit fram genom lokala samarbeten och unika detaljlösningar, och är arkitektritade specifikt för platsen. Baksidorna är något alldeles extra – med skyddade uteplatser i soligt söderläge som vetter mot strandskyddad äng, och bäck.
Ett unikt hus i ett lika unikt läge.
Kök
Köket är placerat mitt i huset och ger skäl till att få kallas husets hjärta. Det exklusiva köket skapas av en lokal hantverkare och blir unikt för just detta projekt. Platsbyggda ekkök från närliggande skogar varvas med skåpsluckor i harmoniskt rökt ek och integrerade vitvaror av hög kvalitet. Inbyggnadsugn och micro monterade i högskåp för bekväm arbetshöjd. Stor köksö med stenskiva, utslagsvask, spishäll med integrerad fläkt och givetvis plats för umgänge.
Här finns vidare en specialritad vin-/kaffebar i lokalproducerad rökt ek som tagits fram från samma lokala hantverkare.
Närproducerat, hållbart och lyxigt.
Badrum
I entréplan finns ett helkaklat badrum med duschplats och handbyggd kommod i rökt ek. Möjlighet till badkar som tillval.
En trappa upp finns ett wc/duschrum med klinkergolv, kaklade väggar i duschplats samt målade väggar för kreativa kulörombyten. Vägghängd WC och kommod med lådor.
Tvättstuga/Groventré
Separat tvättstuga med egen praktiskt entré/groventre.
Här finns tvättmaskin och torktumlare under bänkskiva med underlimmad diskho och goda förvaringsmöjligheter.
Trädgård
Trädgården är färdigställd med omsorgsfull finplanering och erbjuder anlagd gräsmatta, häckar samt utvalda ytor för att skapa de "gröna rummen". Gångar/trappor är genomtänkt placerade och infarten är asfalterad för ett stilrent och lättskött helhetsintryck.
Carport vid sidan av huset.
Kreativa kundval - kreativt pris
SAMBO brinner för innovativa lösningar och kreativa idéer. Flexibilitet är en viktig pusselbit i deras husbyggen. SAMBO kan nu erbjuda er kunder möjligheter till egna idéer och kreativa lösningar, där varje hus i projektet kan bli helt unikt!
Alternativa planlösningar och tillval kan göras i samråd med entreprenören.
Sambo AB instagram
Följ gärna Sambo AB på Instagram för mer inspiration #sambo_ab
Allmänt om fastigheten
VA: Kommunalt VA
Allmänt om området
Trädgårdsstaden är ett nytt bostadsområde där startskottet gick i november 2009 och stadsdelen kommer att byggas ut i etapper. När den är helt färdigställd ger den plats åt totalt 1 200 bostäder och uppemot 4 000 människor, handel och olika former av kommunal service.
Genom att utforma stadsdelen enligt trädgårdsstadens modell öppnas möjligheter för en rad olika boendeformer. I stadsdelen kommer det finnas flerbostadshus, rad- och parhus som hyresrätter och bostadsrätter samt möjligheter till att bygga egen villa på friköpt tomt. Ett boende för alla med omedelbar närhet både till stadens fördelar och till naturens möjligheter till rekreation.
Trädgårdsstaden ligger öster om Östra leden, 5 km från Skövde centrum och är stadens starkast växande småhusområde. Stadsdelen byggs i etapper och beräknas vara helt utbyggd år 2025. När den är färdig ska det rymmas 1 400 bostäder och närmare 4 000 boende samt handel och olika former av kommunal service
Skövde är en trygg och charmig stad med vacker natur och fina friluftsområden inpå knutarna. Det är också en stad i stark utveckling där du kan hitta boenden av alla slag. Kommunen har drygt 55 000 invånare.
Högskolan och två regementen attraherar ständigt unga invånare, något som märks i det stora utbudet av restauranger, caféer och uteliv. Runt Högskolan etableras dessutom många nya företag, inte minst inom dataspelindustrin där Skövde tillhör de främsta i landet.
Skövde är den största handelsstaden i Skaraborg. Här finns gott om butiker både i centrum och i flera köpcentra utanför stadskärnan. Den kulturintresserade har tillgång till Sveriges äldsta kulturhus - en fantastisk byggnad med både teater, konsthall, konstmuseum, bibliotek och restaurang.
Kommunikation
Att resa med kollektivtrafik till Trädgårdsstaden från Skövde Resecentrum tar knappt 20 minuter. Bussarna går med 20-minuters intervaller.
Övrigt
Direkt väster om Trädgårdsstadens första etapp finns Stallsikens handelsområde. I detta område finns flertalet etablerade aktörer, restaurang och mataffär. I närområdet ligger också en ridskola.
Ta kontakt med selger for komplett informasjon
Nærområdet
Fastighetsbyrån Anders Ahlm AB
Annonseinformasjon
| FINN-kode | 450572337 |
|---|---|
| Sist endret | 11. feb. 2026 09:21 |
| Referanse | 5220-23279 |
Annonsene kan være mangelfulle i forhold til lovpålagt opplysningsplikt. Før bindende avtale inngås oppfordres interessenter til å innhente komplett informasjon fra meglerforetaket, selger eller utleier.
















