Bildegalleri

Ny Fase! Attraktiv leilighet med 3 soverom | Svært populær beliggenhet - kun 400 m fra sjøen
Nøkkelinfo
- Beliggenhet
- Ved sjøen
- Boligtype
- Leilighet
- Eieform
- Eier (Selveier)
- Soverom
- 3
- Bruttoareal
- 100 m²
- Byggeår
- 2025
Fasiliteter
Visning
Om eiendommen
Beliggenhet
Playa Flamenca er et meget attraktivt og populært boligområdet i kystkommunen Orihuela Costa, som ligger 4 km sør for Torrevieja og 50 km fra Alicante flyplass. Området har solid infrastruktur med barnehager, skoler, idrettsanlegg, restauranter, matbutikker og et av et av Spanias største utendørs kjøpesentre (Zenia Boulevard) like i nærheten. Hver lørdag fra 10:00 til 14:00 holdes det marked langs gatene i Playa Flamenca, noe som absolutt bør oppleves. Gå mellom salgsbodene, kjenn på stemningen, de fremmede luktene og alle fargene! Området er ellers kjent for sine kritthvite sandstrender med “blå flagg” stempel, en indikasjon på blant annet høy vannkvalitet.
Generelt
Spania1 har gleden av å presentere dette fantastiske prosjektet kun 400 m fra sjøen og mange av de flotte strendene i området.
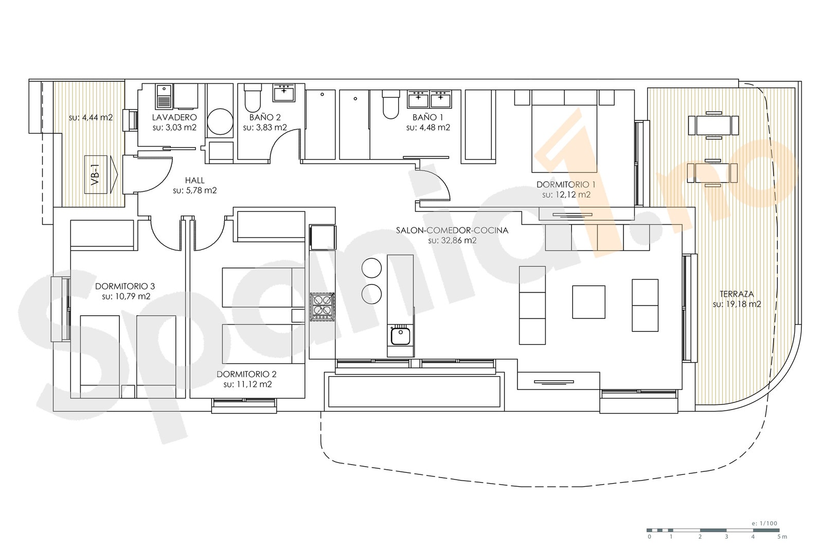
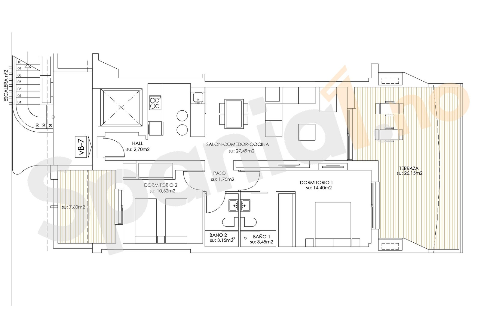
Du kan du velge mellom leiligheter med 2, 3 eller 4 soverom. Alle leilighetene har en åpen løsning mellom kjøkken og stue, med direkte utgang til terrassen fra stuen. Terrassen er sørvendt og har gode solforhold hele dagen. Hovedsoverommet har privat bad og egen utgang til terrassen. Like ved hovedinngangen er det et vaskerom med plass for vaskemaskin. Toppleilighetene har privat terrasse og leilighetene på bakkeplan har privat hage. Alle leilighetene har privat garasjeplass og bod.
Om boligen
- 3 soverom
- 2 bad
- Terrasse 24 m2
- Bod
- Parkeringsplass
Fellesområde
- 3 basseng (1 med oppvarmet vann)
- Treningsstudio
- Badstue
Priser i prosjektet
Leilighet med 2 soverom fra 325.000 €
Leilighet med 3 soverom: 395.000 €
Leilighet med 4 soverom: 499.000 €
Pris pr januar 2026
Avstander
- Strand ca. 400 m
- Supermarked ca. 400–500 m
- Restauranter og servicetjenester ca. 300–600 m
- La Zenia Boulevard ca. 2,5 km
- 45 minutter til Alicante flyplass
Vil du vite mer?
Ta kontakt med oss i Spania1 for mer informasjon.
Vi gleder oss til å hjelpe dere videre i prosessen!
Visning
Ønsker dere å se denne og andre anbefalinger fra Spania1?
Bli med på visningstur - vi dekker 3 netter på hotell.
Alle våre meglere er norske. Ingen kjøpepress.
Adkomst/Tomteforhold
OM SPANIA1 AS
SPANIA1 AS er et norsk aksjeselskap med kontor i Norge og Spania.
Vi selger nye boliger direkte fra utbygger, og er en ledende aktør i Norge.
Vi ser til at det blir gitt bankgaranti på alle nye prosjekter.
Hovedpunkter
- Kjøp direkte fra utbygger
- Bankgaranti på alle nybygg
- Vi har kontor i Norge, Alicante og Malaga
- Norske erfarne meglere
- Oppfølging - fra kjøp til innflytting
- Meget gode referanser fra kunder
- Hjelp til utleie av boligen
- 80% finansiering i euro
Den beste investeringen dere kan gjøre - er å velge riktig megler!
Se våre referanser på www.spania1.no
KJØP DIREKTE
SPANIA1 er IKKE et fordyrende mellomledd, og dere kjøper direkte hos utbygger.
Vi er et bindeledd mellom dere, spansk advokat, og utbygger.
Dere får god hjelp fra kjøp til innflytting - uten at det koster noe ekstra.
AVGIFTER I SPANIA
Samlede offentlige avgifter ved kjøp av bolig i Spania er ca 13-14%.
Les mer om avgifter på vår webside.
UTLEIE
Boligen i Spania kan full-finansieres ved utleie.
Vi har et eget servicekontor som ordner med alt det praktiske.
Mange velger å annonsere selv, men bruker våre kontakter i Spania for vask og renhold. Dette tar vi ikke betalt for. Les om utleie på vår webside.
TIPS
Bruk én megler (ikke flere) til å vise dere ALLE aktuelle prosjekter.
Da rekker vi å bli kjent med deres behov, og grunnlaget for å finne drømmeboligen øker.
SPANIA1 vil alltid forhandle frem beste avtale på vegne av våre kunder!
Salgsoppgaven beskriver vesentlig og lovpålagt informasjon om eiendommen
Se komplett salgsoppgaveNærområdet
SPANIA1 AS - Norsk firma - for DIN TRYGGHET
Annonseinformasjon
| FINN-kode | 449650743 |
|---|---|
| Sist endret | 05. feb. 2026 11:19 |
| Referanse | SP1-57896 |
Annonsene kan være mangelfulle i forhold til lovpålagt opplysningsplikt. Før bindende avtale inngås oppfordres interessenter til å innhente komplett informasjon fra meglerforetaket, selger eller utleier.
























