Bildegalleri

Eksklusiv toppleilighet med havutsikt i Monte Carrera, Arguineguín
Arguineguin, Gran CanariaNøkkelinfo
- Beliggenhet
- Ved sjøen
- Boligtype
- Leilighet
- Soverom
- 3
- Bruksareal
- 216 m²
- Byggeår
- 2013
Fasiliteter
Visning
Ta kontakt for å avtale visning.Om eiendommen
Beliggenhet
Arguineguin ligger sørvest på Gran Canaria i en vik, og er kjent for mange soldager og lite vind.
Arguineguin er en koselig fiskelandsby som kan by på flotte restauranter, butikker, koselige cafeer, stor båthavn og flere vakre sandstrender. Her holder temperaturen i havet seg godt året rundt, med mellom 19 og 23 grader.
I nærområdet finner du flere gode restauranter – mange kjent for deilig sjømat, matbutikker (supermercados) og flere strender. Du har kyststi til en av Gran Canarias fineste strender, og fjellene som omkranser Arguineguin byr på turmuligheter. Ellers er det kort avstand til andre byer på øya, både med bil, buss og båt. Gran Canaria er også kjent for sine golfbaner og fine rekreasjonsområder.
Innhold
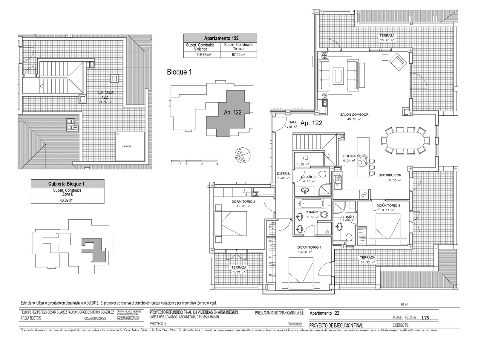
Velkommen til en luksuriøs og svært attraktiv toppleilighet beliggende i det ettertraktede Monte Carrera-komplekset i Arguineguín. Dette er en sjelden eiendom med en enestående beliggenhet, spektakulær havutsikt og solforhold fra morgen til kveld.
Leiligheten ble oppført i 2013 og har et areal på 216 m². Boligen strekker seg over hele byggets front, noe som gir maksimal utnyttelse av både utsikt og lys. Fra de romslige terrassene kan du nyte panoramautsikt over havet fra flere vinkler, samtidig som solforholdene er optimale gjennom hele dagen.
Boligen består av tre romslige soverom, alle med direkte utgang til terrasse. To av soverommene er en suite, og sammen med et ekstra komplett bad gir dette totalt tre bad. Den åpne stue- og kjøkkenløsningen fremstår lys og moderne, med høyt under taket, store vindusflater og direkte adkomst til flere terrasser. Det stilrene kjøkkenet med sentral kjøkkenøy skaper en funksjonell og sosial ramme for både hverdag og selskap.
Fra hovedetasjen leder en intern trapp opp til den private takterrassen – et helt unikt uterom med imponerende utsikt over havet og området rundt. Her finnes rikelig plass til soling, avslapning eller etablering av en eksklusiv lounge-sone, perfekt for å nyte de lange solrike dagene og de rolige kveldene.
Boligen disponerer i tillegg flere store terrasser i hovedetasjen, alle med utmerkede solforhold og god plass til utendørs måltider og sosialt samvær. Solen følger eiendommen fra morgen til kveld, noe som gjør utearealene til en naturlig forlengelse av boligen.
Leiligheten inkluderer privat parkeringsplass og bod, som gir både komfort, trygghet og praktiske oppbevaringsmuligheter.
Monte Carrera er et veldrevet og eksklusivt sameie med høy standard og fokus på kvalitet, trivsel og trygghet. Her tilbys blant annet et oppvarmet svømmebasseng med ca. 28 grader året rundt, resepsjon, vaskeri samt vaktmestertjenester som sørger for løpende vedlikehold og praktisk hjelp i hverdagen. Dette gjør eiendommen like velegnet som helårsbolig som feriebolig eller investeringsobjekt.
Mer informasjon om sameiet, fasiliteter og drift finner du på Monte Carreras offisielle nettside:
https://montecarrera.info/nn/hjem/
Dette er en sjelden mulighet til å sikre seg en bolig med høy standard i ett av Arguineguíns mest ettertraktede og prestisjefylte boligområder – en eiendom som kombinerer luksus, komfort, utsikt og beliggenhet på en fremragende måte.
Standard
Standard: Meget god standard
Syden Eiendom Properties S.L:
Syden Eiendom Properties SL har lokale ved første rundkjøringen i Arguineguin. Vi har spesialisert oss på det Skandinaviske markedet og ønsker dere hjertelig velkommen.
Vi har 20 års erfaring innen reiseliv, kultur, den kanariske mentaliteten samt spanske og kanariske lover, Dermed kan vi tilby en trygg handel for dere som ønsker å realisere boligdrømmen på Gran Canaria.
Dette materialet baseres på informasjon fra tredjepart. Syden Eiendom Properties S.L. er ikke ansvarlig for skrivefeil eller feilinformasjon fra tredjepart. Priser, spesifikasjoner, tilgjengelighet og vilkår for tilbud kan endres uten forvarsel.
Syden Eiendom anbefaler grundig gjennomgang av boligen og eventuelle feil og mangler før overskjøting da det er meget vanskelig å kreve utbedring eller lignende i ettertid. Syden Eiendom tar ikke ansvar ved tvister etter at handelen er gjennomført.
Alle priser er i euro. Det tilkommer ca. 10% i skatter og avgifter i tillegg til kjøpesum.
Ta kontakt med selger for komplett informasjon
Nærområdet
Syden Eiendom Properties SL
Annonsene kan være mangelfulle i forhold til lovpålagt opplysningsplikt. Før bindende avtale inngås oppfordres interessenter til å innhente komplett informasjon fra meglerforetaket, selger eller utleier.
































































