Bildegalleri

Jakobsgatan 11 A, Centralt, Arvika
Nøkkelinfo
- Boligtype
- Leilighet
- Eieform
- Andel
- Soverom
- 0
- Boligareal
- 67 m²
- Rom
- 2
Fasiliteter
Visning
Ta kontakt for å avtale visning.Om eiendommen
Beskrivning av bostaden
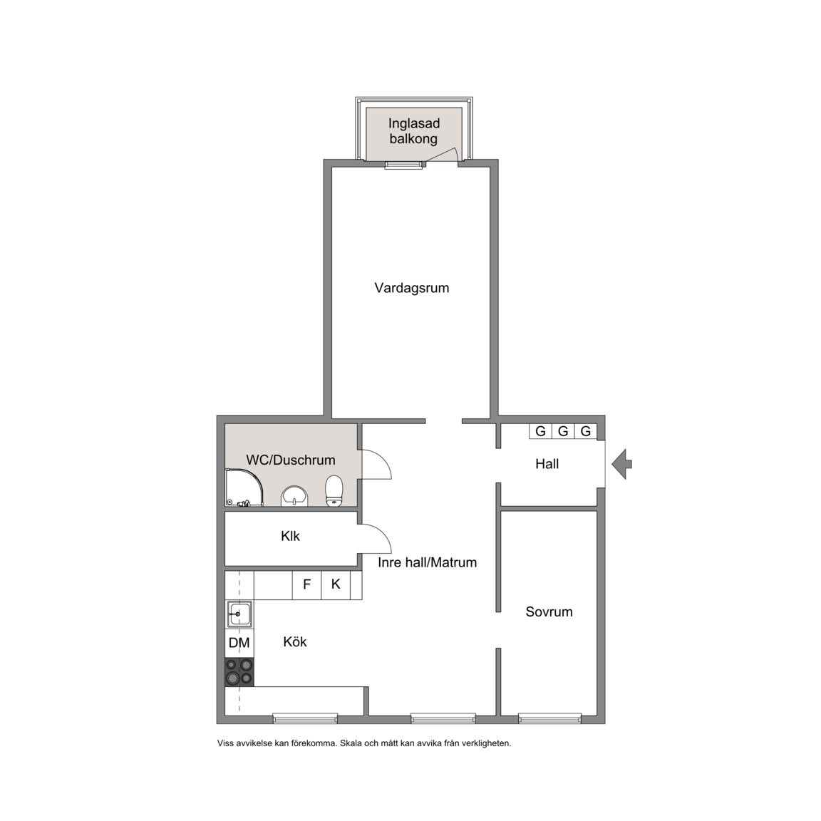
Här ges nu chansen att förvärva en ljus och trevlig bostadsrätt med inglasad balkong! Bostaden erbjuder 67.2 kvm och är belägen på våning två av tre i ett hus med hiss. Här möts du av en hall med gott om plats för avhängning och förvaringsmöjligheter, en inre hall som fungerar som matrum och som knyter samman bostadens övriga rum och utrymmen. I anslutning till den inre hallen nås köksdelen med maskinell utrustning bestående av kyl, frys, spis, fläkt och diskmaskin. Sovrummet erbjuder plats för dubbelsäng, WC/duschrum, praktisk klädkammare samt vardagsrum med plats för både soffgrupp och matsalsmöbel. Härifrån nås den inglasade balkongen i soligt söderläge, en perfekt plats att njuta av utsikten över den trevliga innergården och stadens takåsar.
Föreningen Brf Snickaren präglas av trygghet och stabilitet vilket ger en bekymmersfri boendesituation. De installerade solcellerna ger låga elkostnader till de boende i föreningen och det finns gemensamma utrymmen så som tvättstuga (2 st), cykelförråd, hobbylokal, grillplats på innergården och en övernattningslägenhet. Till lägenheten följer ett förråd och ett matkällarförråd.
Bostaden är belägen med närhet till restauranger, butiker, service, kommunikationer och nöjen vilket gör vardagen enkel och bekväm. I närområdet finns flera grönområden. Den fina stadsparken och Styckåsskogen som erbjuder fina motionsleder och ett utegym. Perfekt för den som vill ha allt inom räckhåll!
Varmt välkommen att boka dig på visning!
Entréhall
Välkommen in! Vi möts av en hall med plats för avhängning av ytterkläder samt förvaringsmöjligheter i form av garderober. Laminatgolv och tapetserade väggar.
Matrum/inre hall
Vidare in i bostaden nås ett matrum/ inre möblerbar hall. Med laminatgolv och tapet. Från detta rum nås samtliga rum som inryms i lägenheten.
Köksdel
I öppen anslutning mot matrummet/den inre hallen nås köket med laminatgolv och tapet på väggarna, kakel ovanför arbetsytor. Den maskinella utrustningen består av kyl, frys, spis, fläkt och diskmaskin.
Sovrum
Med plats för dubbelsäng. Laminatgolv och tapet på väggarna varav en fondvägg.
Vardagsrum
Rymligt vardagsrum med parkettgolv och tapet. Här nås den trevliga inglasade balkongen mot innergården i söderläge.
Klädkammare
Från matrummet/den inre hallen nås en praktisk klädkammare.
WC/duschrum
Med plastmatta på golvet och kakel på väggarna. Utrustning bestående av WC, handfat, dusch och handdukstork. Förberett för tvättmaskin.
Övrigt
Tillträde: Möjlighet finns till snabbt tillträde
Allmänt om fastigheten
Övrigt: Till lägenheten hör vindsförråd och matkällare.
Cykelrum finns.
Två tvättstugor finns i byggnaden.
Övernattningslägenhet med fyra bäddar finns att hyra.
Garageplats samt p-plats med motorvärmare har båda separat kö.
Allmänt om området
Bebyggelsen i stadskärnan är en blandning av byggnader från början av 1800-talet fram till nutid. I centrum finns mataffärer, restauranger, caféer och shopping.
Kommunikation
Arvikas järnvägsstation har regelbundna avgångar till bland annat Karlstad, Oslo och Stockholm. Bra busskommunikationer inom Arvika och till närliggande orter.
Parkering
P-skiva gäller i centrala Arvika. Vid varje parkering finns information om hur länge man får stå. P-skiva finns att hämta i bla. stadshuset, Arvika Turistbyrå samt Arvika Bibliotek.
Övrigt
Arvika är omgivet av vatten och är en mycket populär sommarstad. Här finns trevliga butiker och restauranger i de pittoreska kvarteren med anrika byggnader. En verklig oas är Stadsparken med välskötta grönområden och blomsterarrangemang. Den kulturelle finner guldkorn i stadens många skulpturer, muséer och gallerier. Kulturevenemangen avlöser varandra året om med välbesökta musikfestivaler och konstutställningar.
I Arvika finns Sveriges innersta hamn och härifrån kan den båtfrälste ta sig ut i världshaven via Vänern och Göta kanal. I hamnen kan du njuta av det myllrande båtlivet eller slå dig ner på en av hamnkrogarna.
Arvika erbjuder välskötta bostadsområden med både villor och bostadsrätter. Den vackra naturen får du på köpet.
Ta kontakt med selger for komplett informasjon
Nærområdet
Fastighetsbyrån Arvika
Annonseinformasjon
| FINN-kode | 446441093 |
|---|---|
| Sist endret | 03. feb. 2026 10:47 |
| Referanse | 5310-33190 |
Annonsene kan være mangelfulle i forhold til lovpålagt opplysningsplikt. Før bindende avtale inngås oppfordres interessenter til å innhente komplett informasjon fra meglerforetaket, selger eller utleier.









































