Bildegalleri

SAINT-RAPHAËL – Valescure: 3-romsleilighet med terrasse, basseng og garage
Nøkkelinfo
- Boligtype
- Leilighet
- Soverom
- 2
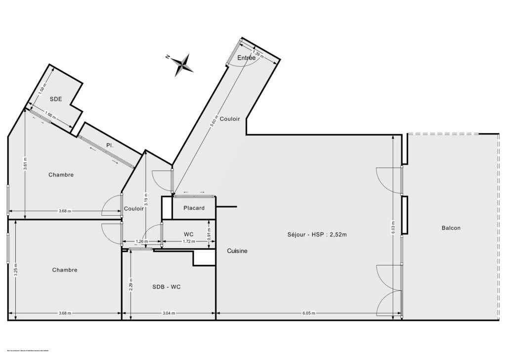
- Grunnflate
- 79 m²
- Boligareal
- 79 m²
- Byggeår
- 2016
- Rom
- 3
Fasiliteter
Visning
Ta kontakt for å avtale visning.Om eiendommen
SAINT-RAPHAËL – Valescure: 3-romsleilighet med terrasse, basseng og garage
I det populære området Valescure, nær golfbaner og Esterel-fjellene ligger denne 80 m² leiligheten i rolige og grønne omgivelser.
Leiligheten befinner seg i en residens med svømmebasseng solarium og park og bare 10 minutter fra strendene.
Den har en romslig stue med et sørvestvendt lys og et fullt utstyrt åpent kjøkken. 2 soverom hvorav ett er en master suite med eget dusjrom samt et separat bad og toalett.
En stor terrasse uten innsyn, en lukket garasje, en innredet kjeller og en dekket parkeringsplass følger med. Johan LANIER +33 6 52 24 47 59
Ta kontakt med selger for komplett informasjon
Nyttige lenker
Nærområdet
Riviera Keys
Annonseinformasjon
| FINN-kode | 445201923 |
|---|---|
| Sist endret | 24. jan. 2026 03:01 |
| Referanse | 86402019 |
Annonsene kan være mangelfulle i forhold til lovpålagt opplysningsplikt. Før bindende avtale inngås oppfordres interessenter til å innhente komplett informasjon fra meglerforetaket, selger eller utleier.









