Bildegalleri

NYHET | Eksklusivt villaprosjekt i Nueva Andalucía, Marbella | Privat kino, SPA...
Nøkkelinfo
- Beliggenhet
- Ved sjøen
- Boligtype
- Enebolig
- Soverom
- 5
- Bruttoareal
- 862 m²
- Boligareal
- 544 m²
- Tomteareal
- 1 014 m²
- P-plasser
- 2
Fasiliteter
Visning
Om eiendommen
Beliggenhet
MARBELLA, NUEVA ANDALUCIA
Ligger i det ettertraktede og eksklusive Las Brisas-området i Nueva Andalucía, Marbella
En av Costa del Sols mest prestisjefylte boligsoner, nær golfbaner, restauranter og Puerto Banús
Malaga flyplass: 40 min
Strand: 10 minBestill visningstur med oss nå, så byr vi på tre dagers opphold på hotell for to personer!
Generelt
BOLIGPROSJEKT
Forventet ferdigstillelse tredje kvartal 2026.
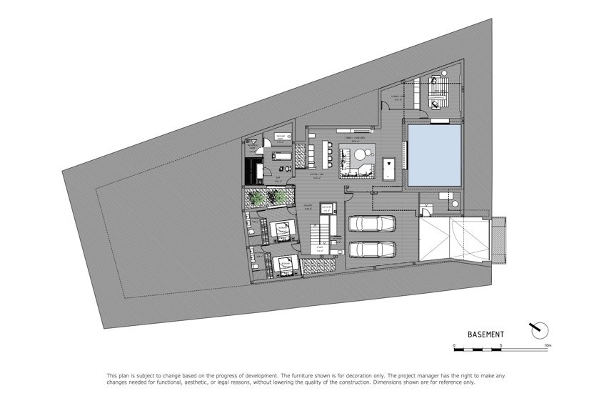
Tomt og areal
Tomtestørrelse: ca. 1 015 m²
Totalt bebygd areal: ca. 545 m²
Bruksareal: ca. 451 m²
Gjennomført og gjennomtenkt planløsning med fokus på luksus og funksjonalitet
Soverom og bad
5 romslige soverom, alle med private en-suite bad
Hovedsoverom utformet som en privat suite med:
Eksklusivt bad
Walk-in garderobe
Utsikt mot frodige hageområder
To ekstra gjestetoaletter, ett i hver etasje
Moderne og elegant arkitektur med middelhavsinspirasjon
Åpen planløsning som skaper sømløs overgang mellom inne- og uteområder
Store gulv-til-tak vinduer gir rikelig med naturlig lys
Stilren kjøkkenløsning med hvitevarer av topp kvalitet, åpent mot stue og spisestue
Ideell bolig for både hverdagsliv og sosiale sammenkomster
Uteområder
Store terrasser perfekt for avslapning og underholdning
Privat svømmebasseng
Utekjøkken – ideelt for sommermiddager og selskaper
Nøye anlagt hage som gir privatliv, ro og eksklusiv atmosfære
Velvære og fasiliteter
Fullt utstyrt treningsrom
Spa-avdeling med badstue og hammam
Kinorom / games room
Heis som forbinder alle etasjer og gir maksimal komfort
Oppsummering
En enestående nybygg-villa som kombinerer moderne luksus, eleganse og komfort
Perfekt for deg som ønsker en eksklusiv livsstil i et av Marbellas mest ettertraktede områder
En bolig som representerer det ypperste innen moderne luksus på Costa del Sol
Kontakt oss for:
- Privat visningstur
- Prosjektprospekter
- Plantegninger
- Prisinformasjon
- Oppdatert tilgjengelighet
Om oss:
- 20 år på solkysten
- Autorisert og godkjent meglerfirma
- Spesialiserer oss i formidling av nybygg, investeringer i nye prosjekter
- Salg av nye og brukte boliger
- Full service ved kjøps- og salgstransaksjoner utført av et velrenommert advokatfirma.
- Oversettelse av dokumenter.
- Megling i forhandlinger.
- Innredning og Renovering
Hovedpunkter:
- Direkte kjøp fra utbygger uten fordyrende mellomledd
- Bankgaranti for alle nybygg
- Vi er til stede for under og etter i kjøpeprosessen
- Mulighet for opp til 70% finansiering i euro
Kjøpeprosessen:
- Kjøp direkte fra utbygger gjennom Select Marbella Property utenom ekstra omkostninger
- Vi fungerer som bindeledd mellom kjøper, spansk advokat, og utbygger
- Full støtte fra kjøp til innflytting uten ekstra kostnad
Avgifter i Spania:
- Samlede offentlige avgifter ved boligkjøp ca. 13-14%
- Detaljert informasjon om avgifter tilgjengelig på vår nettside
For mer informasjon og referanser, besøk vår nettside: www.selectmarbellaproperty.com
Adkomst/Tomteforhold
Innhold
Standard
Ta kontakt med selger for komplett informasjon
Nærområdet
SELECT MARBELLA PROPERTY - 20 ÅR PÅ SOLKYSTEN
Annonseinformasjon
| FINN-kode | 443542167 |
|---|---|
| Sist endret | 01. jan. 2026 09:56 |
| Referanse | SMP-PV563 |
Annonsene kan være mangelfulle i forhold til lovpålagt opplysningsplikt. Før bindende avtale inngås oppfordres interessenter til å innhente komplett informasjon fra meglerforetaket, selger eller utleier.



























