Bildegalleri

Jupitergatan 43, Jupiter, Säffle
Nøkkelinfo
- Boligtype
- Tomannsbolig
- Eieform
- Eier (Selveier)
- Soverom
- 2
- Boligareal
- 87 m²
- Tomteareal
- 387 m² (eiet)
- Byggeår
- 1980
- Rom
- 3
Fasiliteter
Visning
Ta kontakt for å avtale visning.Om eiendommen
Beskrivning av bostaden
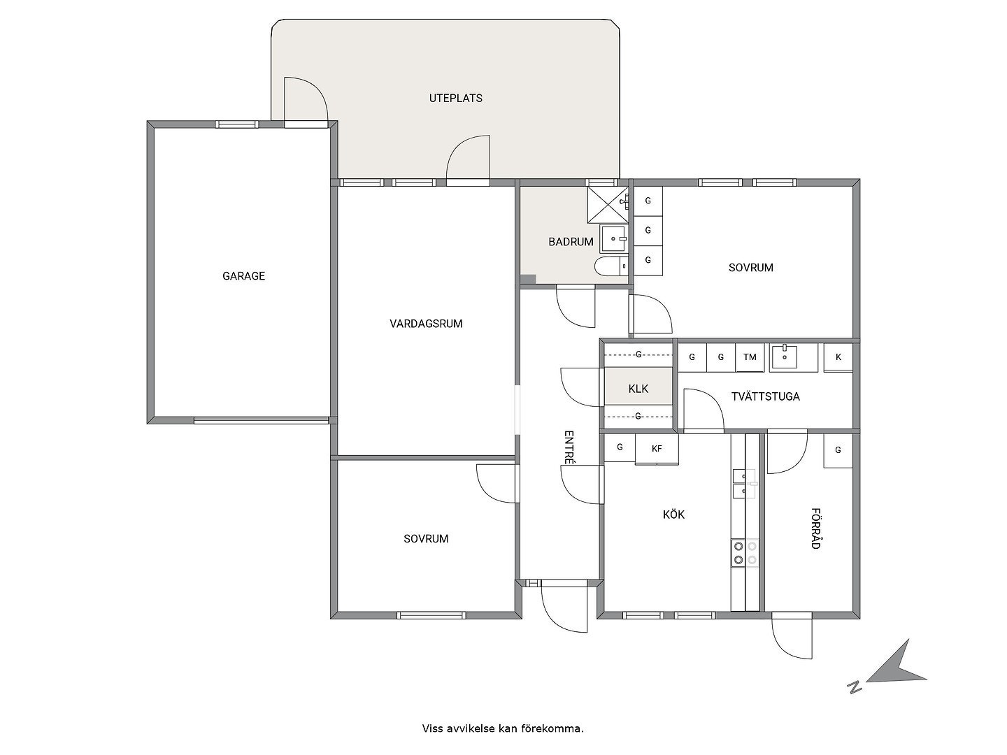
Nu har du chansen att flytta in i ett av de trevliga parhusen på Jupiter i Säffle. Här bor du bekvämt på ett plan med 87 välplanerade kvadratmeter fördelade på tre rum och kök. Bostaden erbjuder en inbjudande entréhall, ett trivsamt vardagsrum med utgång till en stenlagd uteplats, ett praktiskt kök, två rymliga sovrum, ett funktionellt hygienrum samt ett separat tvättrum. Dessutom finns en groventré som ger extra utrymme – perfekt som hobbyrum, förråd eller förvaring av vardagens prylar. Här finns goda möjligheter att uppdatera och sätta din egen prägel på hemmet.
Till huset hör även ett vidbyggt garage och en skyddad uteplats i ett mycket trivsamt och lugnt läge. Ett lättskött och genomtänkt boende för dig som värdesätter både komfort och funktion.
Varmt välkommen på visning!
Entréhall
Entréhall med plastmatta, tapetserade väggar och tak med skivor. Härifrån nås köket, klädkammaren, de två sovrummen, hygienrummet och vardagsrummet.
Kök
Praktiskt kök med plats för matbord. Rummet har plastmatta, tapetserade väggar och tak med skivor. Köksinredningen är i original med gula skåpluckor, bänkskivor i laminat och kaklat stänkskydd. Från köket finns direkt anslutning till tvättrum och groventré.
Sovrum 2
Sovrum med heltäckningsmatta, tapetserade väggar och tak med skivor. Här finns tre garderober som ger gott om förvaring.
Hygienrum
Hygienrum med våtrumsmatta på golv och väggar. Skivor i tak.
Vardagsrum
Vardagsrum med parkettgolv, tapet på väggar och skivor i tak.
Här finns dörr till mysig stenbelagd uteplats med skyddat läge.
Sovrum 1
Sovrum med bra storlek, ligger direkt till vänster om entréhallen. Plastmatta på golv, tapet på väggar och skivor i tak.
Tvättrum
Tvättrum med plastmatta på golv, våtrumstapet på väggar och vitt tak. Utrustat med tvättbänk med tvättho samt varmvattenberedare, nyinstallerad i september 2023. Här finns även tvättmaskin och ett äldre torkskåp.
Groventré
Groventré med plastmatta på golv, målade väggar och tak med skivor. Här finns en vindslucka som leder upp till ett praktiskt vindsutrymme för extra förvaring samt en garderob som ger ytterligare förvaringsmöjligheter.
Övriga byggnader
Vidbyggt garage med plats för 1 bil.
Övrigt
På grund av att fastigheten är ett dödsbo och arvtagarna saknar närmare kännedom om fastigheten, säljs den i befintligt skick med friskrivningsklausul för säljaren. Köparen uppmanas att noggrant undersöka fastigheten.
Tillträde: Enligt överenskommelse
Allmänt om fastigheten
VA: Kommunalt vatten året om Kommunalt avlopp
Övrigt: Lättskött tomt med mycket trivsamt läge i området. Tomten har ett skyddat läge och tomten gränsar till litet skogsparti.
Allmänt om området
Mycket trivsamt och barnvänlig område, Västra Höglunda mera känt som Jupiter med villabebyggelse från 1979-1980. Området byggdes upp av AB Skånska Cementgjuteriet.
I området finns friliggande hus samt parhus som är uppbyggda kring återvändsgator.
Samtliga villor är försedda med varmgarage. 5 olika hustyper.
Kommunikation
Busslinje
Ta kontakt med selger for komplett informasjon
Nærområdet
Fastighetsbyrån Säffle
Annonseinformasjon
| FINN-kode | 438828996 |
|---|---|
| Sist endret | 16. des. 2025 14:23 |
| Referanse | 5350-8917 |
Annonsene kan være mangelfulle i forhold til lovpålagt opplysningsplikt. Før bindende avtale inngås oppfordres interessenter til å innhente komplett informasjon fra meglerforetaket, selger eller utleier.



























