Bildegalleri

Leiligheter med organisert lovlig utleie når du ikke bruker selv!
Nøkkelinfo
- Beliggenhet
- Ved sjøen
- Boligtype
- Leilighet
- Eieform
- Eier (Selveier)
- Soverom
- 2
- Bruttoareal
- 64 m²
Fasiliteter
Visning
Om eiendommen
Beliggenhet
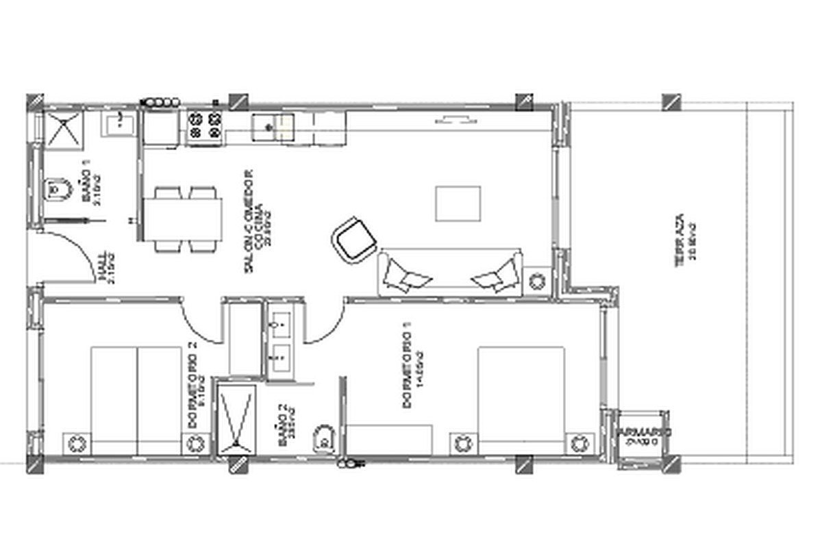
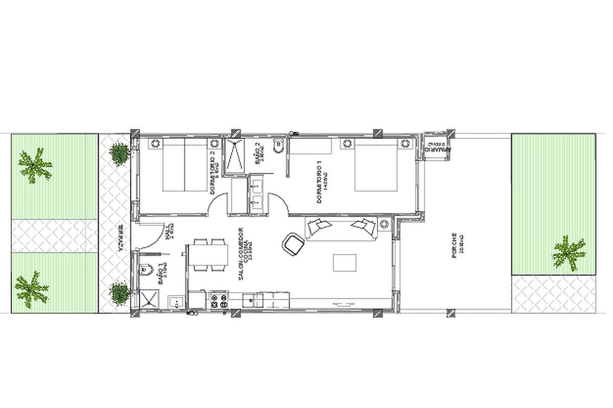
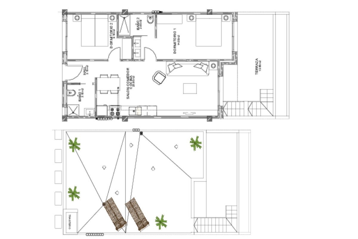
Oasis Laguna er et kompleks som består av turistleiligheter, ( godkjent for utleie) med to eller tre soverom og to bad, sentrert rundt et stort grøntområde med felles svømmebasseng.
Dette nye boligkomplekset vil bestå av 78 turistleiligheter fordelt i første etasje med hage, første etasje med terrasse og andre etasje med solarium. Alle boligene får parkeringsplass og bod i kjelleren som vil være tilgjengelig fra fellestrappen eller fra heis i hver etasje.
Oasis Laguna er ferdig med komplett utstyr: dusjvegger på begge bad, full belysningspakke, elektriske persienner, baderomsenheter, forbedrede balkongdører med ny høykvalitets aluminium, enda høyere standard på kjøkken, Hvitevarer, klimaanlegg, komplett møbelpakke med ferdig soverom, etc. Leilighetene er designet med fokus på komfort og modernitet, og tilbyr romslige og lyse områder utstyrt med alle nødvendige fasiliteter for et hyggelig opphold.
Utbyggingen er privat, lukket mot utsiden, og utstyrt med alle fasiliteter: SPA, utendørs GYM, rekreasjonsområder, lekeplass, minigolf, petanqueområde og et møterom Alle eiendommene inkluderer parkeringsplass og bod i kjelleren .
Når du ikke trives med eiendommen din, har du muligheten til å leie den ut. Denne fleksibiliteten lar deg generere ekstra inntekt mens leiligheten din ikke er i bruk.
Disse leilighetene ligger på frontlinjen, og tilbyr imponerende utsikt over Laguna Salada de La Mata, og gir et fredelig og naturlig miljø hvor du også kan nyte solnedgangsturer, enten til fots eller på sykkel. Nyt et rolig og avslappende miljø, perfekt for uforglemmelige ferier.
Oasis Laguna ligger i El Raso, mellom Guardamar og Orihuela Costa, i hjertet av Costa Blanca, nær alle tjenester og de beste fritidsaktivitetene rundt (strender, golf, etc), hvor du kan nyte det beste klimaet og miljøet 365 dager i året.
Generelt
Eurobolig og Spanialiv har siden 2001 formidlet flere hundre flotte eiendommer til skandinaviske kunder. For å yte ennå bedre service har vi nå slått oss sammen, og kan for øyeblikket tilby over 3000 boliger, både nye og brukte. Vi har et stort utvalg av boliger for salg langs hele Costa Blanca, Costa Calida og på Costa del Sol, i alle prisklasser.
Vårt kontor i Spania, MASA International ble startet i 1981 og har vokst fra den spede starten som en liten lokal eiendomsmegler til en solid internasjonal organisasjon som den er i dag, uten å miste den spesielle “familiefølelsen” som våre kunder fortsatt finner beroligende.
Vi har frem til i dag hjulpet over 36.000 familier med å realisere sine drømmer om egen bolig i Spania. Se hele vårt utvalg på våre web sider.
Vi er med rette stolte av vårt rykte som et av Europas ledende eiendomsmegler selskaper og har alltid vært stolte av at vi alltid markedsfører de boligene som gir mest valutta for pengene og har et stort utvalg av boliger for salg.
Vi samarbeider også med de fleste lokale meglerne i området, og kan derfor tilby det meste av objekter som ligger for salg.
Visningsturer
Vi arrangerer visningsturer til Spania nesten hver uke hele året. Våre turer varer i opptil 4 dager, og man betaler kun en egenandel på fra kr.1.990,- pr. person. Inkludert i denne prisen er da flybilletter, hotell i Spania, måltider på turen samt all transport og omvisning i Spania med skandinavisk rådgiver.
Alle våre kunder blir hjulpet individuelt og man blir ikke plassert i grupper sammen med andre, noe som gjør at man får bedre tid på de forskjellige visningene, og er mer fleksibel mht. planlagt program.
Dersom dere skal til Spania på egen hånd og ønsker å bruke noen dager sammen med oss for å se på noen av de boligene som vi kan levere, ordner vi selvsagt også det. Vi avtaler på forhånd tidspunkter, og kan også stå for innkvartering på hotell i den tiden dere er sammen med oss. Ta kontakt for å gjøre en avtale.
Dersom man ønsker å reservere en bolig hjemmefra kan vi ordne med alle nødvendige dokumenter og sørge for at man får kjøpt seg den boligen man ønsker seg.
Adkomst/Tomteforhold
Enkel adkomst fra motorveien eller kystveien N-332.
Trygghet ved kjøp.
Når du bruker så mange penger på en bolig i utlandet, er det svært viktig å velge en profesjonell og etisk organisasjon som tar seg av dine interesser på en hederlig måte.
Vårt kontor i Spania er en av få eiendomsselskaper på Costa Blanca som har blitt autorisert med ISO 9001 status, som betyr at du har fordeler av at vi har forpliktet oss til å gi våre kunder førsteklasses service.
Om du skulle ha begrenset med muligheter for å reise ned hit for å se prospekter med egne øyne, er vi selvfølgelig behjelpelig med oppdatert informasjon, nye bilder, video visninger, etc. om ønskelig!
Innhold
2 soverom og 2 bad, 2 terrasser 21m2
Møblert. installert A/C. Hvitevarer inkludert. Felles basseng. Parkeringsplass og bod inkludert.
3 soverom fra 232 000€
2 soverom penthouse fra 246 000€
3 soverom penthouse fra 269 000€
Ferdigstillelse jan-2027.
Tillegg spanske avgifter på alle priser
Standard
Ta kontakt med selger for komplett informasjon
Nyttige lenker
Nærområdet
Masa International
Annonsene kan være mangelfulle i forhold til lovpålagt opplysningsplikt. Før bindende avtale inngås oppfordres interessenter til å innhente komplett informasjon fra meglerforetaket, selger eller utleier.
























